Family house for sale, 183m2, 402m2 of land

U Čihadel, Praha 4 - Točná

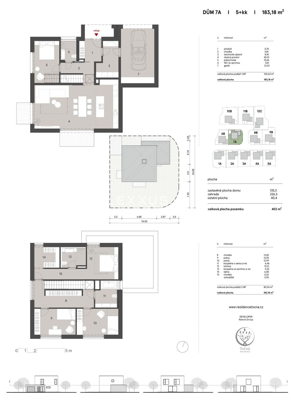
We present a newly built two-storey family house within a new residential project in the sought-after location of Prague 4 – Tocna. The complex includes only twelve detached houses located in a quiet, green area. The Tocna Residence combines privacy, thoughtful architecture, and a close connection to nature, creating a balanced environment for relaxed family living.The 4-bedroom house offers a total usable floor area of 183 sqm spread over two floors. The ground floor features an entrance hall with technical facilities and access to the garage, followed by a generous living room with a kitchen and dining area measuring 45 sqm. Large aluminum windows on two sides provide plenty of natural light and allow direct access to the terraces and south-facing garden. This level also includes a separate room with a bathroom, suitable as a study or guest bedroom.The upper floor comprises the master bedroom with a walk-in closet and private bathroom, two additional bedrooms, a spacious family bathroom, and plenty of storage space.Comfort is ensured by an air-to-water heat pump, underfloor heating, and a heat recovery ventilation system. Standard features include aluminum triple-glazed windows, wooden floors, high-quality bathroom fittings, external blinds, preparation for photovoltaic installation, and an electric vehicle charging point in the garage. The house achieves Energy Class A.The location offers exceptional tranquility, greenery, and quick access to Prague’s city center. The project also contributes to the development of local amenities, including a planned community center and self-service grocery store. Nearby you will find the renowned Prague British International School.
Last updated18.02.2026
Price25 962 342 CZK
Size5 rooms and more
House typeWith floors
ConditionUnder construction
Construction typeMixed
OwnershipPersonal
FurnishedNo
Number of floors2
Usable area183m2
Land area402m2
Garden area226m2
Move-in date18.02.2026
GarageYes
ParkingYes
CellarNo
BalconyNo
ElevatorNo
PoolNo
Energy RatingA - Exceptionally economical
Send me an offer for a low-rate mortgage
Adéla Bukovská

Adéla Bukovská

Reveal phone number

LEXXUS NORTON

Na Poříčí 2090/2, Praha 1, 11000

view all agency properties