Apartment for sale, 3+kk - 2 bedrooms, 69m2

Horácké náměstí, Brno - Řečkovice

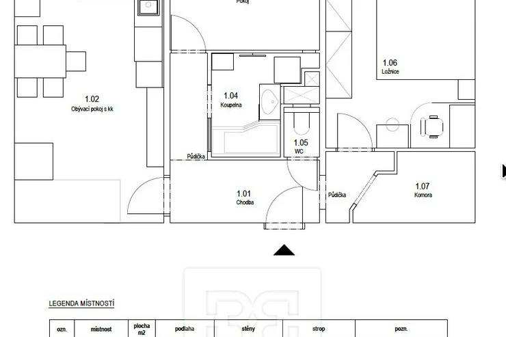
We are offering for sale a very well-designed 3+kk apartment with two loggias, which was created by sensitively modifying the original 2+1 layout. The apartment is designed so that it can be returned to its original 2+1 state without any major construction work, making it an interesting choice for both personal living and investment. Currently, it is also possible to continue with the existing tenant on favorable terms.

The apartment is located in the sought-after and long-term stable location of Brno - Řečkovice, directly on Horácké náměstí.

Layout and equipment of the apartment
• spacious entrance hall with cloakroom
• separate bedroom with a glazed loggia
• smaller separate room, suitable as a children's room, study, or guest room
• separate toilet
• bathroom with bathtub, sink, radiator, and washing machine connection
• Living room with custom-made kitchenette, equipped with all appliances
• The living area is connected to a second loggia

The apartment has a basement storage unit.
Additional information
• Advance payments of around 6,000 + electricity.
• The apartment offers a variable layout according to the needs of the future owner
• Suitable for both family living and long-term rental

Location
Horácké náměstí is one of the most popular parts of Řečkovice. The location offers complete civic amenities, plenty of greenery, good parking around the building, and excellent access to the center of Brno by public transport.
Offer IDN08739
Last updated28.01.2026
Price7 900 000 CZK
Price for discussionNo
Price commentdetails of the payment in the text
ConditionVery good condition
Construction typeConcrete
OwnershipPersonal
FurnishedPartially
Floor3
Number of floors12
Underground floors1
Usable area69m2
Balcony area3m2
Cellar area2m2
GarageNo
ParkingNo
CellarYes
BalconyYes
TerraceNo
LoggiaYes
ElevatorYes
PoolNo
Building typeDetached
Garrets (attic spaces)No
TransportPublic transport
Low-energyNo
Energy RatingC - Economical
DecreeNo. 78/2013 Coll.
Energy Performance Certificatedownload
Send me an offer for a low-rate mortgage
Mgr. Vojtěch Zigo

Mgr. Vojtěch Zigo

Reveal phone number

Bohemian Estates

V háji 1092/15, Praha 7, 17000

view all agency properties