Apartment for sale, 2+kk - 1 bedroom, 54m2

Zlochova, Praha 4 - Modřany

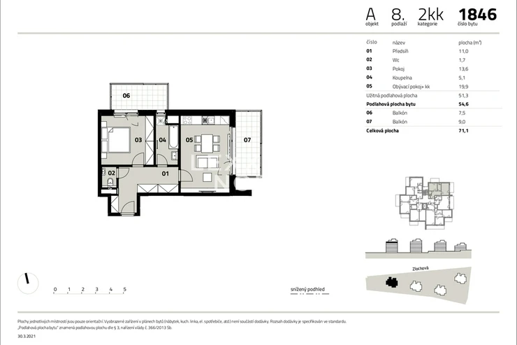
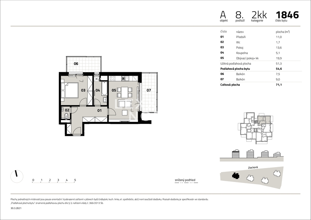
We offer for sale a modern one-bedroom apartment with an area of 54.4 sqm with two balconies in a newly built project, which was approved in 2023. The apartment is located on the 8th floor and offers beautiful views of the surrounding area. The property has a living room connected to the kitchen, a bedroom, and a bathroom. The apartment has two spacious balconies that provide plenty of space for relaxation.The one-bedroom apartment has two balconies measuring 9 m² and 7.5 m², which significantly expand the living space. The living room connected to the kitchen has a brand new kitchenette fully equipped with all necessary appliances. The hallway has a spacious built-in wardrobe, which complements the storage space in the apartment. The spacious bathroom has a bathtub with a glass screen. External blinds are also installed on all windows. The residential project includes an outdoor gym, a café, and three playgrounds equipped with trampolines. A park is also currently being built on the premises. For added convenience, the building also features a stroller storage room, bicycle storage room, scooter racks, and electric chargers for electric cars.The price includes a parking space and a cellar in the underground garage.The Modřany neighborhood offers all civic amenities, with shops, services, and healthcare facilities in the immediate vicinity. Transport accessibility is excellent thanks to the proximity of public transport stops. You can easily reach the center of Prague in a few minutes. There is plenty of greenery and nature in the area, with parks ideal for walks and sports activities nearby, as well as picturesque valleys inviting you to go on trips and relax. The location combines urban living with a peaceful environment close to nature.
Last updated16.12.2025
Price9 850 000 CZK
ConditionNew construction
Construction typeMixed
OwnershipPersonal
FurnishedPartially
Floor7
Number of floors9
Usable area54m2
Move-in date16.12.2025
GarageYes
ParkingYes
CellarYes
BalconyYes
TerraceNo
LoggiaNo
ElevatorYes
Energy RatingB - Very economical
Send me an offer for a low-rate mortgage
Adéla Bukovská

Adéla Bukovská

Reveal phone number

LEXXUS NORTON

Na Poříčí 2090/2, Praha 1, 11000

view all agency properties