Apartment for sale, 3+kk - 2 bedrooms, 89m2

Bělehradská, Praha 2 - Vinohrady

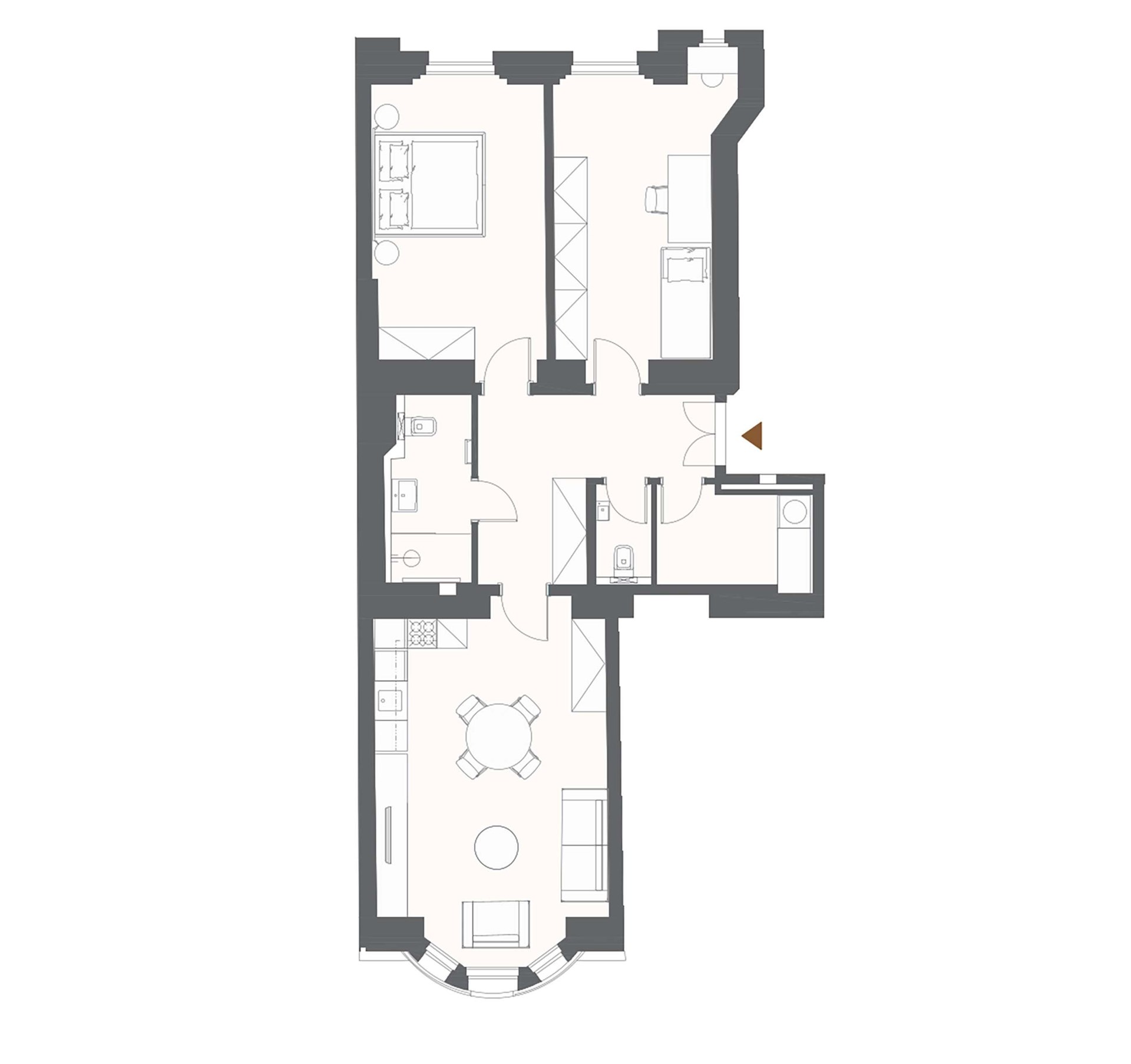
This north / south  oriented two-bedroom apartment with a floor area of 88.9 m² is part of the new Bělehradská 29 residential project, which is being created by the complete reconstruction of a Neo-Baroque apartment building from 1910. It is located on the border of Vinohrady and Nusle - in a lively neighborhood with cafes, services, and greenery, just a minute from the Nuselské schody tram stop. Completion is planned for the 3rd quarter of 2026. The floor plan of the apartment on the 2nd floor includes a living room with preparation for a kitchen, two bedrooms, an entrance hall, a practical storage room, a bathroom with a shower, and a separate WC. The unit also includes a cellar space. The equipment includes oak floors, wooden casement windows with double-glazed panes, elegant interior doors, classic Laufen and Grohe sanitaryware in the bathroom, and discreet radiators and electrical installation that do not disturb the overall design of the interior. The apartment will be completed in a fit-out state - ready for immediate move-in.
The building will be completely renovated. There will be representative common areas, a modern elevator, a renovated stone staircase with a decorative railing, and new technical facilities. Residents will have access to a sauna, fitness room, bicycle room and stroller room, and a quiet place to sit amongst the greenery in the courtyard. The building is situated on a quiet part of Bělehradská Street, just a few steps from the Nuselské schody tram stop. Popular restaurants such as Solo Bakery, Ô-mai coffee, Las Adelitas, and Da Pietro pizzeria are nearby, and Folimanka and Grébovka parks are also within walking distance. There are pharmacies, schools, fitness centers, and common services in the neighborhood. You can reach the I. P. Pavlova metro station by tram in four minutes, and the city center in ten.
Offer IDBEL22
Last updated09.12.2025
Price17 220 000 CZK
Price for discussionNo
ConditionRenovated
Construction typeBrick
OwnershipPersonal
Floor2
Number of floors6
Usable area89m2
Floor area93m2
Land area440m2
Cellar area4m2
Non-residential premises area4m2
GarageNo
ParkingNo
CellarYes
BalconyNo
TerraceNo
LoggiaNo
ElevatorYes
Garrets (attic spaces)No
TransportBus, Public transport, Road, Highway, Train
Low-energyNo
Energy RatingG - Exceptionally uneconomical
DecreeNo. 78/2013 Coll.
Send me an offer for a low-rate mortgage
Simon Lukavský

Simon Lukavský

Reveal phone number

PSN, s. r. o.

Seifertova 823/9, Praha 3, 13000

view all agency properties