Apartment for sale, 2+1 - 1 bedroom, 74m2

Veletržní, Praha 7 - Holešovice

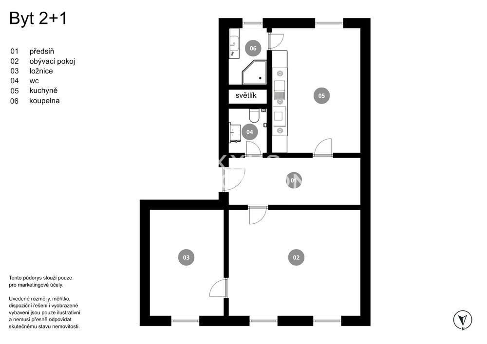
We offer you a two-bedroom apartment with a separate kitchen in one of the most popular parts of Prague - in the heart of Letna, right in Veletrzni street. The apartment is located in a classic apartment building with historical charm and offers an ideal opportunity for reconstruction according to your own ideas.The apartment is suitable both for own living and as an investment with potential for the future.The layout of the apartment currently includes two separate rooms, kitchen, bathroom and separate toilet. A great advantage is the possibility of modifying the layout, for example, conversion to a more modern 2-bedroom layout. High ceilings, original windows and plenty of space, which has the character and atmosphere typical of Prague apartments from the early 20th century.Letna is one of the most desirable locations in Prague - in close proximity to the apartment there is Stromovka and Letenske sady, ideal for walks, sports and relaxation. A short walk from the house you will find many cafes, restaurants, shops, galleries and cultural institutions.Transport accessibility is excellent - metro station C and several tram lines within walking distance will provide quick connections to the city centre and other parts of the city.
Last updated09.12.2025
Price10 950 000 CZK
ConditionFor renovation
Construction typeBrick
OwnershipPersonal
FurnishedPartially
Floor1
Number of floors1
Usable area74m2
Move-in date09.12.2025
GarageNo
ParkingNo
CellarYes
BalconyNo
TerraceNo
LoggiaNo
ElevatorNo
Energy RatingE - Uneconomical
Send me an offer for a low-rate mortgage
Adéla Bukovská

Adéla Bukovská

Reveal phone number

LEXXUS NORTON

Na Poříčí 2090/2, Praha 1, 11000

view all agency properties