Apartment for rent, 3+kk - 2 bedrooms, 70m2

Oktábcových, Praha 9 - Vysočany

37 000 CZK / month, excluding utility fees, excluding agency fees
Make Enquiry
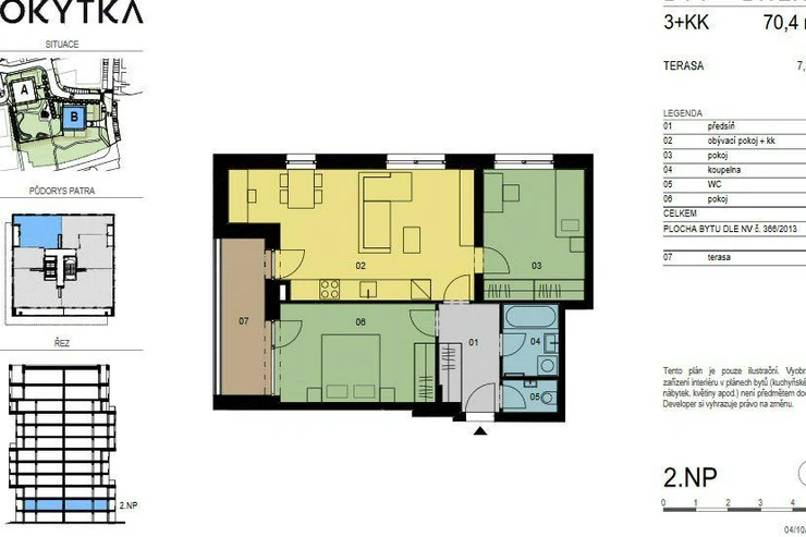
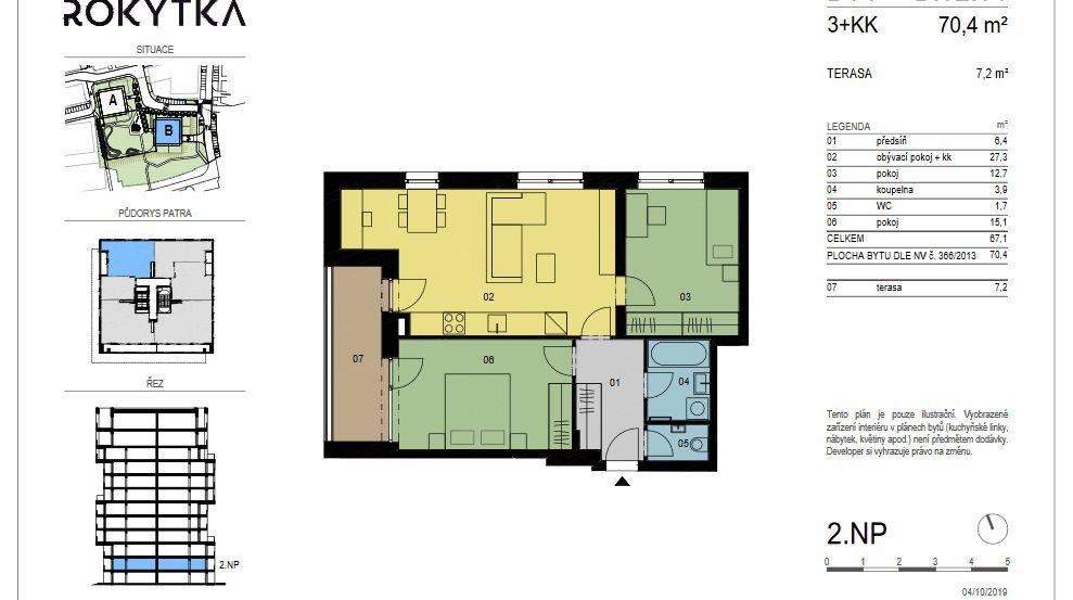
K dlouhodobému pronájmu nabízíme příjemný byt 3+kk (69,5 m) s prostornou terasou (7,2 m), který se nachází v 2 patře novostavby Rezidence Výhledy Rokytka v Praze 9 Vysočanech, ulice Oktábcových.

V ceně pronájmu je zahrnuto garážové stání a velký, zděný sklep (6,7 m). Objekt je zabezpečen kamerovým systémem a v suterénu je k dispozici kolárna se sprchou. Byt je částečně vybavený dle uvedených fotografií, kromě TV, pračky, dvoulůžkové postele a sedací soupravy, které nejsou součástí pronájmu.

Dům je energetické třídy B, tedy velmi úsporné, což zajišťuje nízké měsíční náklady na provoz.
Rezidence se nachází v klidné části Prahy 9 a nabízí moderní, komfortní a bezbariérové bydlení vhodné pro páry i rodiny. Je obklopené zelení, sportovišti i dětskými prolézačkami, v těsné blízkosti se nachází park Rokytka, ideální pro procházky, sport i relaxaci a navazující cyklostezka. Lokalita nabízí vynikající dopravní dostupnost 2 minuty pěšky na stanici metra B Kolbenova, tak i na tramvajovou zastávku Kolbenova. V okolí je kompletní občanská vybavenost, školy, školky, restaurace, fitness centra i nákupní galerie Harfa a Fénix.

Ideální pro ty, kteří hledají moderní a klidné bydlení s vynikající dostupností do centra Prahy.
Offer ID1/2021/1
Last updated19.11.2025
Price37 000 CZK / month, excluding utility fees, excluding agency fees
Price for discussionNo
FeesExcluding utility fees
Agency feeExcluding agency fees
House typeWith floors
ConditionNew construction
Construction typeFrame
OwnershipPersonal
FurnishedPartially
Floor1
Number of floors13
Usable area70m2
Floor area70m2
Balcony area7m2
Cellar area7m2
GarageYes
ParkingNo
CellarYes
BalconyYes
TerraceNo
LoggiaNo
ElevatorYes
PoolNo
Waste managementPublic sewage
Barrier-free accessYes
Building surroundingsBusiness and residential
TransportPublic transport
Energy RatingB - Very economical
DecreeNo. 264/2020 Coll.
Send me an offer for a low-rate mortgage
Oleksandra Sharnova

Oleksandra Sharnova

Reveal phone number

Mgr. Jan Vodenka

Nušlova 2274/13, Praha 5, 15800

view all agency properties