Apartment for sale, 1+KK - Studio, 32m2

Sicherova, Praha 9 - Kyje

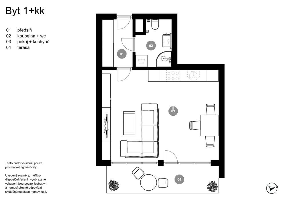
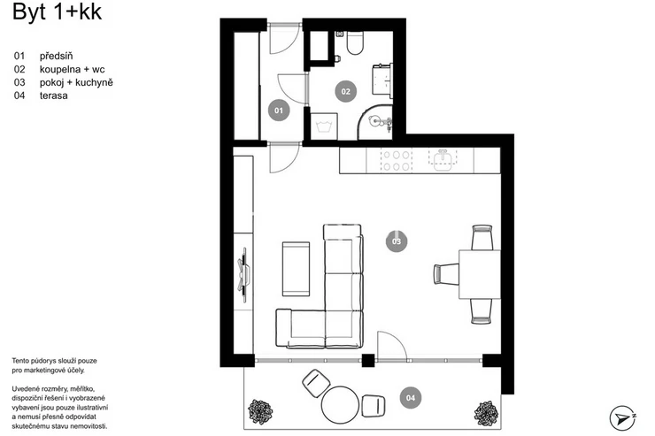
Looking for a modern apartment with excellent transport links or a secure rental investment?We offer a studio apartment with a floor area of 31.8 sqm and a spacious east-facing balcony of 8 sqm, located on the 2nd floor of a brick building.The apartment consists of a spacious living room with a kitchenette, an entrance hall, and a bathroom with a shower. From the living area, there is access to a large terrace facing the quiet inner part of the development, offering pleasant outdoor space and privacy.The apartment is sold unfurnished, giving the new owner the opportunity to design and furnish the interior according to their own taste. The building is equipped with an elevator, and its overall condition reflects modern, well-maintained construction.There is no storage room or garage parking, but street parking is easily available directly in front of the building.Prague 9 – Kyje is a highly sought-after residential area, offering a perfect balance of peaceful surroundings, full civic amenities, and excellent access to the city center. A bus stop is located right next to the project, and the B-line metro station Rajska Zahrada is reachable within 8 minutes on foot or just 3 stops by bus.In the immediate vicinity, you’ll find the Cerny Most shopping center, Kyjsky rybnik Park with cycling paths, schools, kindergartens, and a variety of other services for comfortable everyday living. The development is directly connected to a green belt area, ideal for morning runs or walking pets.The apartment is currently rented to a reliable tenant who pays rent regularly and would be happy to continue the lease upon agreement. The current rent is CZK 14,900 + utilities, ensuring an immediate return on investment without the need to find a new tenant.This property is also an excellent choice as a starter home for singles or couples, or as student accommodation.
Last updated03.12.2025
Price6 250 000 CZK
ConditionNew construction
Construction typeBrick
OwnershipPersonal
FurnishedNo
Floor1
Number of floors4
Usable area32m2
Move-in date03.12.2025
GarageNo
ParkingNo
CellarNo
BalconyYes
TerraceNo
LoggiaNo
ElevatorYes
Energy RatingC - Economical
Send me an offer for a low-rate mortgage
Adéla Bukovská

Adéla Bukovská

Reveal phone number

LEXXUS NORTON

Na Poříčí 2090/2, Praha 1, 11000

view all agency properties