Building plot for sale, 1200m2

Mládežnická, Černošice

Land for the construction of a villa with three units, with a building permit (not yet legally binding).
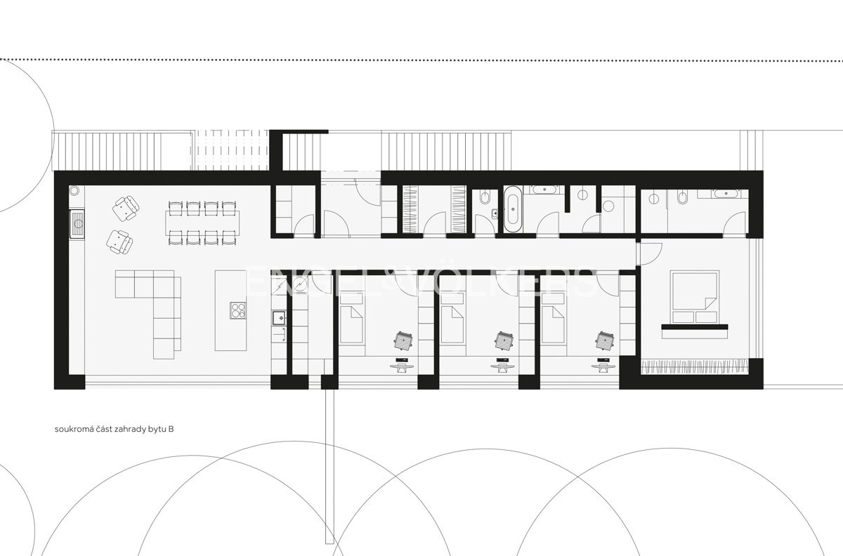
Project for the construction of a three-story house in the sought-after location of Černošice. Variable floor plan - only perimeter walls are load-bearing, possibility to easily modify the layout.
The price per future square meter is CZK 42,945 (excluding terraces and gardens) + 6 parking spaces on the plot.
2 apartments 5+kt (each approx. 165 m2) - 4 bedrooms, 3 bathrooms, dressing room, sauna.
1 barrier-free 4+kt apartment (approx. 133 m2) - 3 bedrooms, 3 bathrooms, sauna.
Mature trees on the plot, ideal orientation of the apartments' rooms to the southeast.

Each apartment has its garden with access from the terrace (2 x 200 m2) or a roof garden (1x 160 m2) - a total of approx. 560 m2 - not included in the usable area.
The project envisages a high standard and quality of materials with regard to the size of the apartments and the premium location - a quiet location in Černošice, living near the Berounka River and the railway station (450 m), with transport accessibility to the centre of Prague in 20 minutes.

Sale of the company (tax value of the property in the company approx. CZK 8,000,000).
Offer ID243854
Last updated15.12.2025
PricePrice not provided
Price for discussionNo
Land area1200m2
GarageNo
ParkingNo
CellarNo
BalconyNo
TerraceNo
LoggiaNo
PoolNo
Garrets (attic spaces)No
Low-energyNo
Send me an offer for a low-rate mortgage
Mgr. Martin Novák

Mgr. Martin Novák

Reveal phone number

Engel & Völkers - Prague

Plzeňská 3351/19, Praha 5, 15000

view all agency properties