Family house for sale, 171m2, 966m2 of land

Rokytnice nad Jizerou - Dolní Rokytnice

8 490 000 CZK, with agency fees Get a low-rate mortgage
Make Enquiry
Jsou domy, které mají dobré základy a čekají jen na novou energii, aby se z nich stal skutečný domov. Tento dvoupodlažní rodinný dům z roku 2001 stojí na výjimečném místě – v Dolní Rokytnici, s otevřeným výhledem do krajiny, který vám vezme dech. Dům je určený k celkové modernizaci interiéru, ale právě to je jeho silou – můžete si ho přetvořit přesně podle vlastních představ.

Hlavní přednosti:

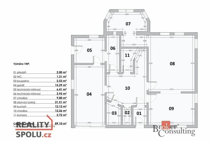
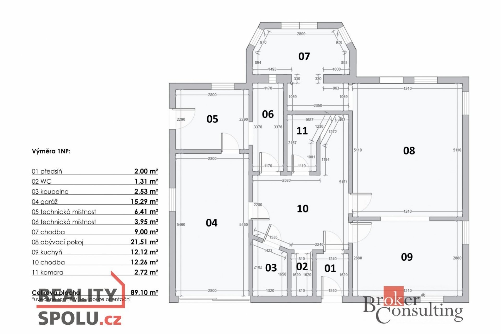
Dvoupatrový rodinný dům s užitnou plochou 171 m²
Aktuálně řešený jako 5+1, ale dispozici lze při rekonstrukci měnit a přizpůsobit.
1NP:
- Dispozice 1+1
- garáž, technická místnost, 1x koupelna, toaleta
2NP:
- 4 pokoje, 2x koupelna

Kompletní výměra pozemku 966 m²
Velký prostor pro zahradu, odpočinek, dětské hry, případně i další využití.

Solidní stavba z roku 2001
Kvalitní konstrukce, připravená na modernizaci interiéru.

Výjimečná poloha v Dolní Rokytnici
Dolní Rokytnice je část města Rokytnice nad Jizerou v malebných Krkonoších, známá svými sportovními možnostmi a krásnou přírodou.
Místní infrastruktura myslí na sportovce, rodiny i mladé páry – ať už jste milovníci adrenalinu, relaxace v sauně, procházek horskou přírodou nebo hledáte místo s občanskou vybaveností, bary, restauracemi i příležitostí pro sportovní vyžití po celý rok.

Dům, který čeká na nové majitele s vizí.
Může se stát pohodlným rodinným zázemím, rekreačním sídlem i místem, kde každý den začíná pohledem do volné krajiny.

Těším se na Vás na prohlídce!
Offer ID74544
Last updated07.11.2025
Price8 490 000 CZK, with agency fees
Price for discussionNo
Agency feeWith agency fees
Size4 rooms
House typeWith floors
ConditionGood condition
Construction typeBrick
FurnishedNo
Number of floors2
Usable area171m2
Land area966m2
Garden area855m2
Year of acceptance2001
Move-in date01.11.2025
GarageYes
ParkingYes
CellarYes
BalconyYes
TerraceNo
LoggiaNo
PoolNo
Water sourceLocal source
GasPersonal source
Electricity400V, 230V
Waste managementSump
Building typeDetached
Building surroundingsResidential
Garrets (attic spaces)No
Road typeAsphalt
Low-energyNo
Energy RatingG - Exceptionally uneconomical
Send me an offer for a low-rate mortgage
Broker Consulting, a.s.

Broker Consulting, a.s.

Reveal phone number

REALITYSPOLU

Radlická 751/113e, Praha 5, 15800

view all agency properties