Retail space for sale, 767m2

Bystřice - Semovice

25 490 000 CZK, with agency fees, with legal services Get a low-rate mortgage
Make Enquiry
Spacious multigenerational house with additional adjoining building plots in a
picturesque location near Benešov
We offer for sale a large multi-generational house with the possibility of
living and business, which is surrounded by at least two separate building
plots.

The property is located in a quiet natural area of Semovice u Bystřice, just a
few minutes from Konopiště and the golf course. This location provides a unique
combination of privacy, nature and easy accessibility.

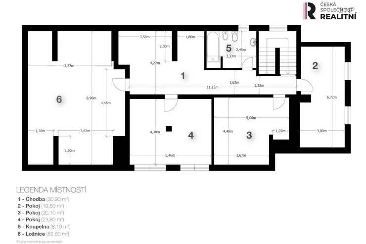
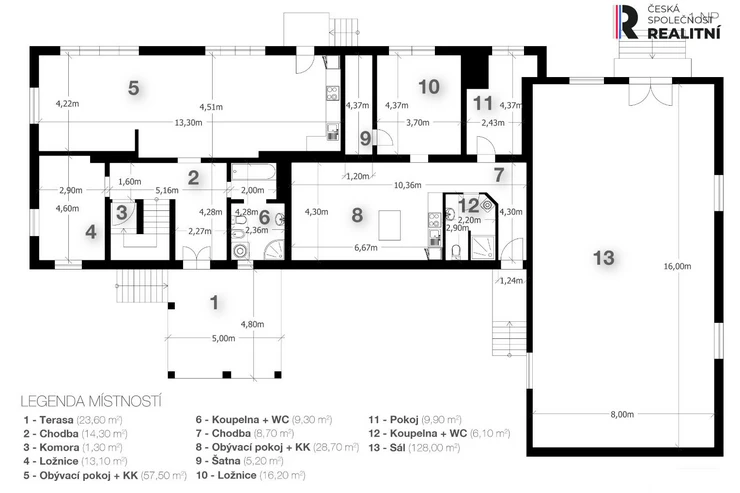
Description of the house 

- The house with a total living area of 349 m² offers three separate
residential units, which can be further divided according to the needs of the
future owner.
- The house includes a spacious hall (128 m²), formerly used as a restaurant
and furniture shop, which is ideal for business purposes, social events or
conversion into living or office space.
- The property also includes a large barn (290 m²), suitable for storage,
workshop or conversion to your liking, as well as a cellar of 260 m².
- The total area of the property is 8262 m², which includes, in addition to the
main building and adjacent plots, additional min. one large, two or even more
separate building plots. The plots also include their own pond and a small
forest, which increases the attractiveness of the property. 

Advantage and possibilities of use

- The property is ideal for multi-generational living or as a rental investment
opportunity.
- Thanks to the zoning plan, the property can be used not only for housing, but
also as a guesthouse, social facility, sports complex, retail, restaurant or
office building. It is also possible to breed animals such as horses.
- Technical equipment includes two wells with quality water and central heating
with the possibility of heating with a wood stove or heat pump.
- The house is renovated and continuously maintained, which ensures its
readiness for immediate occupancy.

Attractions in the surroundings 
The property is located in an attractive location near the famous Konopiště
Castle and golf course. The surrounding area offers many opportunities for
recreation and sports activities:

- Nature: The quiet area surrounded by forests is ideal for hiking, cycling or
relaxing.
- Golf course : The nearby golf course will delight golf enthusiasts.
- Konopiště: The historic castle with its beautiful gardens and park is a great
place for family outings.
- Accessibility: the location is easily accessible from Prague and surrounding
towns.

More information and a link to the website with further information will be
sent to you on request, please contact us. Energy class is listed as G (PENB
label in preparation).

 
Offer IDN90555
Last updated07.11.2025
Price25 490 000 CZK, with agency fees, with legal services
Agency feeWith agency fees
Legal servicesWith legal services
Size5 rooms and more
House typeWith floors
ConditionGood condition
Construction typeBrick
OwnershipPersonal
Number of floors3
Underground floors1
Usable area767m2
Floor area800m2
Land area8262m2
Garden area7400m2
Workshop area290m2
Cellar area260m2
GarageYes
ParkingYes
CellarYes
PoolNo
Water sourceLocal source
HeatingCentral electric, Central solid fuels
Waste managementSump
Year of reconstruction2023
Building typeDetached
Road typeAsphalt
Energy RatingG - Exceptionally uneconomical
Send me an offer for a low-rate mortgage
Michal Šebor

Michal Šebor

Reveal phone number

Česká Společnost Realitní/Prodej a Správa Nemovitostí s.r.o.

Štefánikova 13/43, Praha 5, 15000

view all agency properties