Restaurant for sale, 227m2

Pod stolovou horou, Praha 5 - Jinonice

Nabízíme k prodeji obchodní prostor vhodný pro provoz restaurace, vinárny, bistra nebo kavárny o celkové ploše 227 m2, který je v současnosti využíván jako restaurace. Nachází se v klidné lokalitě Prahy 5 - Jinonice a je součástí vyhledávané rezidenční čtvrti Botanica.

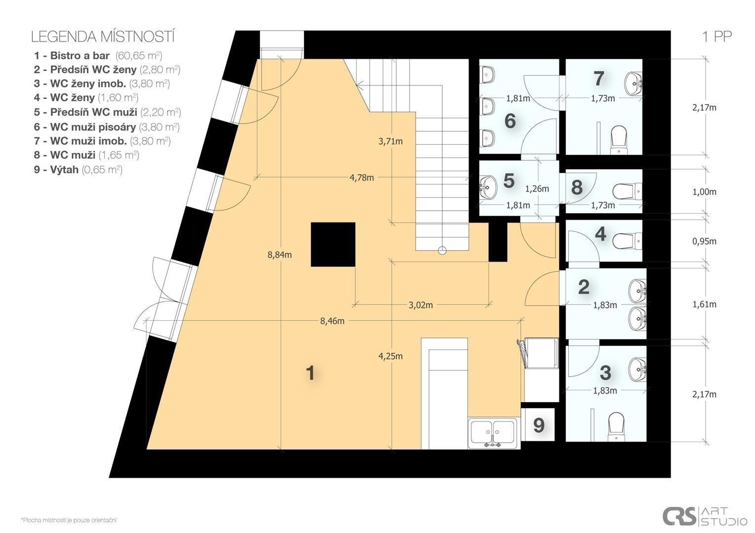
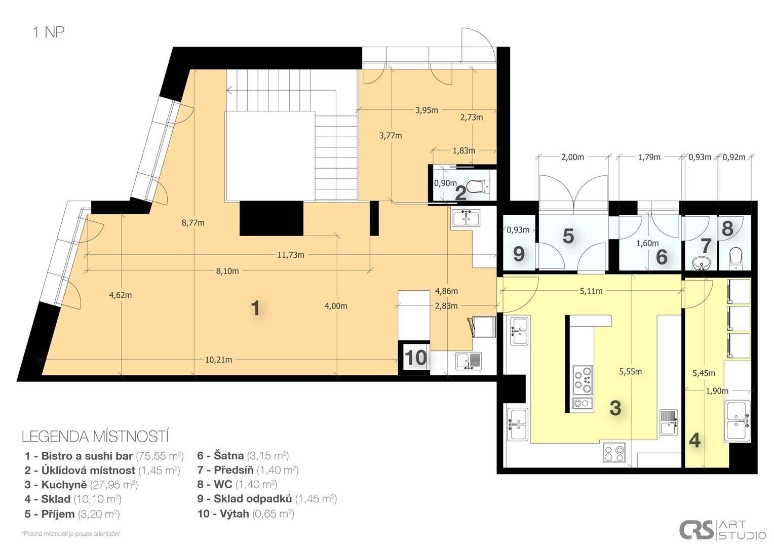
Restaurace je dvoupodlažní. Ve sníženém přízemí se nachází jídelní část s barem a sociální zařízení. Zvýšené přízemí pak disponuje jídelní částí s barovým pultem, kuchyní a skladovými prostory. Součástí je i jídelní výtah.

Restaurační zařízení je na dohodě.

Dále je k dispozici venkovní posezení.

Jinonice se v poslední době stávají stále vyhledávanější lokalitou, a to nejen svou výbornou dopravní dostupností (blízkost metra B Nové Butovice), ale i vzhledem k řadě komerčních I rezidenčních developerských projektů v okolí (Botanica, Jinonický dvůr). Veškerá občanská vybavenost se nachází v bezprostředním okolí.
Pro více informací nás neváhejte kontaktovat.
Offer IDSC2840LS
Last updated21.02.2025
PricePrice not provided
Price for discussionNo
Agency feeWith agency fees
House typeGround level
ConditionNew construction
Construction typeMixed
OwnershipPersonal
Floor1
Number of floors1
Usable area227m2
Land area1m2
Non-residential premises area227m2
GarageNo
ParkingNo
CellarNo
BalconyNo
TerraceNo
LoggiaNo
ElevatorYes
Water sourceRemote source
GasEnergy company
Year of construction2017
Garrets (attic spaces)No
TransportPublic transport, Road, Highway
Low-energyNo
Energy RatingG - Exceptionally uneconomical
DecreeNo. 78/2013 Coll.
Send me an offer for a low-rate mortgage
Linda Svobodová

Linda Svobodová

Reveal phone number

Philip & Frank s.r.o.

Štefánikova 1/65, Praha 5, 15000

view all agency properties