Apartment for sale, 4+1 - 3 bedrooms, 144m2

Betlémská, Praha 1 - Staré Město

26 800 000 CZK, with agency fees, with legal services Get a low-rate mortgage
Make Enquiry
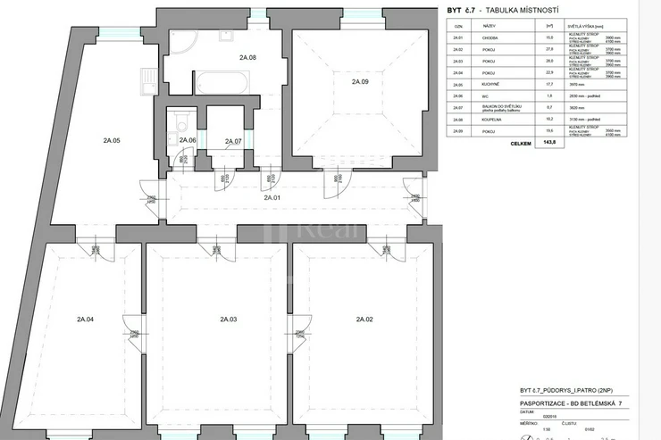
We are pleased to present a majestic 4+1 apartment (4 bedrooms) offering a generous 144 sqm of living space. This residence is situated on the 2nd floor of a meticulously maintained historic building on Betlémská Street. The building is currently undergoing a final phase of a complete restoration (completed updates include new windows, electrical and gas lines, facade, CCTV security, and a newly landscaped courtyard; the revitalization of common areas is nearing completion).

The interior features a central hallway providing a seamless flow to the individual rooms. The layout consists of three spacious bedrooms, an expansive living room, a fully equipped custom solid-wood kitchen, a bathroom with both a bathtub and shower, a guest toilet, and a dedicated storage room.

The apartment’s grandeur is defined by soaring ceilings exceeding 4 meters and beautifully refurbished oversized windows. The property is in excellent condition following a partial renovation (new gas boiler, updated kitchen, and restored parquet flooring). It is offered partially furnished with high-quality built-in wardrobes and furniture. It is possible to use a cellar of about 6 m2 with the apartment.

Located on a quiet, charming street, the property offers immediate proximity to Prague’s most iconic landmarks and the historic city center. Parking is available via the resident blue zones, with the option to secure long-term parking at the nearby National Theatre garages.

This property is eligible for mortgage financing, which we can arrange on your behalf.
Offer ID02018
Last updated06.05.2026
Price26 800 000 CZK, with agency fees, with legal services
Price for discussionNo
Agency feeWith agency fees
Legal servicesWith legal services
ConditionVery good condition
Construction typeBrick
OwnershipPersonal
FurnishedPartially
Floor2
Number of floors4
Underground floors1
Usable area144m2
Floor area144m2
Cellar area6m2
GarageNo
ParkingNo
CellarYes
BalconyNo
TerraceNo
LoggiaNo
ElevatorYes
PoolNo
Water sourceRemote source
HeatingCentral gas
TelecomInternet
Waste managementPublic sewage
Building typeTerraced
Building surroundingsResidential
Garrets (attic spaces)No
TransportPublic transport
Low-energyNo
Energy RatingG - Exceptionally uneconomical
Send me an offer for a low-rate mortgage
Lucie Celba

Lucie Celba

Reveal phone number

Reallocate

Lublaňská 667/42, Praha 2, 12000

view all agency properties