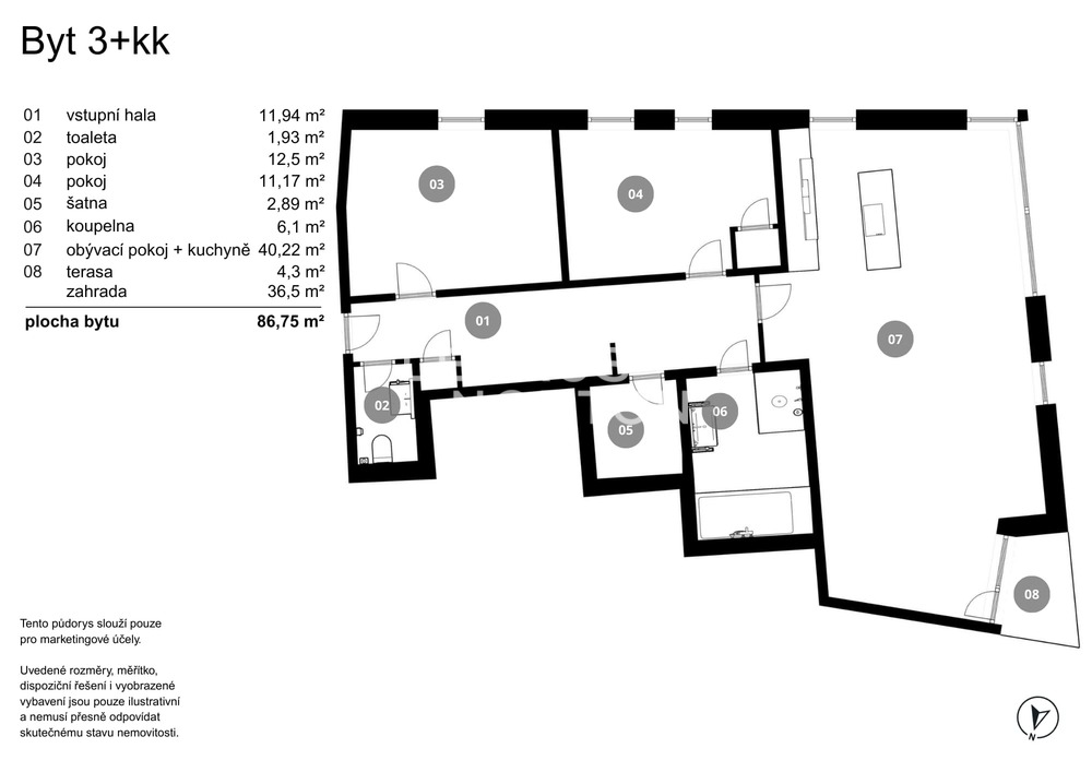
Apartment for sale, 3+kk - 2 bedrooms, 87m2

Pod Ateliéry, Praha 5 - Hlubočepy

We are offering for sale an exclusive two-bedroom apartment in the prestigious Barrandovska zahrada residence, set in the original villa district of old Barrandov. Located on the 1st floor, this apartment will enchant you not only with its designer interior, but also with its private garden offering enchanting views of the surrounding greenery.Layout and amenities• Spacious living room with kitchen, dining area, and direct access to the terrace• Two bedrooms offering maximum peace and privacy• Bathroom with bathtub and shower• Separate toilet, storage room, and spacious hallway• Cellar and parking space in the underground garageThe apartment is fully furnished with custom-made furniture and offers a high standard of finish: heated three-layer wooden floors, large-format tiles in natural stone decor, flush doors, large windows, and modern design elements.The Barrandovská zahrada residence combines modern architecture with the benefits of family living. Residents have access to a large private area with mature trees, gardens, a playground, a pergola overlooking the Vltava valley, and a communal fireplace.The location on the edge of the Barrandov Rocks offers a unique connection between the city and nature – Chuchelsky haj and Prokopske udoli are in the immediate vicinity, while civic amenities, schools, restaurants, shops, and public transport are just a few minutes from the building. Easy access to major roads is a matter of course.Why this apartment?If you are looking for a home with soul, combining luxury, privacy, and nature, as well as perfect access to the center of Prague, then this offer is ideal for you.We will be happy to help you with financing.
Last updated16.12.2025
Price18 900 000 CZK
ConditionNew construction
Construction typeBrick
OwnershipPersonal
FurnishedPartially
Number of floors1
Usable area87m2
Garden area36m2
Move-in date16.12.2025
GarageYes
ParkingYes
CellarYes
BalconyNo
TerraceYes
LoggiaNo
ElevatorYes
Energy RatingB - Very economical
Send me an offer for a low-rate mortgage
Adéla Bukovská

Adéla Bukovská

Reveal phone number

LEXXUS NORTON

Na Poříčí 2090/2, Praha 1, 11000

view all agency properties