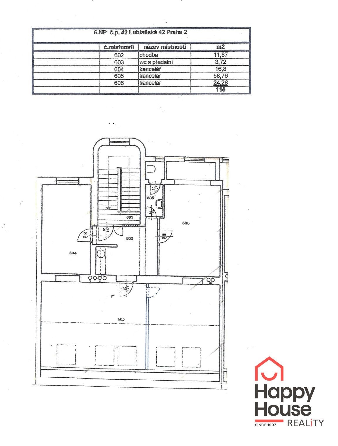
Office for rent, 115m2

Lublaňská, Praha 2 - Vinohrady

33 925 CZK / month
Make Enquiry
We are offering office spaces for rent with a total area of 115 sqm, located in an administrative building on Lublaňská street, just a 2-minute walk from the I. P. Pavlova metro station.

The layout consists of three offices - one of which is an open space divided by a partition into two separate areas with windows, plus an entrance hall, a small kitchen, and a toilet with a sink. The spaces are equipped with air conditioning, an electronic security system connected to a central security desk, central heating, internet wired into the building, central gas heating, and remote door opening. The building has an elevator. The floors are covered with linoleum.

The spaces are offered unfurnished.

Excellent transport accessibility - besides the I. P. Pavlova metro station, tram stops and full urban amenities in the city center are also within walking distance.
Offer ID964867
Last updated31.01.2026
Price33 925 CZK / month
Price for discussionNo
Price comment+ VAT + utilityes CZK 90/m2, deposit 1 rent
House typeWith floors
ConditionVery good condition
Construction typeBrick
OwnershipPersonal
Floor6
Number of floors6
Usable area115m2
Non-residential premises area115m2
Move-in date15.08.2025
GarageNo
ParkingNo
CellarNo
BalconyNo
TerraceNo
LoggiaNo
ElevatorYes
Water sourceRemote source
HeatingCentral remote
GasEnergy company
Electricity230V
TelecomInternet, Telephone
Waste managementPublic sewage
Garrets (attic spaces)No
TransportPublic transport, Road
Low-energyNo
Energy RatingE - Uneconomical
DecreeNo. 78/2013 Coll.
Send me an offer for a low-rate mortgage
Romana Thelenová

Romana Thelenová

Reveal phone number

Happy House Rentals

Uruguayská 78/12, Praha 2, 12000

view all agency properties