Apartment for rent, 3+kk - 2 bedrooms, 141m2

Vodičkova, Praha 1 - Nové Město

45 000 CZK / month, excluding agency fees
Make Enquiry
Prague 1 - New Town, Vodičkova street – located in a prestigious location in the very center of Prague directly by the Wenceslas Square, in a location with complete civic amenities and at a transport hub with connections to all parts of Prague.

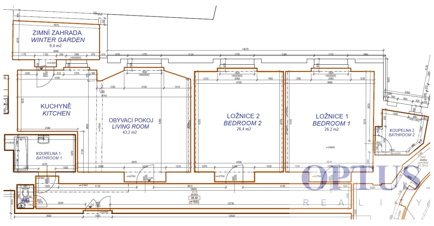
We offer a high-standard unfurnished apartment 3 + kitchenette + winter garden (140.8 m2) situated on the 5th floor of a representative multifunctional house from 1919 with an elevator and reception. The apartment and the house are completely renovated; the apartment is oriented to the northwest, to a quiet courtyard with a view of the roofs of the surrounding houses.

The apartment consists of a living room with a kitchenette (43.2 m2) and with an entrance to the winter garden, two bedrooms (26.2 and 26.4 m2), two bathrooms with a bathtub/shower massage box, a separate toilet and an entrance hallway.

Other equipment: fitted kitchen unit with built-in appliances (electric hob, electric oven, dishwasher, fridge with freezer, microwave and exhauster), the apartment also has air conditioning, new vinyl floors and tiles, lighting and the apartment is connected to central heating.
Price 45,000 CZK/month + utilities 14,500 CZK/month + internet + agency fee of 1 month´s rent.
Security deposit makes 2-months’ rent.

The energy performance level of the building is according to in the sense of Act No.78/2013 Coll. as amended, classified as “D”.
Offer IDB13470
Last updated18.11.2025
Price45 000 CZK / month, excluding agency fees
Price for discussionNo
Agency feeExcluding agency fees
ConditionVery good condition
Construction typeMixed
OwnershipPersonal
FurnishedNo
Floor5
Number of floors6
Usable area141m2
Floor area141m2
Year of acceptance1919
Move-in date24.11.2025
GarageNo
ParkingNo
CellarNo
BalconyNo
TerraceNo
LoggiaNo
ElevatorYes
PoolNo
Water sourceRemote source
GasEnergy company
Electricity230V
Waste managementPublic sewage
Barrier-free accessYes
Building surroundingsBusiness and residential
Garrets (attic spaces)No
TransportPublic transport, Road
Road typeAsphalt, Paved
Low-energyNo
Energy RatingD - Less economical
DecreeNo. 78/2013 Coll.
Energy Performance Certificatedownload
Send me an offer for a low-rate mortgage
Ing. Andrea Kublová

Ing. Andrea Kublová

Reveal phone number

Optus Reality

Za mlýnem 1596/3, Praha 4, 14700

view all agency properties