Apartment for sale, 4+kk - 3 bedrooms, 110m2

Kolbenova, Praha 9 - Vysočany

We present to you this modern 4+kk apartment for sale in an attractive location in Prague. The apartment is located in a planned skeletal project on the exclusive sixth floor, offering maximum comfort and meeting the requirements of modern living. With personal ownership, you have the freedom to use and manage your new home.

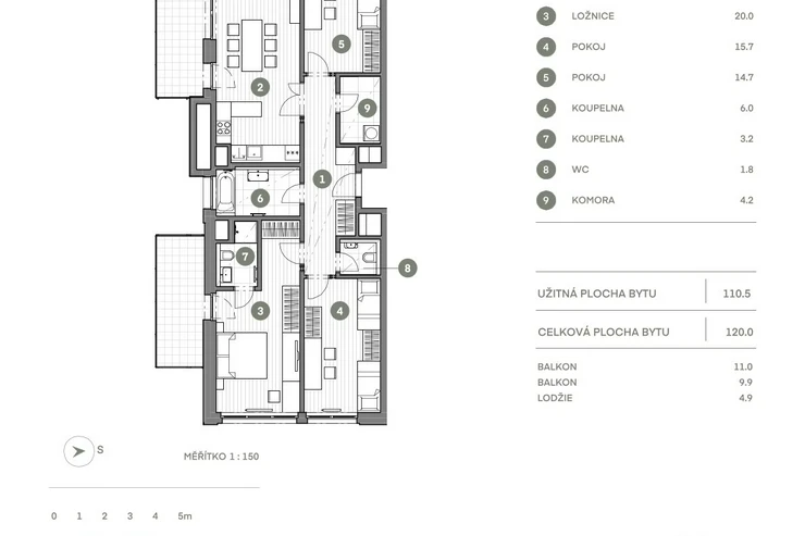
The apartment, with a total usable area of 111 m², features amenities that will be appreciated by any family or discerning individuals seeking spacious living. The apartment includes a spacious balcony measuring 21 m² and a loggia measuring 5 m², providing a great space for relaxation and views of the city's beauty. There is also a cellar for seasonal item storage and a private parking space that ensures convenient parking without worries.

The location in Prague is ideal for those seeking a mix of urban life with peace and comfort. The proximity to shops, restaurants, and entertainment options will meet all needs and offer culture and entertainment within reach.

If you are interested in the apartment, do not hesitate to write to us or give us a call.
Offer IDF3.06.02
Last updated30.03.2026
Price19 071 240 CZK
Price for discussionNo
ConditionDeveloper project
Construction typeFrame
OwnershipPersonal
FurnishedNo
Floor6
Usable area110m2
Floor area120m2
Balcony area20m2
Cellar area2m2
Move-in date30.06.2027
GarageNo
ParkingYes
CellarYes
BalconyYes
TerraceNo
LoggiaNo
ElevatorYes
HeatingCentral remote
Waste managementPublic sewage
Number of parking spaces1
TransportPublic transport
Road typeAsphalt
Energy RatingB - Very economical
DecreeNo. 264/2020 Coll.
Energy Performance Certificatedownload
Send me an offer for a low-rate mortgage
Lucie Spinova

Lucie Spinova

Reveal phone number

CPI Rezidence

Purkyňova 2121/3, Praha 1, 11000

view all agency properties