Apartment for sale, 4+kk - 3 bedrooms, 94m2

Senovážné náměstí, Praha 1 - Nové Město

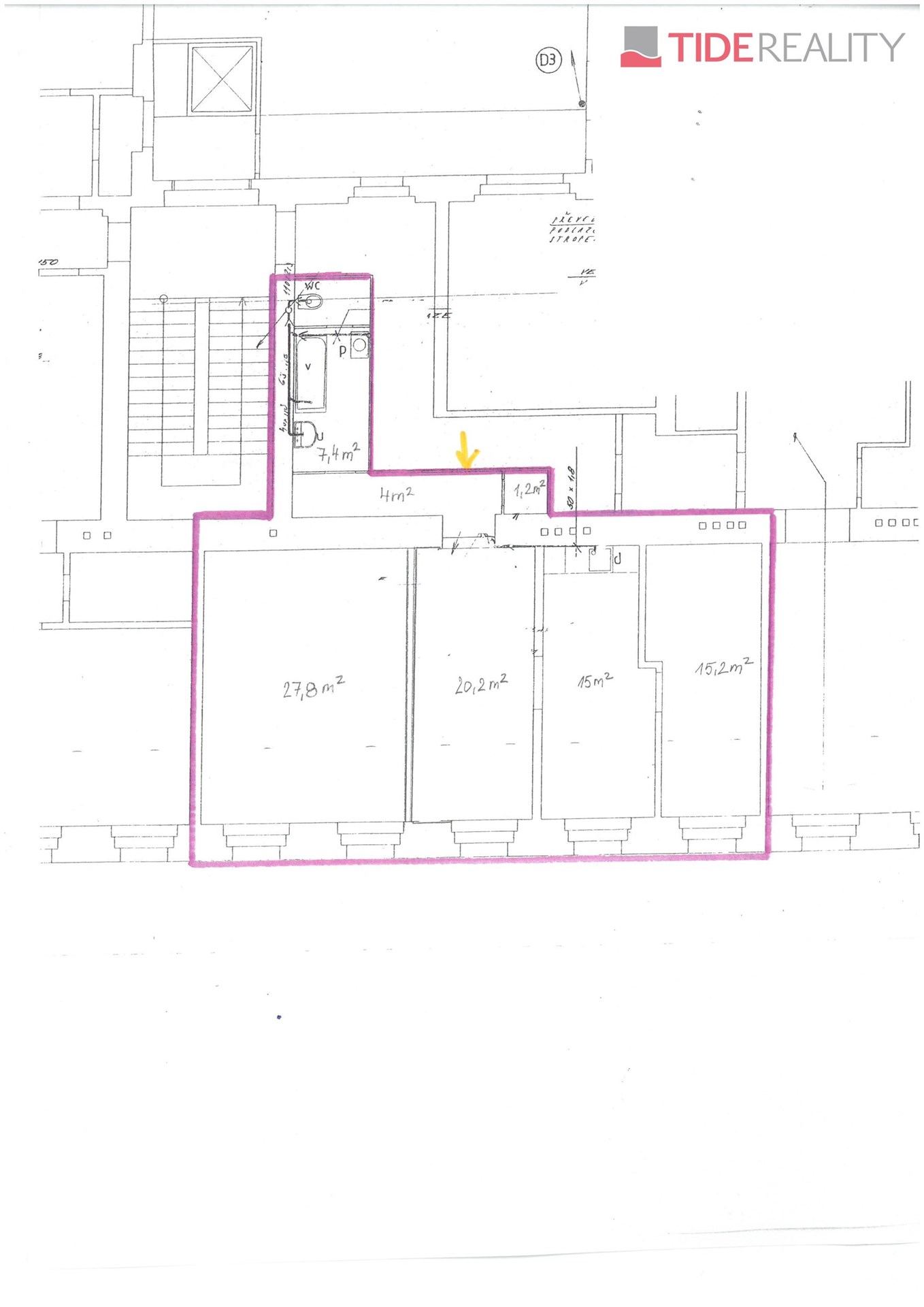
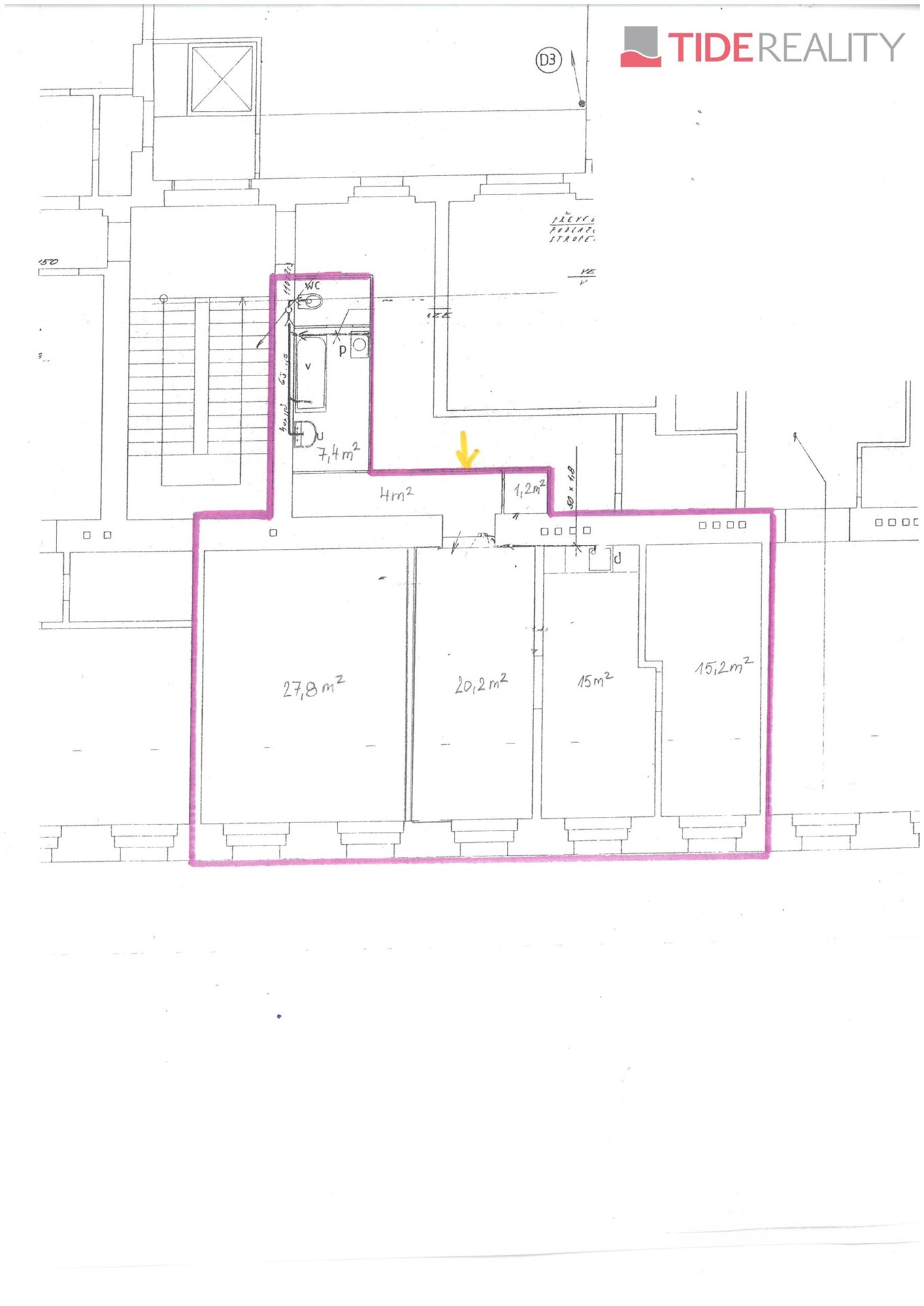
Unique investment opportunity! Exclusively on behalf of the owner, we offer for sale a very spacious, bright, and above all, quiet apartment located in the absolute center of Prague 1, on the 6th floor, i.e., the last inhabited floor (not attic!) of a beautifully renovated Art Nouveau building on Senovážné Square, directly opposite the Jindřišská Tower. This apartment with tremendous potential spreads over a total area of 91 m2 and offers a great variability for future rearrangement. The dividing walls between rooms are not load-bearing, some not even bricked, and the layout of rooms and new arrangement can be altered according to the individual requirements of the new owner. All 4 rooms (15m2, 15m2, 20m2, 28m2) have a ceiling height of about 4m (possible to install a gallery), southern exposure, and all offer a unique and unobstructed view of the Jindřišská Tower. The apartment is heated by an air-to-air heat pump with 4 split units in each living room, hot water is provided through a karma system, and gas is also installed in the kitchen. Original parquet floors in all rooms, wooden casement windows.

Even though the apartment is located directly in the historical center, it is completely isolated from the hustle and bustle of the big city. This location has all public amenities in immediate vicinity, always within a comfortable walking distance. Nearby are tram stops, a few minutes' walk then Wenceslas Square with metro stations of all lines as well as Main and Masaryk railway stations. Shopping zones (Republic Square, Na Příkopě, Palladium, Slovanský Dům) are in the neighborhood.

The building does not need to prove energy performance, class "G" does not correspond to the actual state.

Available immediately!
Offer ID974115
Last updated27.03.2026
PricePrice not provided
Price for discussionNo
Agency feeExcluding agency fees
ConditionVery good condition
Construction typeBrick
OwnershipPersonal
FurnishedNo
Floor6
Number of floors8
Underground floors1
Usable area94m2
Floor area91m2
Cellar area3m2
Move-in date03.02.2026
GarageNo
ParkingNo
CellarYes
BalconyNo
TerraceNo
LoggiaNo
ElevatorYes
Electricity230V
Garrets (attic spaces)No
Low-energyNo
Energy RatingG - Exceptionally uneconomical
DecreeNo. 78/2013 Coll.
Send me an offer for a low-rate mortgage
Hana Hlavatá

Hana Hlavatá

Reveal phone number

TIDE REALITY s.r.o.

Dřevná 382/2, Praha 2, 12800

view all agency properties