Apartment for sale, 3+kk - 2 bedrooms, 119m2

Haštalská, Praha 1 - Staré Město

Price for negotiation Get a low-rate mortgage
Make Enquiry
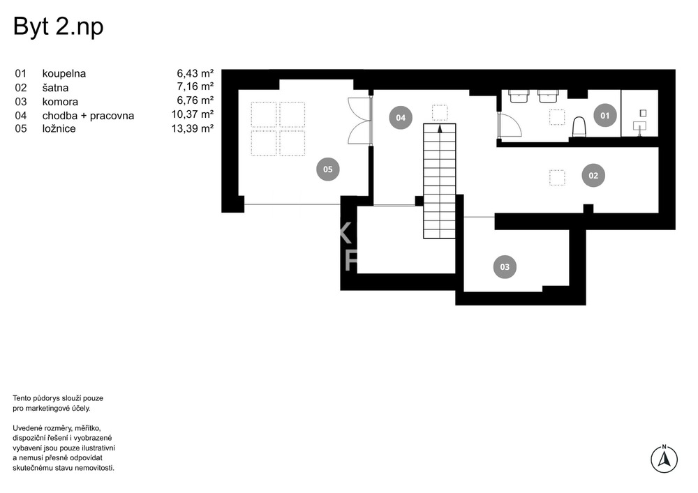
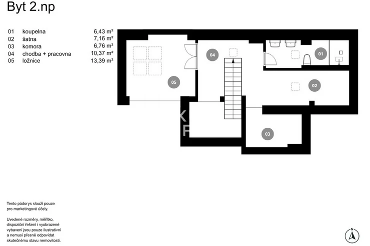
Elegant Duplex in a Prestigious Part of Prague’s Historic Centre, Combining First-Class Design with Meticulous CraftsmanshipWe present a unique duplex two-bedroom apartment and a total usable area of 119 sqm, situated in the quiet and prestigious Hastalska Street in Old Town, just steps from Parizska Street and Old Town Square. The combination of original architecture, contemporary design, and premium finishes creates an exceptional home tailored for a discerning client seeking style, quality, and an outstanding location. The interior was designed in collaboration with the renowned architectural studio Acht. Every element has been custom-made with an emphasis on functionality, aesthetics, and impeccable detailing. The kitchen and all built-in storage were crafted by Devoto Furniture.The lower level of the apartment offers a generous living area with kitchen, a bedroom separated by an elegant Dorsis glass partition, a bathroom, and an entrance hall with additional technical facilities. The upper level features a second bedroom, a bathroom, a gallery with a workspace, and a spacious walk-in closet. The apartment is finished to a high standard and is move-in ready. The interior features premium materials, timeless design, and bespoke furniture by Devoto Furniture, renowned for its meticulous craftsmanship. The property has undergone a complete, high-quality renovation, with a strong emphasis on contemporary aesthetics and fine detailing. The atmosphere is enhanced by carefully designed ambient lighting.The kitchen is equipped with built-in Bosch appliances, and a Miele washer and dryer are also available. Air conditioning and newly installed electrically operated roof windows with smart shading ensure year-round comfort and ample natural light.Security entrance doors, a video intercom, and chip-access provide a high level of safety. The building itself has undergone a sensitive renovation that preserves its original features and is complemented by a modern lift. Haštalská Street is one of the most beautiful and peaceful parts of Prague’s Old Town. It lies in the very heart of the historic centre, just a few steps from Pařížská Street, Old Town Square, the Vltava riverbank, and Letna Park.The neighbourhood offers a wide selection of top-tier restaurants, stylish cafés, boutiques, and galleries that highlight the exceptional character of this area. Excellent transport accessibility is ensured by the nearby Staromestska and Namesti Republiky metro stations, as well as several tram lines. For moments of rest or active recreation, the surroundings provide numerous options—from riverside walks along the Vltava and cosy cafés to various sports activities in Letna Park.This address represents an ideal combination of a prestigious location, high living standards, and exceptional architecture, making it one of the most sought-after residential areas in Prague.
Last updated06.02.2026
Price for discussionYes
ConditionVery good condition
Construction typeBrick
OwnershipPersonal
FurnishedPartially
Floor5
Number of floors6
Usable area119m2
Move-in date06.02.2026
GarageNo
ParkingNo
CellarNo
BalconyNo
TerraceNo
LoggiaNo
ElevatorYes
Energy RatingE - Uneconomical
Send me an offer for a low-rate mortgage
Adéla Bukovská

Adéla Bukovská

Reveal phone number

LEXXUS NORTON

Na Poříčí 2090/2, Praha 1, 11000

view all agency properties