Family house for sale, 189m2, 340m2 of land

U hostivařského nádraží, Praha 10 - Horní Měcholupy

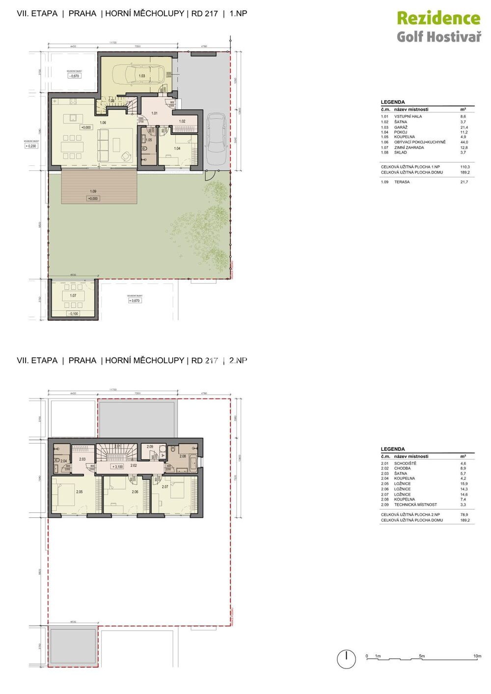
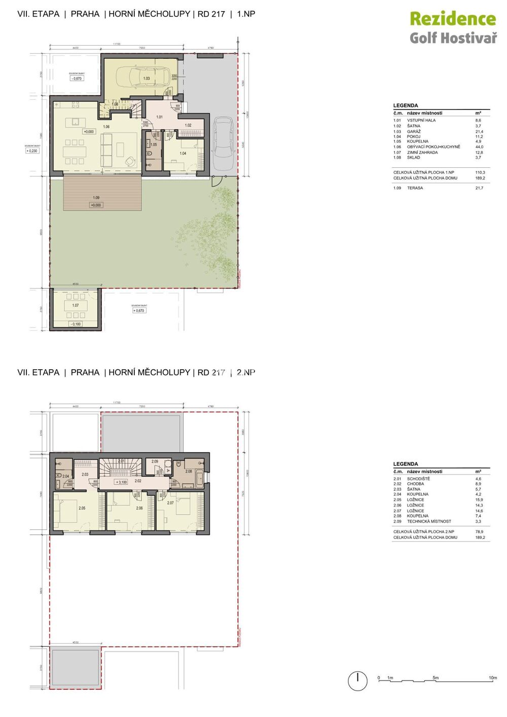
Are you looking for a home in an established location, with modern architecture, a safe environment, and surrounding nature — in other words, the ideal living space with a Prague address? We invite you to the Golf Hostivar area, where you can find the perfect balance of a quiet zone within the city.We are offering a 4-bedroom house with a 340 sqm plot, with the option to choose the interior finishes according to your taste. The ground floor of the house includes an entrance hall, a living room with kitchen, a bedroom, a bathroom, and a garage for two cars. Next to the living room is a rectangular terrace and adjoining garden, featuring a separate room you can adapt to your lifestyle. On the first floor, you will find two bedrooms, a bathroom (with shower and bathtub), a master bedroom with a walk-in closet and private bathroom, and a separate utility room.The structural work of the house has already been completed, and you can move into your own home by the end of next year. The price includes full completion, including floors, doors, and bathrooms.The house has heating with an independent gas boiler, aluminum windows with triple glazing, underfloor heating, and is in energy class B. Ownership of the property also includes a share in the surrounding roads, which are regularly maintained within the golf complex at minimal cost.Golf Hostivar Residence is a unique project in Prague 10 – Horni Mecholupy. The entire complex is designed as a private neighborhood with controlled access, ensuring maximum safety and privacy for residents. The complex includes an 18-hole golf course, a public clubhouse with a restaurant, and a playground. Nearby, you will also find complete infrastructure and public transport stops.
Last updated03.02.2026
Price33 137 600 CZK
Size5 rooms and more
House typeWith floors
ConditionUnder construction
Construction typeMixed
OwnershipPersonal
FurnishedNo
Number of floors2
Usable area189m2
Land area340m2
Move-in date03.02.2026
GarageYes
ParkingYes
CellarNo
BalconyNo
ElevatorNo
PoolNo
Energy RatingB - Very economical
Send me an offer for a low-rate mortgage
Adéla Bukovská

Adéla Bukovská

Reveal phone number

LEXXUS NORTON

Na Poříčí 2090/2, Praha 1, 11000

view all agency properties