Apartment for sale, 3+kk - 2 bedrooms, 88m2

Skotská, Praha 6 - Vokovice

17 900 000 CZK, excluding agency fees Get a low-rate mortgage
Make Enquiry
We offer for sale a bright and spacious 3+kk apartment sized 88 m2 with a large 25 m² terrace and a private garden of 158 m². The apartment is located on the first floor of a residence with an elevator in Skotská Street, in the prestigious district of Prague 6 – Vokovice, close to Evropská Street.

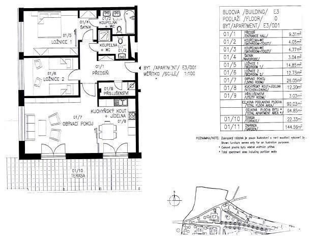
The layout of the apartment offers a comfortable and practical solution: a spacious living room with a fully equipped kitchenette, two cozy bedrooms, two bathrooms, a hallway with built-in wardrobes, and a utility room/storage room. The apartment also includes one parking space in the underground garage and a cellar sized 3.75 m².

The apartment is situated in a quiet and safe area, with excellent accessibility to the city center and Václav Havel Airport. In the vicinity, you will find complete amenities – shops, restaurants, cafes, schools, and kindergartens. For leisure activities, the Šárka - Lysolaje Nature Park is nearby.
Transport accessibility is excellent: bus and tram stations on Evropská Street, metro station within walking distance, easy connections to all parts of Prague.

The apartment is currently rented until August 2026, with the possibility of continuing the current rental relationship.

The seller reserves the right to select the buyer according to their own criteria or to accept a higher price offer.

For more information or to arrange a viewing, do not hesitate to contact us.
Offer ID979140
Last updated23.04.2026
Price17 900 000 CZK, excluding agency fees
Price for discussionNo
Agency feeExcluding agency fees
ConditionVery good condition
Construction typeBrick
OwnershipPersonal
Floor2
Number of floors4
Usable area88m2
Floor area88m2
Terrace area25m2
Move-in date01.08.2026
GarageYes
ParkingNo
CellarNo
BalconyNo
TerraceYes
LoggiaNo
ElevatorNo
Electricity230V
Year of construction2001
Number of parking spaces1
Garrets (attic spaces)No
Low-energyNo
Energy RatingC - Economical
DecreeNo. 78/2013 Coll.
Send me an offer for a low-rate mortgage
Markéta Čekalová

Markéta Čekalová

Reveal phone number

Philip & Frank s.r.o.

Štefánikova 1/65, Praha 5, 15000

view all agency properties