Apartment for sale, 5+1 - 4 bedrooms, 240m2

Buzulucká, Praha 6 - Dejvice

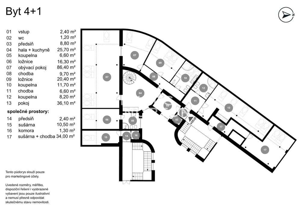
The spacious apartment on the top floor of the house on the corner of Kafkova and Buzulucka streets in Dejvice is attractive for its solution, where the entire interior area of ​​238 sqm is distributed only on the 5th floor and the staircase is used only when we want to go out to the roof terrace with an area of ​​51 sqm. The apartment is arranged in a layout with four bedrooms, each with its own bathroom, a large living room facing southwest and a separate kitchen with a dining room, from which the aforementioned staircase leads to the roof terrace. The terrace, although large, is completely hidden behind the ridge of the roof and is thus protected from views from surrounding houses. The terrace floor is statically reinforced to accommodate an outdoor jacuzzi. Returning to the interior, we must not forget to mention that one of the bedrooms of the apartment is situated and structurally prepared in such a way that it can be used for separate use. This opens up the possibility of multi-generational living with a student child or a senior parent. An alternative is the possibility of inserting an entrance door into this part of the apartment and creating an independent studio apartment with the possibility of external rental. Heating and energy metering take this possibility into account. The interior of the apartment is well-lit, the rooms are spacious, and the equipment is designed in natural light tones. The house has a new elevator with an exit directly at the apartment. The interior of the house is clean and continuously maintained. The condominuim of the house is currently building an office in the lower ground floor, which will be externally rented out and the income from this rental will be an important benefit to all owners in the house. There is also a quiet internal garden with benches and mature greenery in the courtyard.Parquet floors. Underfloor heating. Preparation for air conditioning. Preparation for a gas fireplace. Preparation for a kitchen unit. 2x gas boiler with a hot water tank. Bathrooms equipped with high-quality sanitary ware.The house at Buzulucka 6 is built on the corner of Kafkova and Buzulucká, it is a quiet place without car traffic, but at the same time 200m above Vítězné náměstí and therefore within walking distance of the local transport hub. The city center is accessible within 10 minutes. The airport is within 20 minutes by car.
Last updated02.04.2026
Price32 000 000 CZK
ConditionVery good condition
Construction typeBrick
OwnershipPersonal
FurnishedNo
Floor4
Number of floors5
Usable area240m2
Move-in date01.04.2026
GarageNo
ParkingNo
CellarNo
BalconyNo
TerraceYes
LoggiaNo
ElevatorYes
Energy RatingG - Exceptionally uneconomical
Send me an offer for a low-rate mortgage
Adéla Bukovská

Adéla Bukovská

Reveal phone number

LEXXUS NORTON

Na Poříčí 2090/2, Praha 1, 11000

view all agency properties