Apartment for sale, 4+kk - 3 bedrooms, 194m2

Na pískách, Praha 6 - Dejvice

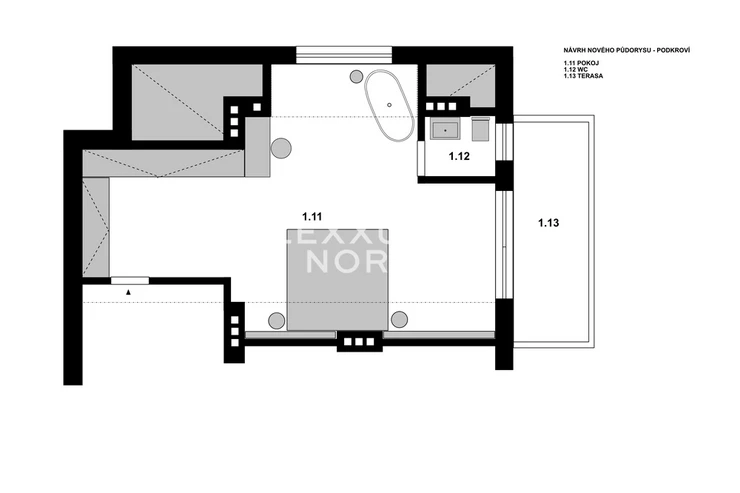
We are offering for sale the entire third floor of a historical apartment villa in the popular and sought-after location of Hanspaulka, Prague. The entire floor has an area of 194 sqm and is divided into two separate residential units. The units also include a share in a well-maintained mature garden with an area of more than 1,530 sqm.The units are intended for complete renovation, and by modifying their layout, it is possible to create a spacious 4-5+kk apartment with a terrace and exceptional views of the city and Prague Castle. Thanks to the low number of units in the villa and the large garden, the renovation can create unique family living with an intimate villa atmosphere, plenty of privacy, and proximity to greenery. The units can also be left in their current layout and used as an investment for future rental.The units are heated by a separate gas boiler. It is possible to install an elevator in the house.The apartments are located in Prague 6 - Dejvice in the sought-after residential area of Hanspaulka, which has all the amenities you need and is popular for its peaceful atmosphere and proximity to Sarka Nature Park. Transport links are also excellent - a 2-minute walk to the tram and bus stop, 5 minutes to the Borislavka metro station (line A). The city center can be reached in 15 minutes and Václav Havel Airport in 20 minutes. Another advantage is the proximity of international schools in Prague 6 and Nebusice.The advertisement uses visualizations and floor plans of the proposed solution, which are for illustrative purposes only.
Last updated26.03.2026
Price20 990 000 CZK
ConditionFor renovation
Construction typeMixed
OwnershipPersonal
FurnishedNo
Floor2
Number of floors1
Usable area194m2
Move-in date26.03.2026
GarageNo
ParkingYes
CellarYes
BalconyNo
TerraceYes
LoggiaNo
ElevatorNo
Energy RatingG - Exceptionally uneconomical
Send me an offer for a low-rate mortgage
Adéla Bukovská

Adéla Bukovská

Reveal phone number

LEXXUS NORTON

Na Poříčí 2090/2, Praha 1, 11000

view all agency properties