Apartment for sale, 2+kk - 1 bedroom, 47m2

Na výšinách, Praha 7 - Bubeneč

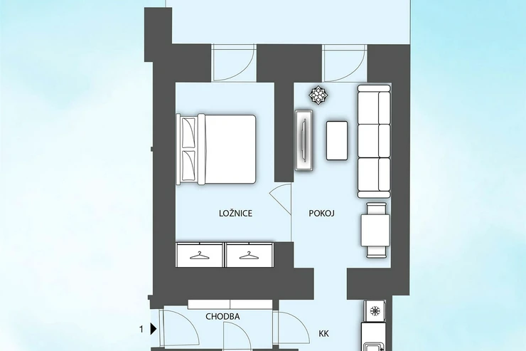
This stylish one-bedroom apartment has a floor area of 46.8 m² and boasts a private front garden. Ideal for those who want to live in the popular Prague neighborhood of Letná - and at the same time have peace, space, and the opportunity to complete the interior according to their own design ideas. The basement unit offers a thoughtful solution for a modern lifestyle: an open living space with preparation for a kitchen, a separate bedroom and a bathroom. It also includes a private front garden - the perfect place for weekend brunches or evenings under the stars. The white wall design allows the future owner to fine-tune the interior exactly to their wishes. The building has undergone a complete renovation in the spirit of the original Letná architecture - with an emphasis on detail, materials, and quality of workmanship.
Letná is not about compromises. It is urban living at its best: two minutes to a leafy park, two minutes to a strong espresso, two minutes to a convenient tram - everything is right around the corner. This is Letná - the way it’s meant to be experienced and lived.
Offer IDNAV01
Last updated15.12.2025
Price7 276 000 CZK
Price for discussionNo
ConditionRenovated
Construction typeBrick
OwnershipPersonal
Floor-1
Number of floors7
Usable area47m2
Floor area62m2
Terrace area15m2
Non-residential premises area15m2
GarageNo
ParkingNo
CellarNo
BalconyNo
TerraceYes
LoggiaNo
ElevatorYes
Garrets (attic spaces)No
TransportBus, Public transport, Road, Highway, Train
Low-energyNo
Energy RatingG - Exceptionally uneconomical
DecreeNo. 78/2013 Coll.
Send me an offer for a low-rate mortgage
Simon Lukavský

Simon Lukavský

Reveal phone number

PSN, s. r. o.

Seifertova 823/9, Praha 3, 13000

view all agency properties