Retail space for rent, 1137m2

Za Mototechnou, Praha 5 - Stodůlky

360 000 CZK / month
Make Enquiry
We offer for rent unique spaces for an auto showroom.
The property consists of two spaces with a total area of 2,799 square meters.

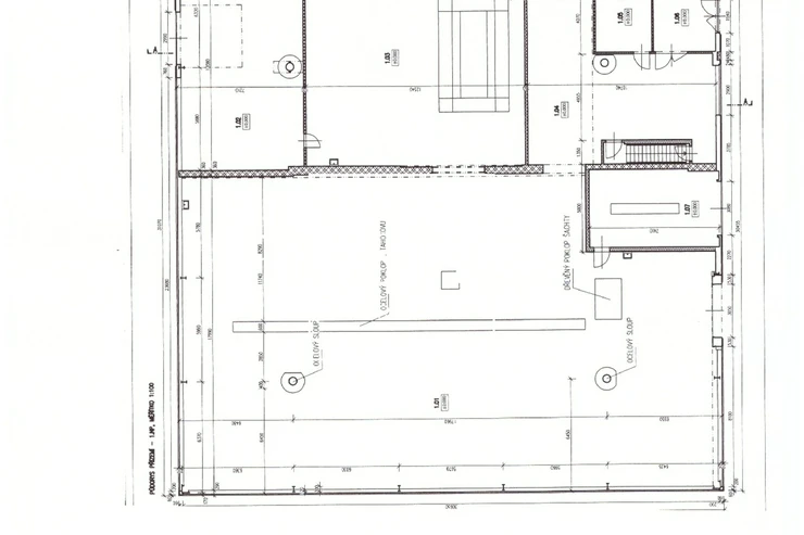
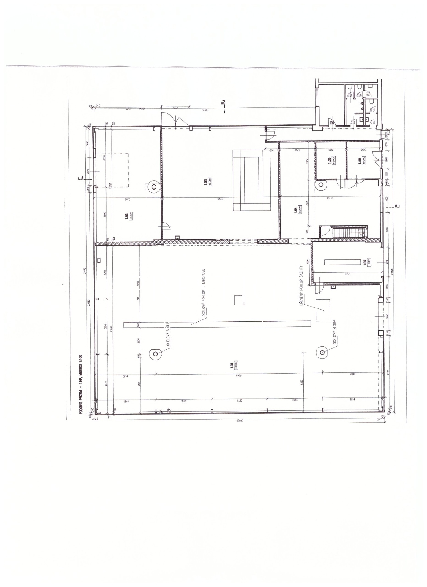
The first space is used as a showroom, customer reception, and office space for employees. The showroom area on the ground floor is 900 square meters.

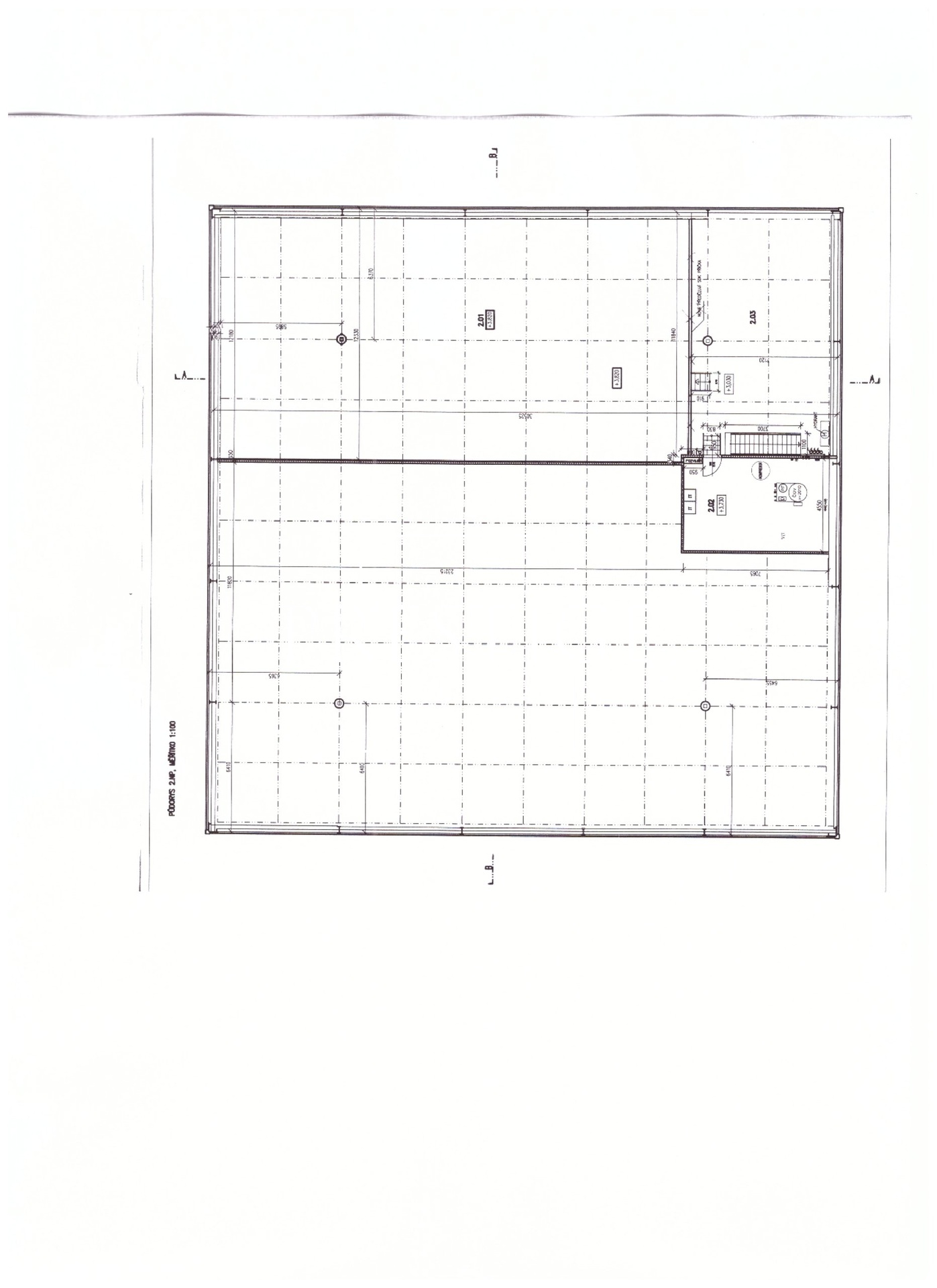
On the first floor, there is a small kitchen for employees and toilets, as well as a large number of offices divided into rooms that can be used for meetings. The first-floor area is 562 square meters.

The second space, with a total area of 1,337 square meters, is used exclusively for vehicle servicing, parts painting, and car parts storage. There is also a special car wash box available.
For service employees, there is a kitchen and the option to rent a separate shower.

In front of the building, there are approximately 150 parking spaces, and separate parking is available for customers.

The buildings are guarded by a gatehouse operating 24/7.
A complete renovation of all utility networks and the facade has recently been carried out. The spaces are dry, presentable, and require no investment.

In case of interest, the possibility of selling the premises is also considered.

Monthly rent: 720,000 CZK + 21% DPH
Service fees: 160,000 CZK + 21% DPH
Deposit: 2x monthly rent excluding service fees
Real estate agency commission: 1x monthly rent excluding service fees
Offer ID30420
Last updated01.03.2026
Price360 000 CZK / month
Price for discussionNo
House typeGround level
ConditionVery good condition
Construction typeAssembled
Usable area1137m2
Move-in date01.06.2025
Viewing available from2025-04-07 00:00:00
GarageNo
ParkingNo
CellarNo
BalconyNo
TerraceNo
LoggiaNo
PoolNo
Garrets (attic spaces)No
Low-energyNo
Energy RatingC - Economical
DecreeNo. 148/2007 Coll.
Send me an offer for a low-rate mortgage
Nikita Kostikov

Nikita Kostikov

Reveal phone number

PRESTIGE GROUP

Na Poříčí 1071/17, Praha 1, 11000

view all agency properties