Retail space for rent, 123m2

Strakonická, Praha 5 - Lahovice

19 251 CZK / month
Make Enquiry
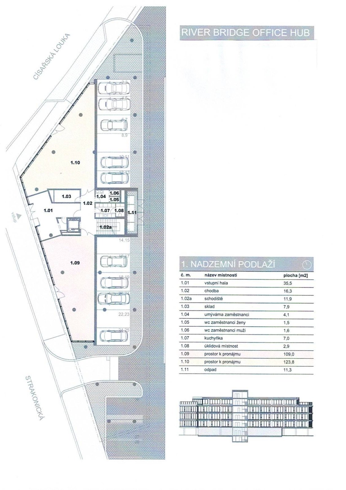
We offer for rent a commercial space in the River Bridge Office Hub administrative new building in an attractive location in Prague 5. The space with an area of ​​99,1 sqm is located on the main floor of the office building with a reception and 24/7 security. The lease includes the use of a social area of ​​66 sqm. The location has all amenities and excellent transport accessibility by car and public transport. Just a few minutes from the Lihovar tram stop and a few minutes from the Smíchovské nádraží metro station. Close access to the Prague Ring Road and the connected motorway network.
The preferential rent for the first 9 months is 7.99 Eur/sqm/month + VAT, full rent 14.99 Eur/sqm/month + VAT. The total rent stated in EUR is paid in CZK, which is converted according to the average exchange rate for the last 3 months.
The price for services is 140 CZK/sqm/month + VAT and includes: reception + concierge services, 24/7 security, electricity, heating, cleaning and maintenance of common areas, waste disposal, maintenance of access roads and the RBOH area.
Parking space is available for an extra price per month: covered parking space 115 Eur + VAT, outdoor parking space 85 Eur + VAT, parking space behind the bridge 1,010 CZK + VAT.
This space can be used in connection with the sports industry - either as a store with sports supplies (nutrition, clothing, equipment, etc.), or for example as an exercise studio, smaller fitness center or similar concept The premises are available for move-in from March 2026. More space available for rent on the 1st to 3rd floors of the building - please contact our office for more information.
Offer ID26017
Last updated22.01.2026
Price19 251 CZK / month
Price for discussionNo
House typeWith floors
ConditionVery good condition
Construction typeMixed
FurnishedNo
Number of floors5
Usable area123m2
Floor area123m2
Office area123m2
Construction start date30.11.1999
Construction end date30.11.1999
Move-in date01.03.2026
GarageNo
ParkingNo
CellarNo
BalconyNo
TerraceNo
LoggiaNo
ElevatorYes
PoolNo
Barrier-free accessNo
Low-energyNo
Energy RatingG - Exceptionally uneconomical
DecreeNo. 264/2020 Coll.
Send me an offer for a low-rate mortgage
Dagmar Suchardová, ORION Realit, s.r.o.

Dagmar Suchardová, ORION Realit, s.r.o.

Reveal phone number

Orion Realit, s.r.o.

Strakonická 3367, Praha 5, 15000

view all agency properties