Office for rent, 417m2

Ke hrádku, Praha 4 - Kunratice

88 000 CZK / month, excluding agency fees
Make Enquiry
We offer for rent an exclusive family house suitable for office use in Kunratice, Prague, in a place surrounded by greenery, near the Kunratický les forest park and less than two kilometers by car from the Westfield Chodov shopping center, near which there is a metro station and The Park office complex. The location is very accessible to all civic amenities, including medical care and education. For example, the Prague British International School is also well accessible.
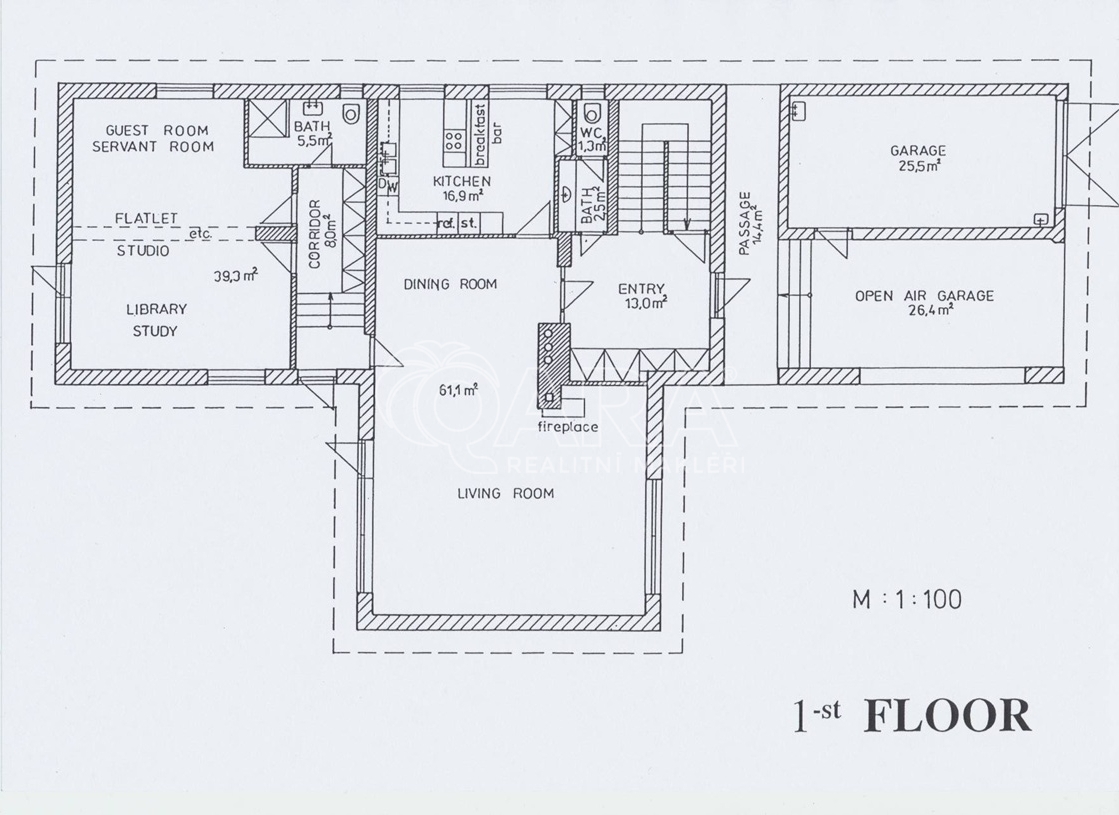
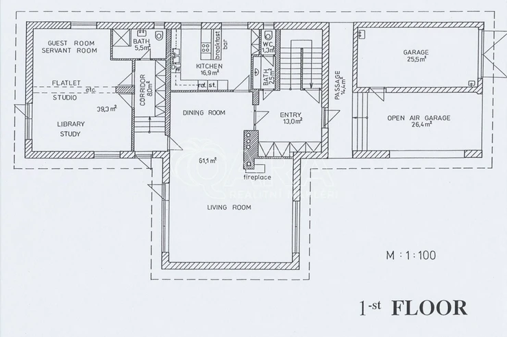
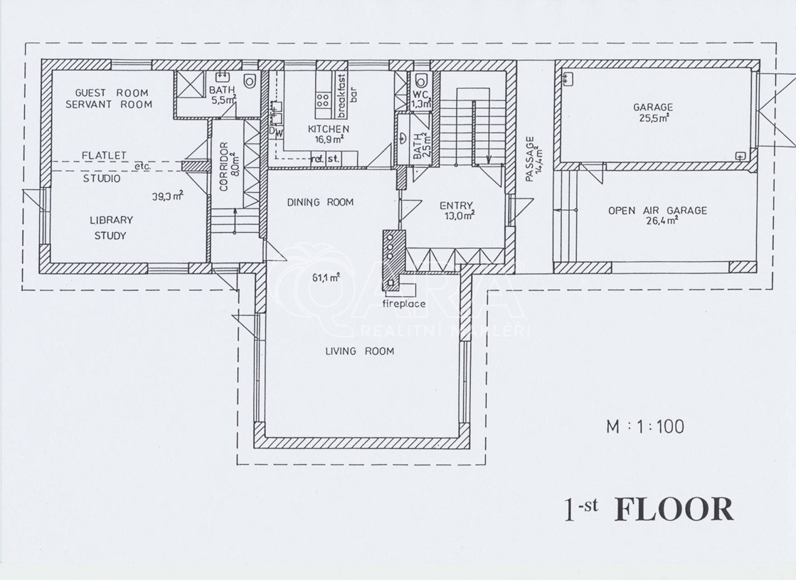
The house itself has a built-up area of ​​264 m2, a floor area of ​​417 m2, two garage spaces and a flat garden with a size of 1000 m2. The internal layout of the house is 6+1. The largest is the living room with a fireplace and high ceiling, and there are also four bathrooms. The company can find a quiet environment here that is completely different from classic office buildings. Do not hesitate, get in touch and we will be happy to organize a tour.

In addition to the advertised rent (the landlord is a natural person, so VAT is not paid), it is necessary to count on payment for energy consumption, water and household waste removal.
Offer ID6122/2918
Last updated18.01.2026
Price88 000 CZK / month, excluding agency fees
Price for discussionNo
Agency feeExcluding agency fees
House typeWith floors
ConditionVery good condition
Construction typeBrick
FurnishedNo
Number of floors2
Usable area417m2
Garden area999m2
Office area417m2
Move-in date15.12.2025
GarageYes
ParkingYes
CellarNo
BalconyNo
TerraceNo
LoggiaNo
PoolNo
Number of parking spaces1
Number of garages1
Garrets (attic spaces)No
Low-energyNo
Energy RatingB - Very economical
DecreeNo. 78/2013 Coll.
Send me an offer for a low-rate mortgage
Jakub Horváth

Jakub Horváth

Reveal phone number