Warehouse for rent, 14528m2

Železniční, Plzeň - Východní Předměstí

Price not provided
Make Enquiry
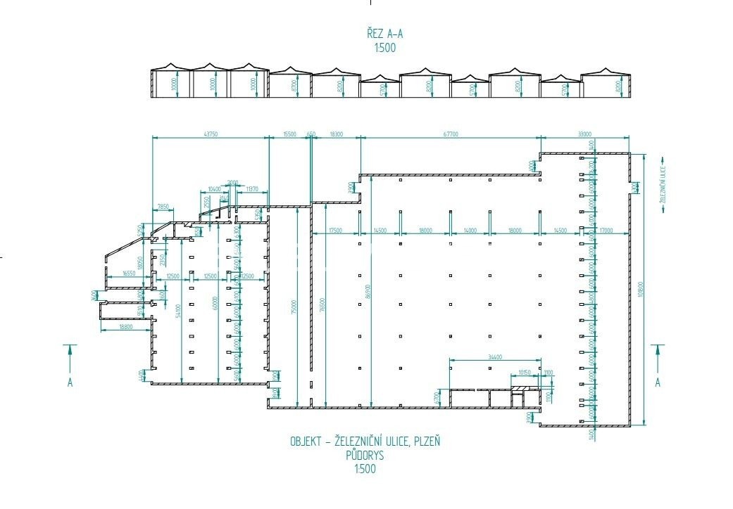
We offer warehouse halls in Železniční Street for long-term rent. Unique premises with the possibility of renting up to 14 528 m2. The hall is divided into different unheated spaces.

There is an office background and also a sanitary facility, which is newly built. Access to the halls 24/7/365. The area is guarded by CCTV, the security agency HLS, and is fenced. The clear height is 10 m and the entrance height is 4.9 m. The area is easily accessible for trucks and lorries. The warehouse area has several entrance gates, e.g. with a height of 4.9 m and a width of 4.3 m. A railway siding leads to the warehouse.
The location is also a great advantage as it is easily accessible and close to the centre.
Take advantage of the unique opportunity to rent warehouse space near the centre.
If you are interested, please contact us for more information or for a viewing.
Two diesel forklifts from Linde are available, there is high-speed internet.
Offer ID243847
Last updated07.11.2025
PricePrice not provided
Price for discussionNo
House typeGround level
ConditionGood condition
Construction typeBrick
Floor1
Usable area14528m2
Move-in date23.04.2025
GarageNo
ParkingNo
CellarNo
BalconyNo
TerraceNo
LoggiaNo
PoolNo
Garrets (attic spaces)No
Low-energyNo
Energy RatingG - Exceptionally uneconomical
Send me an offer for a low-rate mortgage
Blanka Randová

Blanka Randová

Reveal phone number

Engel & Völkers - Prague

Plzeňská 3351/19, Praha 5, 15000

view all agency properties