Other commercial property for rent, 105m2

Pařížská, Praha 1 - Staré Město

Price not provided
Make Enquiry
We offer for rent a commercial space in a historic building at the prestigious address Pařížská street in the center of Prague 1.

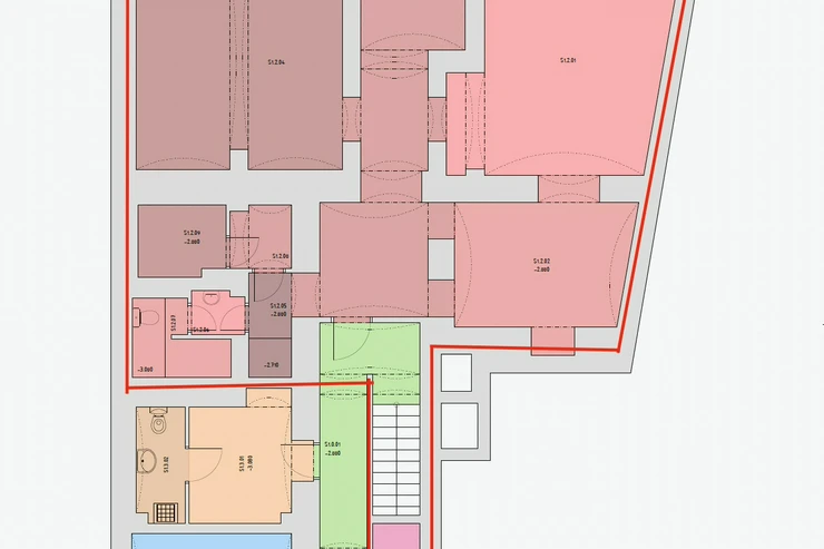
This space is located on the first underground floor and is in shell&core condition. Thanks to that it offers unlimited potential for your business. The space is divided into several rooms with a total floor area of 105 m² - see floor plan. There is a gas connection to the space. The heating system is purely up to your choice - all options are acceptable (gas boiler, electric boiler, direct-fired heaters, heat pump, etc). There is also preparation for air conditioning and fresh air supply is provided.

The highly desirable location, elegant brick building and excellent metro and public transport accessibility make this an ideal choice for your business.

Be the first to take advantage of this unique opportunity and customize this space to your needs and desires. Contact us for more information and to arrange a viewing with our broker. This offer is a great opportunity for entrepreneurs looking for a new space for their business.
Offer ID01359
Last updated20.03.2025
PricePrice not provided
Price for discussionNo
FeesExcluding utility fees
Agency feeExcluding agency fees
House typeWith floors
ConditionFor renovation
Construction typeBrick
FurnishedNo
Underground floors1
Usable area105m2
Move-in date24.03.2025
GarageNo
ParkingNo
CellarNo
BalconyNo
TerraceNo
LoggiaNo
ElevatorNo
PoolNo
Water sourceRemote source
GasEnergy company
Electricity230V
TelecomCable, Internet, Telephone
Building typePart of block
Building surroundingsBusiness and residential
Garrets (attic spaces)No
TransportBus, Public transport
Road typeAsphalt
Low-energyNo
Energy RatingG - Exceptionally uneconomical
Send me an offer for a low-rate mortgage
Mgr. Marco Morsut

Mgr. Marco Morsut

Reveal phone number

Ma Maison Premier Properties

Pařížská 1073/1, Praha 1, 11000

view all agency properties