Apartment for rent, 3+kk - 2 bedrooms, 74m2

Máchova, Plzeň - Jižní Předměstí

19 000 CZK / month, with agency fees
Make Enquiry
Dámy a pánové,

Dovolte nám představit tento krásný, zrekonstruovaný byt 3+kk, který právě teď míří do nabídky pronájmů a pokud hledáte pro sebe a svoji rodinu v dnešní době, cenově dostupné bydlení, jste na správné adrese.

Vítejte v Plzni na Borech v Máchově ulici.

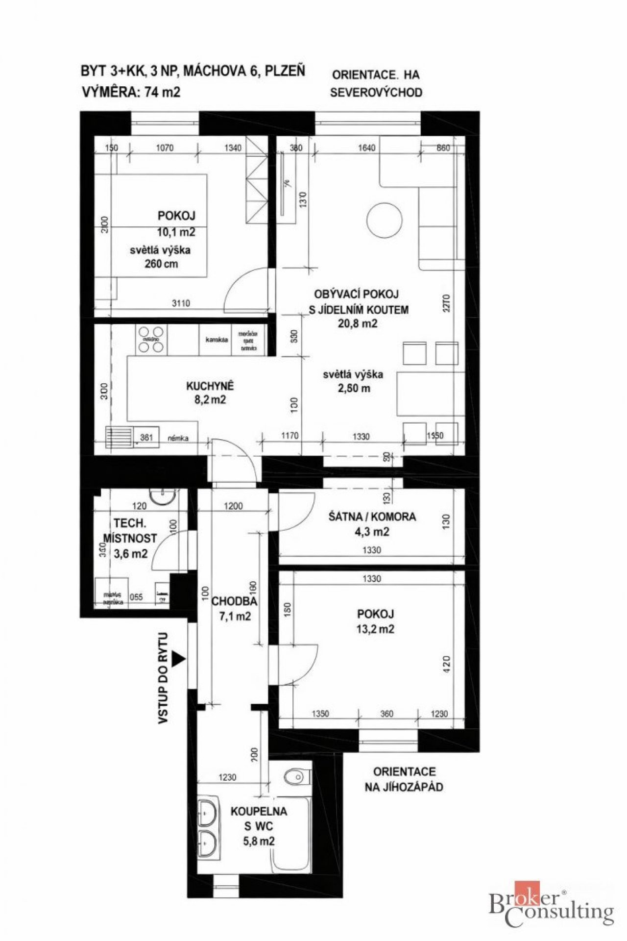
Tento světlý a skvěle dispozičně řešený byt prošel v roce 2018 kompletní rekonstrukcí. Užitná plocha samotného bytu činní 74m2. Bytovou jednotku tvoři prostorná předsíň s chodbou, koupelna s toaletou, dětský pokoj, šatna, technická místnost, kuchyňský kout s jídelnou a obývacím pokojem, ze kterého je přímý vstup do hlavní ložnice.

Byt se nachází ve třetím patře cihlového domu bez výtahu, kdy na každém patře jsou pouze dva byty, což zajišťuje dostatek soukromí.

Jelikož dům leží v širším centru Plzně, veškerá občanská vybavenost pro každodenní žití se nachází v docházkové vzdálenosti.

Nájemné činní 19 000- + 1 000,- služby + Elektřina, kterou si nájemce převádí na sebe.

Provize RK je 20 000,- + DPH.

Pokud vás tato nemovitost zaujala, neváhejte nás kontaktovat.

Rezervujte si své místo již nyní, rádi vás nemovitostí provedeme.
Offer ID83593
StatusReserved
Last updated01.05.2026
Price19 000 CZK / month, with agency fees
Price for discussionNo
Agency feeWith agency fees
ConditionVery good condition
Construction typeBrick
OwnershipPersonal
FurnishedYes
Floor3
Number of floors4
Usable area74m2
Move-in date01.04.2026
GarageNo
ParkingNo
CellarNo
BalconyNo
TerraceNo
LoggiaNo
ElevatorNo
PoolNo
Water sourceRemote source
Electricity400V
Waste managementPublic sewage
Year of reconstruction2018
Building typePart of block
Garrets (attic spaces)No
TransportBus, Public transport, Road, Highway, Train
Road typePaved
Low-energyNo
Energy RatingG - Exceptionally uneconomical
Send me an offer for a low-rate mortgage
Broker Consulting, a.s.

Broker Consulting, a.s.

Reveal phone number

REALITYSPOLU

Radlická 751/113e, Praha 5, 15800

view all agency properties