Apartment for rent, 2+kk - 1 bedroom, 40m2

Honzíkova, Praha 10 - Dolní Měcholupy

21 000 CZK / month, excluding utility fees, excluding agency fees
Make Enquiry
We offer you a partially furnished apartment with a parking space and a balcony in the Malý Háj development project for long-term rent.

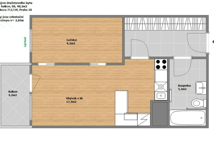
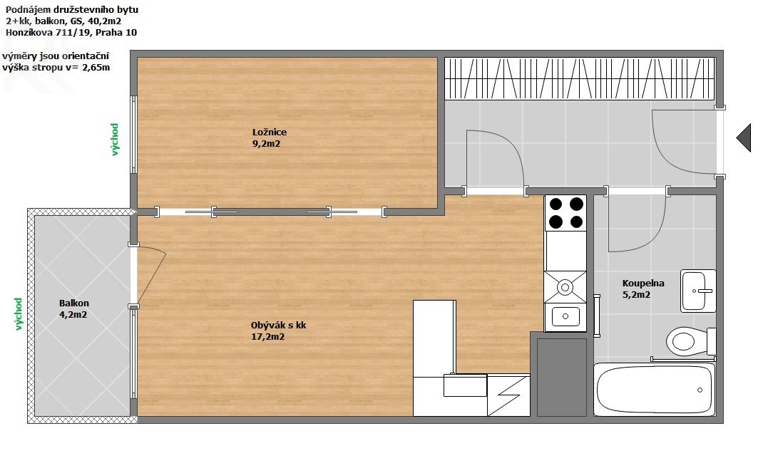
The 2+kk apartment with an area of 40.2 m2 is located on the 4th floor (3rd floor). The windows and loggia face east
The floors are laminate, with tiles in the hallway and bathroom. The bathroom has a bathtub, toilet, and sink with mirror. There is enough space for a washing machine and dryer.
All rooms have ceiling lights with adjustable light temperature (daylight, warm white, white). Security entrance door. The windows have internal blinds and curtain rails are already in place.

There is a large wardrobe in the hallway.
The kitchen is equipped with all necessary appliances: refrigerator, oven, microwave, dishwasher, induction hob, extractor hood, and sink.
There is a bar counter with 2 chairs. These will be delivered in the coming days, as will the sliding doors to the bedroom.

A great advantage of this apartment is the balcony (+4.2 m2), where you can enjoy sitting on summer evenings.

In addition to the apartment, the tenant will have a reserved parking space in the garage of the building. There is also a large bicycle storage room with bike racks and a stroller storage room for residents.
Shopping options: LIDL, PENNY, drugstore (Retail Park Štěrboholy) or OC Štěrboholy, Fashion Arena, and others.

A 2-minute walk from the building is the "Kardausova" bus stop (nos. 173, 229, 252), and on the main street there is the "Kutnohorská" stop (204, 229, 364, 366, night buses 903 and 908) mainly heading to the metro station =A= Depo Hostivař.

Housing costs:
rent 21,000CZK/month
parking space +2,000 CZK/month
billed utilities (water, heat, elevator, etc.) deposit 3,700 CZK/month/2 people
electricity - transferred to the tenant - approx. CZK 1,200/month
refundable deposit CZK 35,000

Long-term lease for a minimum of 1 year
- Fixed-term lease with the possibility of extension (due to cooperative ownership, a sublease agreement is concluded here)
- The sublease agreement copies the rights of the lease agreement, possibility of permanent residence/stay.
- Mandatory household insurance (tenant's liability for damage to the rented property)
- The tenant must speak Czech/Slovak or English
- Apartment available for move-in March/April 2026

VIEWINGS Tuesday, March 17, 2026, 3-7 p.m. To reserve a specific viewing time, it is necessary to call in advance.

For more information and viewing times, please contact the broker.
Offer ID0224
Last updated13.03.2026
Price21 000 CZK / month, excluding utility fees, excluding agency fees
Price for discussionNo
Price commentsee the text
FeesExcluding utility fees
Agency feeExcluding agency fees
Heating costs4 900
ConditionNew construction
Construction typeBrick
OwnershipCooperative
FurnishedPartially
Floor4
Number of floors7
Usable area40m2
Floor area44m2
Balcony area4m2
Year of acceptance2025
Move-in date23.03.2006
GarageYes
ParkingYes
CellarNo
BalconyYes
TerraceNo
LoggiaNo
ElevatorYes
PoolNo
Water sourceRemote source
HeatingCentral remote
Electricity400V, 230V
TelecomInternet
Waste managementPublic sewage
Building surroundingsResidential
Number of parking spaces1
Number of garages1
Garrets (attic spaces)No
TransportBus, Public transport, Road, Highway
Road typeAsphalt
Low-energyNo
Energy RatingB - Very economical
DecreeNo. 264/2020 Coll.
Send me an offer for a low-rate mortgage
Mgr. Jana Reich

Mgr. Jana Reich

Reveal phone number

REICH REALITY

Na Pankráci 332/14, Praha 4, 14000

view all agency properties