Apartment for rent, 2+kk - 1 bedroom, 44m2

Daliborova, Praha 10 - Hostivař

17 500 CZK / month, excluding agency fees
Make Enquiry
We offer you an apartment for rent in Hostivař
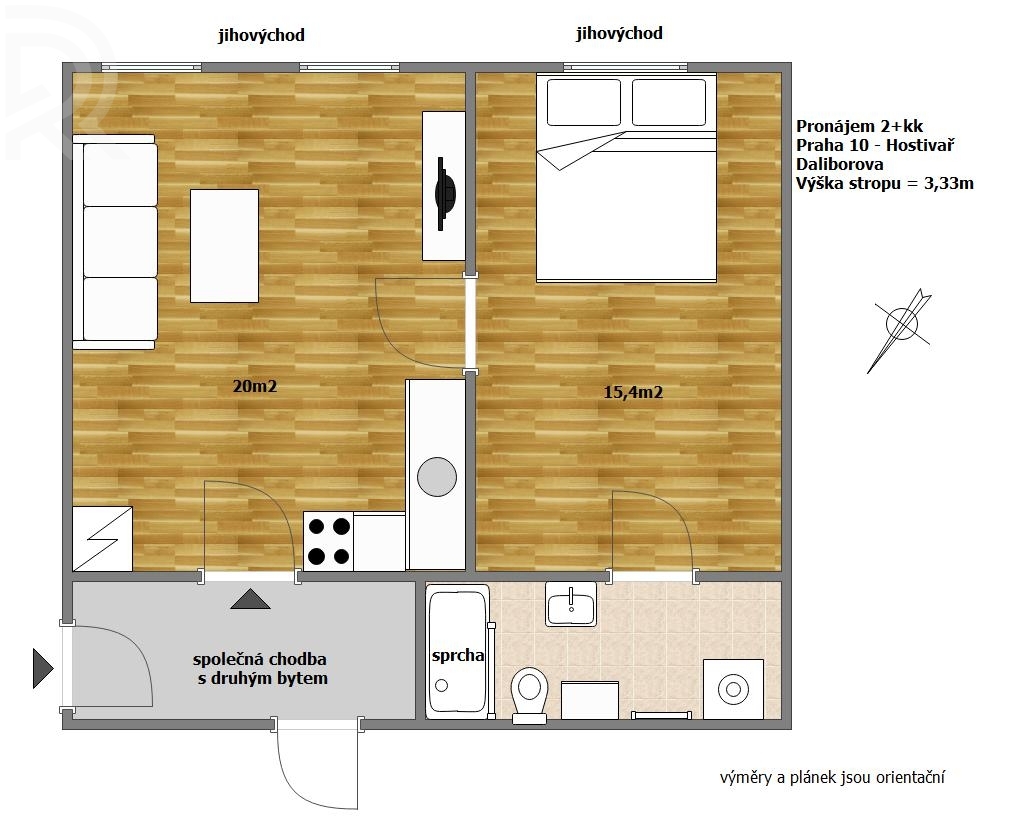
Layout: 2+kk, 44m2
Location: Daliborova Street, Prague 15 - Hostivař
Available: immediately

Apartment description
We offer you a spacious apartment for rent in the quiet Daliborova Street in Hostivař. The apartment is located in a brick building with a family atmosphere where you will feel safe and comfortable.

The apartment has a spacious living room connected to the kitchen, through which you can walk to the bedroom and further to the bathroom. The kitchen is equipped with a kitchen unit, electric oven, extractor hood, and freestanding refrigerator.

There is a bathroom with a spacious shower, water heater, toilet, and washing machine. The rooms face southeast, overlooking family houses. The scaffolding will be removed in about 1-2 months.

Floating floors, triple-glazed windows, interior blinds.

Amenities and services:
Security cameras are installed in the building
The entrance door to the building opens with a code or key
Internet is included in the fees
Possibility to use the garden
Heating is provided for several apartments by a new Bosch gas boiler located on the floor.

Location and transport accessibility

The apartment is located on a quiet street with excellent transport accessibility:
Buses and trams right outside the building
Train connection to the center of Prague - only an 8-minute walk
Day and night connections for maximum comfort

Amenities in the area:
Hostivař Shopping Center - within reach
Lidl - 5 minutes' walk
Albert - 10 minutes' walk
Convenience store - right in front of the building

Leisure activities:
Hostivař Dam - ideal for sports activities and walks
Parks for relaxation and recreation
Parking right in front of the building, no zones

Financial conditions:
Rent: CZK 17,500/month
Building fees: approx. CZK 4,000/2 people (includes water, heat, internet, garbage, building cleaning, etc.)
Electricity: transferred to the tenant, approx. CZK 1,200/month
Refundable deposit: CZK 25,000
Real estate agency service fee CZK 11,000

Rental conditions:
We are looking for long-term tenants
We welcome: individuals, couples, and families
Communication: Czech or English
Pets: individually upon agreement
This is ideal housing for those who are looking for a quiet environment with excellent access to the center of Prague and at the same time want to be close to nature.

For more information and to schedule a viewing, please do not hesitate to contact us.
Offer ID0223
Last updated06.03.2026
Price17 500 CZK / month, excluding agency fees
Price for discussionNo
Price commentsee the text
Agency feeExcluding agency fees
ConditionVery good condition
Construction typeBrick
OwnershipPersonal
FurnishedYes
Floor1
Number of floors2
Usable area44m2
Floor area46m2
Year of acceptance1919
Move-in date01.09.2025
GarageNo
ParkingNo
CellarNo
BalconyNo
TerraceNo
LoggiaNo
PoolNo
Water sourceRemote source
GasEnergy company
Electricity400V
TelecomInternet
Waste managementPublic sewage
Building surroundingsResidential
Garrets (attic spaces)No
TransportBus, Public transport, Road, Highway, Train
Road typeAsphalt
Low-energyNo
Energy RatingF - Very uneconomical
DecreeNo. 264/2020 Coll.
Send me an offer for a low-rate mortgage
Mgr. Jana Reich

Mgr. Jana Reich

Reveal phone number

REICH REALITY

Na Pankráci 332/14, Praha 4, 14000

view all agency properties