Apartment for rent, 4+kk - 3 bedrooms, 144m2

Na poříčí, Praha 1 - Nové Město

52 000 CZK / month
Make Enquiry
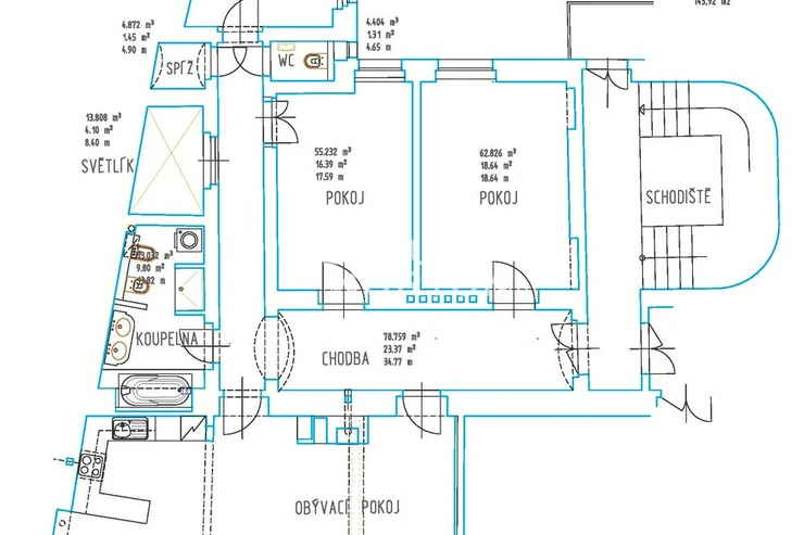
Modern furnished 3-bedroom apartment for rent located on the 3rd floor of a newly renovated residential building, located in the center of Prague. The gated apartment complex offers a high standard and the attractive location provides all civic amenities and excellent transport accessibility.This furnished 3-bedroom apartment with an area of 144 sqm is located on the 3rd floor of a renovated residential building and consists of a spacious entrance hall, living room with fireplace, fully equipped kitchenette, and dining area. The apartment also offers three bedrooms, a bathroom, separate toilet, and storage room.This furnished apartment offers a practical kitchenette equipped with a stove, oven, refrigerator, freezer, dishwasher, and microwave.The apartment includes a bathroom with a bathtub. The floors are a combination of parquet and tile, creating a pleasant and functional environment.The renovated residential building is located in an attractive part of Prague 1 - Nove Mesto. The location of Nove Mesto is known for its unmistakable atmosphere, comfortable living in the center just a few steps from the metro station B and tram stop Namesti republiky. From the Main Railway Station (10 min.) there is a direct connection to the Vaclav Havel Airport. There are local shops, florists and countless restaurants and cafes right on Na Porici Street. In the immediate vicinity there is also the Palladium shopping centre.The monthly fees amount to CZK 1,750 per person + electricity and gas transfer. The inquiring client agrees to pay a commission of 1 month's rent plus VAT. We offer you a video tour of this property from the comfort of your home in real time via Messenger, WhatsApp and other communication platforms.
Last updated23.02.2026
Price52 000 CZK / month
Price comment+ fees: 1750 Kč/person + transfer to tenant: electricity + gas
ConditionVery good condition
Construction typeBrick
OwnershipPersonal
FurnishedYes
Floor3
Number of floors4
Usable area144m2
Move-in date01.04.2026
GarageNo
ParkingNo
CellarNo
BalconyNo
TerraceNo
LoggiaNo
ElevatorYes
Energy RatingG - Exceptionally uneconomical
Send me an offer for a low-rate mortgage
Adéla Bukovská

Adéla Bukovská

Reveal phone number

LEXXUS NORTON

Na Poříčí 2090/2, Praha 1, 11000

view all agency properties