Apartment for rent, 5+kk - 4 bedrooms, 129m2

Komunardů, Praha 7 - Holešovice

148 000 CZK / month
Make Enquiry
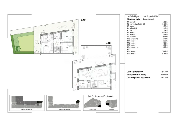
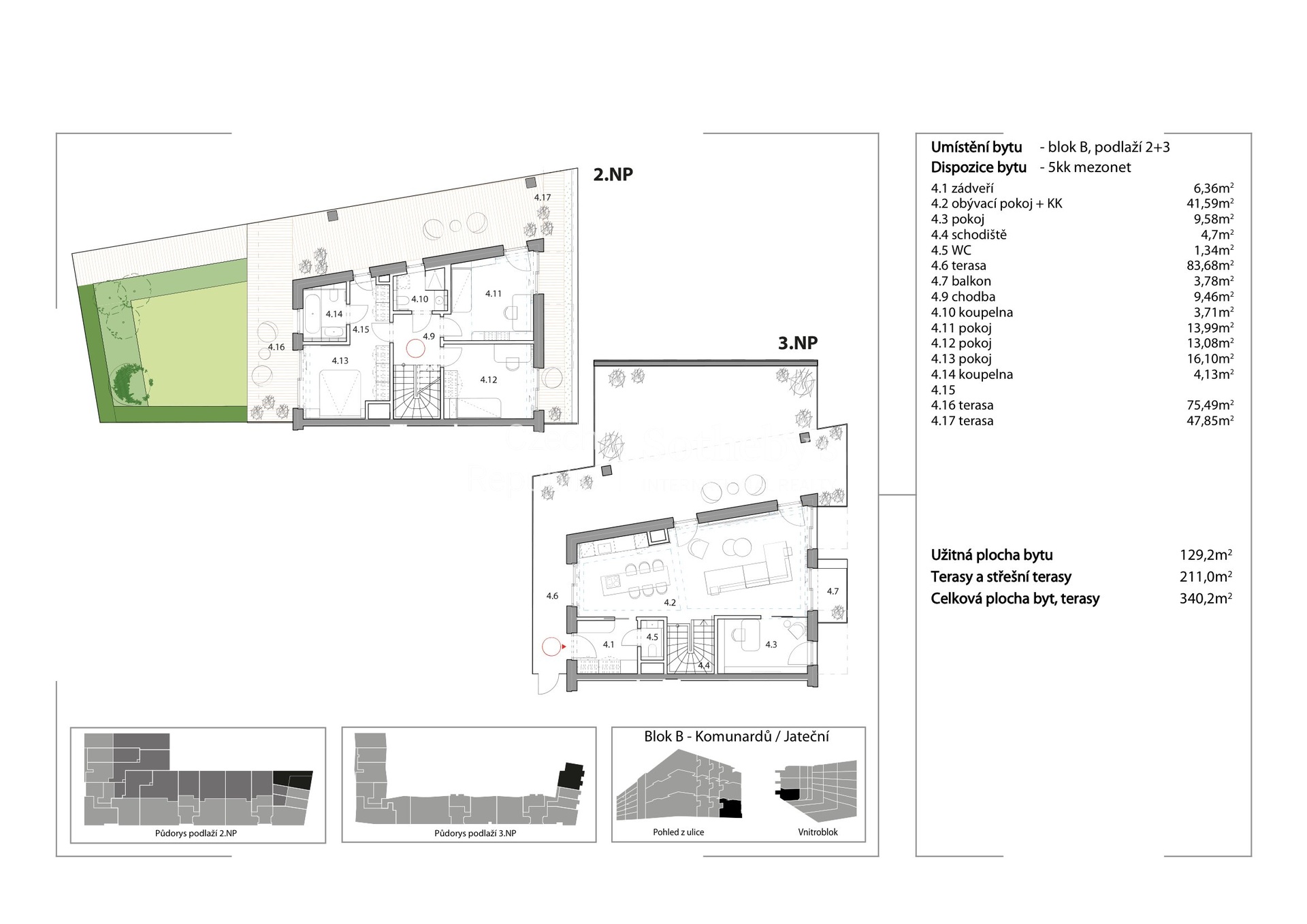
Sotheby’s International Realty Czech Republic offers for rent an exceptional duplex apartment 5+kk, located in the prestigious residential project Rezidence Linea Pura. The apartment with a usable area of ​​129 sqm stands out with exceptionally generous outdoor areas in the form of terraces, a winter garden and a front garden with a total area of ​​211 sqm.

The entrance level of the apartment is located on the 3rd floor and consists of an open living space with a kitchen, dining room and living room. From the living area there is direct access to the spacious terrace, which naturally extends the main living space and seamlessly connects the interior with the exterior. This level also includes a winter garden, which, thanks to its variability, can serve as a study, fitness area or a full-fledged bedroom.

An internal staircase leads down to the 2nd floor, where the quiet part of the apartment is located. It includes three separate bedrooms, two bathrooms and a front garden. The layout is designed with an emphasis on functionality, sufficient privacy and flexible use of individual rooms.

The interior of the apartment meets the high standard of the entire project. Large-format aluminum windows with triple-glazed insulating glass bring plenty of daylight into the interior and emphasize the airiness of the space. The standard includes three-layer wooden floors, bathrooms with tiles and sanitary elements from the Porcelanosa brand, and raised ceilings with integrated indirect LED lighting.

Year-round thermal comfort is ensured by a modern ceiling heating and cooling system connected to a geothermal source, with the possibility of individual regulation in individual rooms. The standard also includes outdoor screen blinds and intelligent control of selected apartment functions.

The apartment is offered unfurnished and includes a garage parking space.

Location - Prague 7 - Holešovice

Holešovice has long been one of the most dynamically developing parts of Prague. Tusarova and Komunardů streets offer an ideal combination of urban lifestyle and excellent transport accessibility. Tram connections within walking distance ensure a quick connection to the city center. The surrounding area offers a complete range of civic amenities, including shops, schools, medical services and a wide range of cafes and restaurants. A significant benefit is the proximity of the Holešovice Market, the Vltava embankment, as well as the Royal Parks of Stromovka and Letenské sady.
Offer ID1086
Last updated05.03.2026
Price148 000 CZK / month
Price for discussionNo
ConditionNew construction
Construction typeMixed
OwnershipPersonal
FurnishedNo
Floor3
Usable area129m2
Floor area340m2
Terrace area211m2
Move-in date03.02.2026
GarageNo
ParkingYes
CellarNo
BalconyNo
TerraceYes
LoggiaNo
ElevatorYes
PoolNo
Building typeTerraced
Number of parking spaces1
Garrets (attic spaces)No
Low-energyNo
Energy RatingG - Exceptionally uneconomical
Send me an offer for a low-rate mortgage
Natálie Kupcová

Natálie Kupcová

Reveal phone number

Sotheby's International Realty Czech Republic

Janáčkovo nábřeží 39/51, Praha 5, 15000

view all agency properties