Apartment for rent, 1+KK - Studio, 32m2

Martinská, Praha 1 - Staré Město

17 900 CZK / month, excluding agency fees
Make Enquiry
We offer for rent an unfurnished studio apartment with a floor area of 32 sqm, located on the 4th floor (5th above ground floor) of a well-maintained building with an elevator, situated on Martinská Street in the prestigious area of Prague 1 – Old Town.

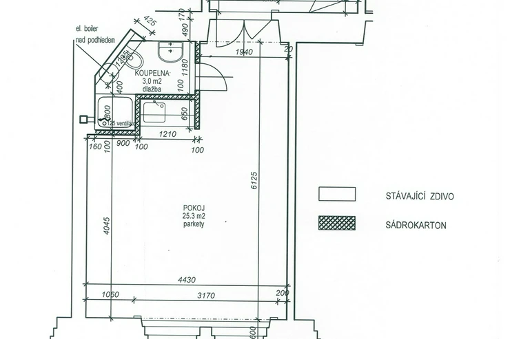
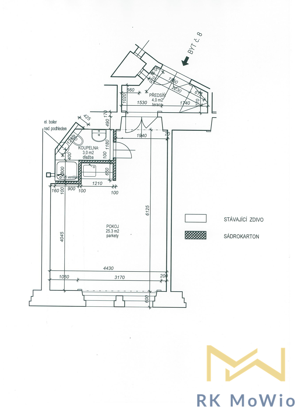
The layout consists of an entrance hall, a living area with a kitchenette, a sleeping area, and one bathroom (with a shower, washbasin, and toilet). The apartment is equipped with a kitchen unit including a fridge with freezer, built-in wardrobes, a washer-dryer, high-speed internet connection preparation, wooden floors, and tiles.

The property is located in a popular part of the historical city center, just a 2-minute walk from the Národní třída tram stop and the metro station (line B). The highly sought-after New Town area offers many cafés (Kavárna Ponrepo, Café Neustadt, Cukrárna Myšák), restaurants (Ristorante Mimosa, Restaurace Sladovna, Bistro Knedlín), and shops — the Shopping Station Quadrio is just around the corner, and Wenceslas Square is an 8-minute walk away. More shops can be found in Na Příkopě Street and at Republic Square, where the impressive Palladium shopping mall is located. The Vltava River is just 550 meters away, with the popular Náplavka waterfront offering regular farmers' markets. Across the Legion Bridge, you can reach Střelecký Island or continue toward Petřín Gardens. Cultural opportunities include the National Theatre, the New Stage, and the Mánes Gallery.

The rent is CZK 17,900/month + building services CZK 1,250/person/month. Utilities are transferred to the tenant.

The required security deposit is two months' rent. Minimum lease term is one year. Shared accommodation, Airbnb, or flat-sharing is not permitted.

According to Decree No. 78/2013 Coll., the energy performance class of the building is G.
Offer ID1955
Last updated03.12.2025
Price17 900 CZK / month, excluding agency fees
Price for discussionNo
Price commentThe real estate agency commission is one month's rent plus 21% VAT.
Agency feeExcluding agency fees
ConditionVery good condition
Construction typeMixed
OwnershipPersonal
FurnishedNo
Floor5
Usable area32m2
Year of acceptance1919
Move-in date01.02.2026
GarageNo
ParkingNo
CellarNo
BalconyNo
TerraceNo
LoggiaNo
ElevatorYes
PoolNo
GasEnergy company
Electricity230V
TelecomInternet, Telephone
Waste managementPublic sewage
Garrets (attic spaces)No
TransportBus, Public transport, Road, Highway, Train
Road typeAsphalt
Low-energyNo
Energy RatingG - Exceptionally uneconomical
DecreeNo. 78/2013 Coll.
Send me an offer for a low-rate mortgage
Ing. Monika (Lecianová) Wolfová

Ing. Monika (Lecianová) Wolfová

Reveal phone number

RK MoWio

Evropská 657/120, Praha 6, 16000

view all agency properties