Commercial plot for sale, 5037m2

Votice - Buchov

4 990 000 CZK, with agency fees, with legal services Get a low-rate mortgage
Make Enquiry
Multifunctional area with housing and business – right next to the E55, Votice

We offer for sale a large and fully fenced area with a total area of ​​3,345
m², which, thanks to its location, size and layout, represents an exceptional
opportunity for entrepreneurs and investors. The site combines the possibility
of immediate operation, accommodation of workers, warehouse facilities and
housing in one location. The offer includes two separate buildings – both
buildings listed as family houses – suitable for offices, workshops, company
headquarters, premises or accommodation facilities.

The area is also connected by two agricultural plots with an area of ​​1,692
m², thanks to which you gain a total of 5,037 m² of land in the sought-after BV
zone (rural housing) with a wide range of permitted uses. This zoning category
allows for both housing and non-conflict production, warehouses, company
facilities, equipment parking or accommodation services.

The location on the main road E55 ensures perfect visibility for any type of
business – more than 15,000 vehicles pass through here daily. Another advantage
is the direct access from the road and the proximity of the planned exit from
the D3 motorway near Voračice, which will further increase the accessibility
and value of the location in the future.

What the zoning plan allows (BV – rural housing)

family houses, rural estates

small and craft production without negative impacts

mechanical workshops, service activities

warehouses, parking of vehicles and equipment

service operations and service buildings

hobby agriculture and breeding

accommodation facilities and accommodation for employees

possibility of parking directly on the plot

Key advantages of the area

connection of housing, business and accommodation in one place

maximum visibility on the E55, possibility of legal advertising (e.g. vehicle
with a tarpaulin)

great variability thanks to the BV zone

building A ready for immediate use

prepared facilities and space for further modifications

strategic location on the E55, near the future D3 access road

electricity line through part of the plot – protection zone of the first degree

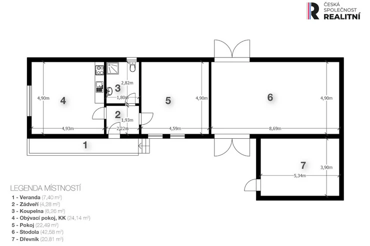
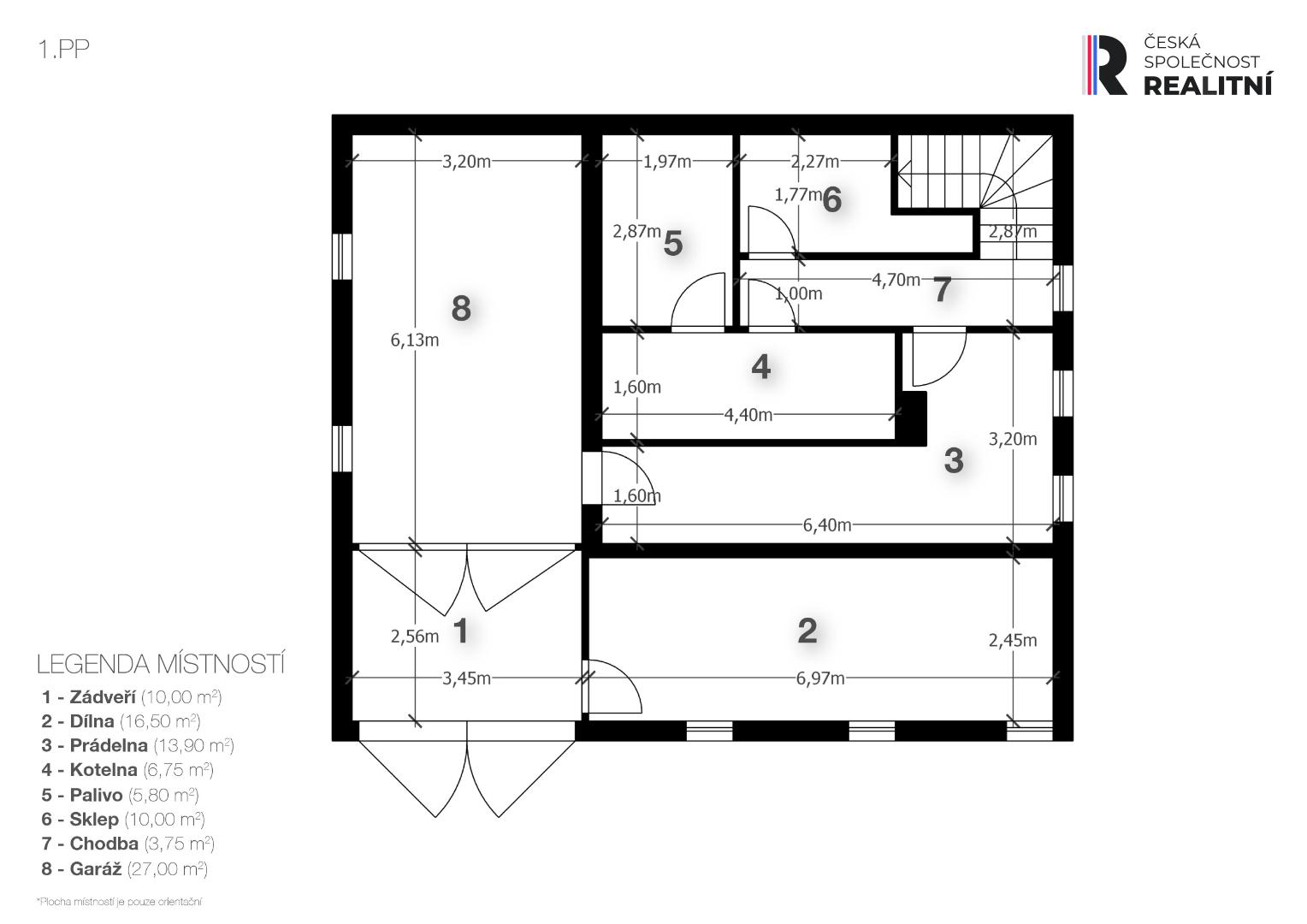
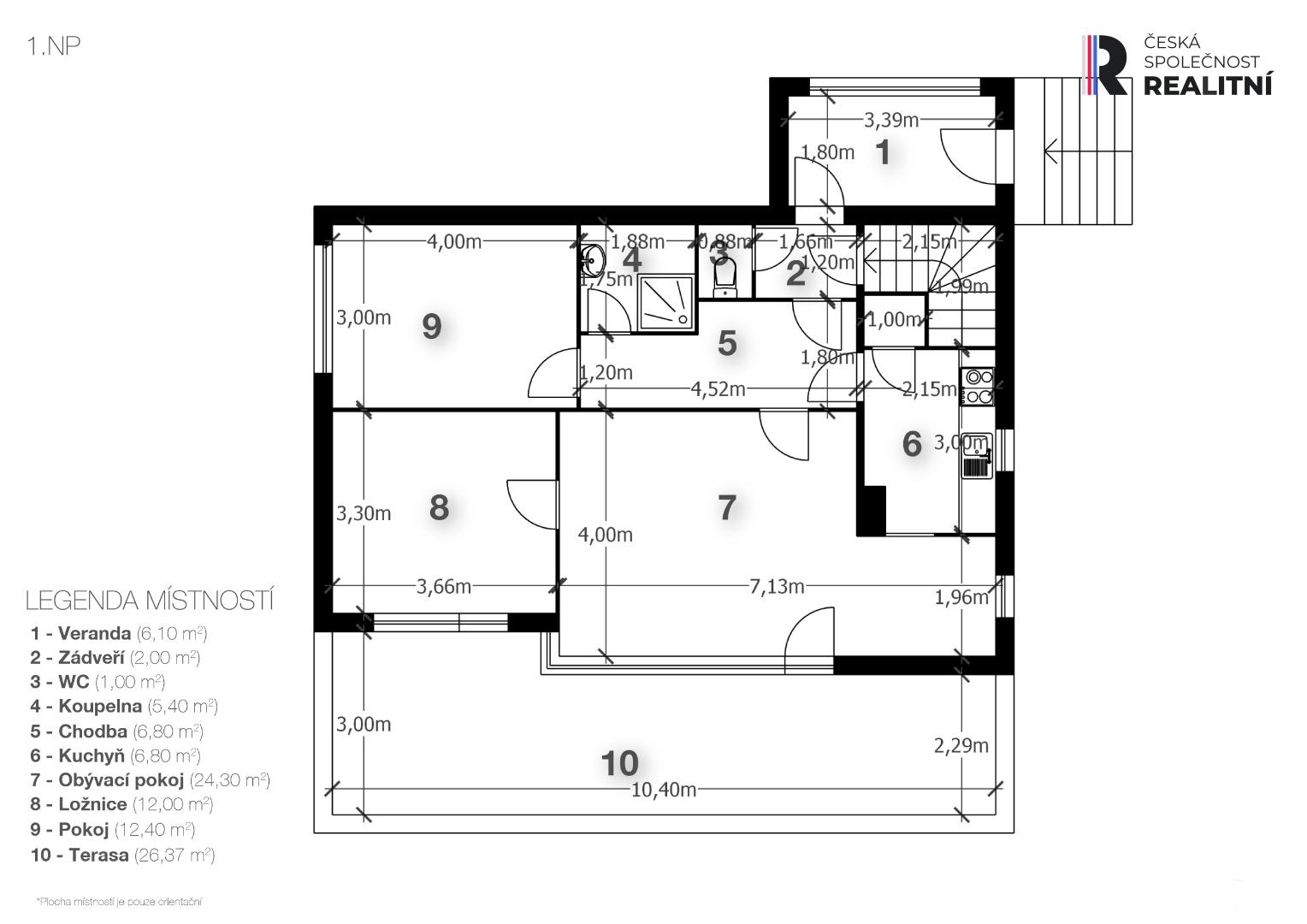
Description of buildings

Building A

-partially renovated, new plastic windows and insulation

-equipped with a modern ecological boiler H8–A with storage tank

-suitable for office, corporate facilities, accommodation

-adjoins a spacious barn - ideal for a warehouse or workshop

Building B

-intended for complete reconstruction

-suitable as a workshop, warehouse, garage or expansion of operations

-Technical parameters

-electricity 3×25 A

-water brought from a municipal well - free

-waste led to its own septic tank

-slightly sloping fenced plot

-direct exit from the E55 road

Who is the property ideal for?

For construction and service companies, e-shops, craftsmen, carriers,
entrepreneurs with a need for warehouses or technical facilities, or investors
looking for a building with the possibility of accommodating employees and
other development potential.

Energy efficiency: class G (PENB is being prepared).

If you are interested in further information or a link to a detailed web
presentation, please contact us.
Offer IDN90679
Last updated18.02.2026
Price4 990 000 CZK, with agency fees, with legal services
Agency feeWith agency fees
Legal servicesWith legal services
Size5 rooms and more
House typeWith floors
ConditionFor renovation
Construction typeMixed
OwnershipPersonal
Number of floors1
Underground floors1
Land area5037m2
GarageYes
ParkingYes
CellarYes
PoolNo
Water sourceLocal source
HeatingCentral solid fuels, Local solid fuels
Electricity400V
Waste managementSump
Barrier-free accessYes
Building typeDetached
TransportBus, Road
Road typeAsphalt
Energy RatingG - Exceptionally uneconomical
Send me an offer for a low-rate mortgage
Michal Šebor

Michal Šebor

Reveal phone number

Česká Společnost Realitní/Prodej a Správa Nemovitostí s.r.o.

Štefánikova 13/43, Praha 5, 15000

view all agency properties