Family house for sale, 337m2, 1069m2 of land

V Šáreckém údolí, Praha 6 - Dejvice

Price for negotiation Get a low-rate mortgage
Make Enquiry
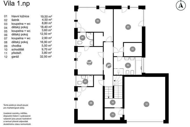
We are offering for sale a spacious 8-bedroom family home located in one of the most prestigious areas of Prague 6—in the picturesque setting of the Šárecké Valley.The layout of the house is designed with an emphasis on ample space and privacy for a large family. On the second floor (main entrance from the street) there is an entryway and a foyer, which flows seamlessly into a spacious living room with access to the terrace. The living area is naturally connected to the dining area, which in turn leads to a separate, generously sized kitchen.On the first floor, which is also accessible directly from the garage, there is a master bedroom with an en-suite bathroom, as well as three children’s rooms connected by shared bathrooms. The lowest floor, at garden level, offers a fully functional living unit consisting of a living room with access to the garden, three separate bedrooms, and a bathroom. This space provides an ideal guest area or the option for independent living.The house features high-quality materials and amenities designed to ensure comfortable living. The interior is dominated by hardwood floors, which lend the space a warm atmosphere, and aluminum double-pane windows, providing excellent thermal insulation. Air conditioning is installed on every floor, ensuring maximum comfort year-round.The house features a separate kitchen with a marble countertop, equipped with Whirlpool appliances. In the living area near the garden, there is also another practical space with a small kitchenette, suitable for guests or as a separate living area. The bathrooms are designed to a high standard and feature a bathtub, shower stalls, a toilet, and a bidet.The exterior features two terraces—one with access to the garden and another on the first floor connected to the living room. The garden is meticulously landscaped, planted with greenery, and equipped with an automatic irrigation system. It also includes a heated pool, which expands the opportunities for relaxation right on the property.A garage is available, as well as an outdoor parking space for an additional vehicle. The Šárecké Valley is one of the most sought-after residential areas in Prague thanks to its combination of nature, tranquility, and excellent access to the city center. The Divoká Šárka Nature Reserve is located in the immediate vicinity, offering a wide range of opportunities for sports and leisure activities—such as walking, cycling, or running.All amenities are accessible within a few minutes’ drive; nearby you’ll find schools such as the prestigious International School of Prague, kindergartens, restaurants, cafés, shops, and medical facilities. There are also excellent connections to the city center and Václav Havel Airport Prague. The location thus offers an ideal balance between peaceful living in nature and quick access to city life.
Last updated30.04.2026
Price for discussionYes
Size5 rooms and more
House typeWith floors
ConditionVery good condition
Construction typeMixed
OwnershipPersonal
FurnishedYes
Number of floors1
Usable area337m2
Land area1069m2
Garden area900m2
Move-in date01.04.2026
GarageYes
ParkingYes
CellarNo
BalconyNo
ElevatorNo
PoolYes
Energy RatingC - Economical
Send me an offer for a low-rate mortgage
Adéla Bukovská

Adéla Bukovská

Reveal phone number

LEXXUS NORTON

Na Poříčí 2090/2, Praha 1, 11000

view all agency properties