Villa for sale, 382m2, 8500m2 of land

Vestecká, Brandýs nad Labem-Stará Boleslav - Stará Boleslav

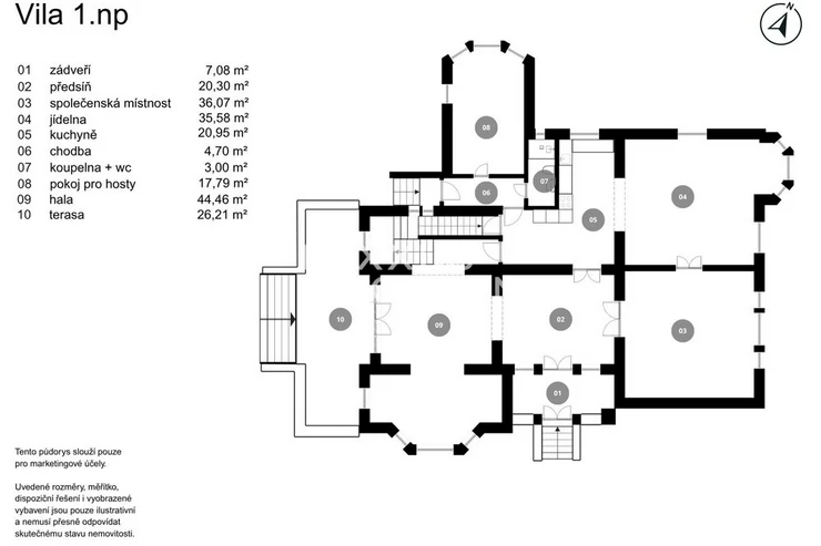
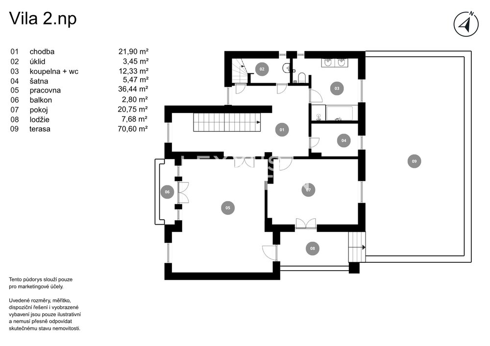
Villa Sanssouci is an exceptional residential estate that combines the nobility of the turn of the 19th and 20th centuries, absolute privacy, and generous space. The entire complex consists of the main villa and a separate secondary building. The structures are set within a carefully maintained park garden of approximately 8,500 sqm, creating an atmosphere of tranquility and timeless elegance. The main villa, with a usable area of 382 sqm and a residential attic of 100 sqm, was built in the neoclassical style and has preserved its harmonious proportions, symmetry, and valuable architectural details to this day. Between 2004 and 2006, it underwent a complete restoration renovation carried out with maximum respect for the original character of the building. Original wooden paneling, stucco, floors, and stone elements were restored, thanks to which the villa today offers an authentic historical expression combined with the comfort of modern living. On the ground floor of the house, there is a representative entrance hall, a kitchen, a dining room with a false fireplace, a living room with a fireplace and direct access to the terrace, as well as a gentlemen’s room with a built-in library and a separate room with its own bathroom and entrance from the garden. The upper floor serves as the private zone of the villa and includes two rooms with access to a terrace and a loggia, a dressing room, a large bathroom, and a laundry room. The attic forms an open living space with exposed roof trusses and a fully equipped technical room. The basement is dedicated to relaxation and the technical operation of the house, featuring a wellness zone, storage areas, and direct access to the garden. The main villa is oriented toward the expansive park garden, which forms a natural visual and compositional axis of the entire property. The thoughtfully designed landscaping includes ponds, a fountain, mature trees, ornamental shrubs, and historic English roses, creating a harmonious environment with the character of a private park. The garden functions as a self-contained ecosystem with exceptional tranquility and a high level of privacy. At the same time, it naturally extends the living spaces of the house and offers a generous sense of openness. The property also includes a separate secondary building with a built-up area of 171 sqm, which functionally and operationally complements the main villa. Thanks to its clear division into a one-bedroom apartment unit, a workshop, and a garage, it offers a wide range of uses—whether as comfortable accommodation for guests, independent living for family members, or practical service facilities. The house is complemented by modern technologies that ensure comfortable and efficient operation. The villa is equipped with a gas boiler, a fireplace with a heat exchanger controlled electronically, a central vacuum system, and complete technical facilities. The interior features custom-built furniture, such as a built-in library and a fully equipped kitchen. The basement is designed as a private wellness area with a counter-current swimming pool, an infrared sauna, a shower, a separate WC, air handling systems, and direct access to a wooden deck leading to the garden. The exterior is complemented by functional garden infrastructure, which utilizes a well approximately 40 meters deep and a central irrigation system by HUNTER, covering the entire plot. The garden, through a combination of water, trees, and vegetation, creates its own microclimate with very low operating costs. The villa is located in a quiet residential area of Brandys nad Labem–Stara Boleslav, in a locality with stable development and direct contact with nature. The extensive park garden creates a natural separation from the surroundings and ensures a high level of privacy, a representative character of the property, and uninterrupted views of greenery. The overall setting appears enclosed and refined, providing facilities that meet the demands of prestigious residential living as well as a representative corporate headquarters. The location combines a peaceful environment with very good transport accessibility. The center of Brandys nad Labem is reachable within a few minutes and offers full civic amenities, while Prague is approximately a 35-minute drive away. The location is ideal for companies seeking a representative headquarters outside the urban hustle, a residence for top management, or a property for corporate use where emphasis is placed on privacy, tranquility, and long-term value. 
Last updated02.04.2026
Price69 990 000 CZK
Size5 rooms and more
House typeWith floors
ConditionVery good condition
Construction typeBrick
OwnershipPersonal
FurnishedPartially
Number of floors1
Usable area382m2
Land area8500m2
Garden area8000m2
Move-in date01.03.2026
GarageYes
ParkingYes
CellarNo
BalconyNo
ElevatorNo
PoolYes
Energy RatingG - Exceptionally uneconomical
Send me an offer for a low-rate mortgage
Adéla Bukovská

Adéla Bukovská

Reveal phone number

LEXXUS NORTON

Na Poříčí 2090/2, Praha 1, 11000

view all agency properties