Family house for sale, 122m2, 325m2 of land

Karla Rachůnka, Praha 8 - Dolní Chabry

23 333 000 CZK, with agency fees Get a low-rate mortgage
Make Enquiry
Exklusivně nabízíme k prodeji moderní rodinný dům s promyšlenou dispozicí, v nadstandardním provedením a velmi nízkými provozními náklady. Dům byl kolaudován na jaře roku 2022 a je zařazen do energetické třídy PENB A.

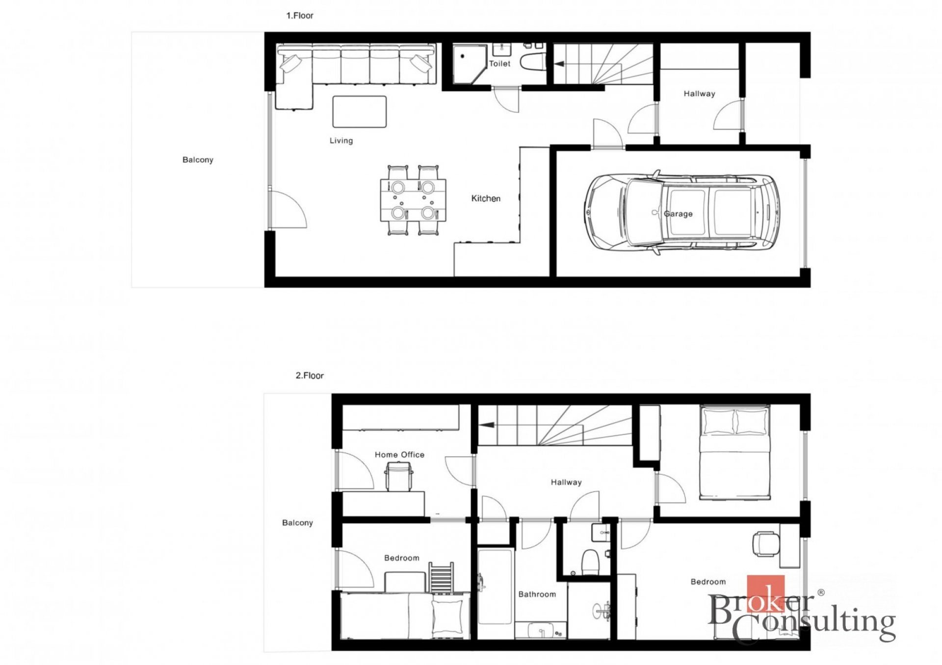
Dominantou domu je prostorný obývací pokoj s kuchyňským koutem a jídelní částí, který je díky velkoformátovým oknům krásně prosvětlený a má přímý vstup na krytou terasu. Terasa je zastřešena kvalitní hliníkovou pergolou s prosklením, umožňující komfortní využití po celý rok, a plynule navazuje na zahradu.
Zahrada byla realizována na klíč renomovanou zahradní architektkou, s důrazem na estetiku, funkčnost a soukromí. Celkový koncept venkovních prostor přirozeně rozšiřuje obytnou část domu.
Kuchyně je vybavena kvalitními vestavěnými spotřebiči a nabízí dostatek úložných prostor. Dům disponuje třemi samostatnými pokoji - ložnice, 2x dětské pokoje + pracovna.
Dům má dvě koupelny – v přízemí se nachází koupelna se sprchovým koutem, toaletou a umyvadlem, v patře pak koupelna se sprchovým koutem, vanou a umyvadlem. Toaleta je řešena samostatně. Koupelny jsou v moderním stylu s kvalitní sanitou, samozřejmostí jsou vestavěné skříně a praktické úložné prostory.
V celém domě je instalováno podlahové vytápění, které zajišťuje plynový kotel sloužící zároveň k ohřevu teplé vody. Součástí domu je rekuperace, provedena příprava na klimatizaci a přívod třífázové elektřiny (380 V), vhodný pro instalaci nabíjení elektromobilu. Použité materiály a technologie odpovídají vysokým nárokům na komfortní a úsporné bydlení. K domu náleží garáž a další dvě parkovací místa na vlastním pozemku.

Lokalita Praha 8 – Dolní Chabry nabízí kompletní občanskou vybavenost, základní i mateřskou školu v docházkové vzdálenosti do 5 minut, a zároveň velmi dobrou dopravní dostupnost jak MHD, tak automobilem.

Dům je ideální volbou pro klienty hledající moderní, kvalitní a energeticky úsporné bydlení v klidné části Prahy, bez nutnosti dalších investic.
Offer ID81144
Last updated24.03.2026
Price23 333 000 CZK, with agency fees
Price for discussionNo
Agency feeWith agency fees
Heating costs4 500 CZK
Size5 rooms and more
House typeWith floors
ConditionNew construction
Construction typeBrick
FurnishedPartially
Number of floors2
Usable area122m2
Land area325m2
Garden area245m2
Year of acceptance2022
Move-in date01.07.2026
GarageYes
ParkingYes
CellarNo
BalconyYes
TerraceYes
LoggiaNo
PoolNo
Water sourceRemote source
GasEnergy company
Waste managementPublic sewage
Year of construction2022
Building typeTerraced
Building surroundingsResidential
Number of parking spaces2
Garrets (attic spaces)No
Road typeAsphalt
Low-energyNo
Energy RatingA - Exceptionally economical
Energy Performance Certificatedownload
Send me an offer for a low-rate mortgage
Broker Consulting, a.s.

Broker Consulting, a.s.

Reveal phone number

REALITYSPOLU

Radlická 751/113e, Praha 5, 15800

view all agency properties