Family house for sale, 125m2, 185m2 of land

Terasy IV, Unhošť

We are offering for sale a 3-bedroom family home located in the quiet residential neighborhood of Terasy in Unhošť. Built in 2010, the home features a practical layout, ample storage space, and a seamless connection between the living area and the garden.

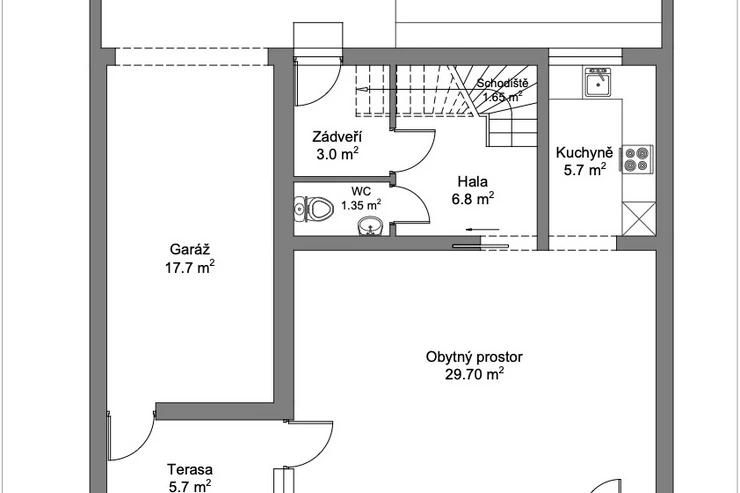
The home has two levels with a total area of 152 sqm (approximately 1,636 sq ft), including 125 sqm (approx. 1,345 sq ft) of usable living space. The main floor includes an entry foyer, hallway, separate half bath, and an open-concept living room with kitchen and dining area, with direct access to the terrace and garden. Upstairs, there are three bedrooms, two full bathrooms, a utility room, and a hallway. The primary bedroom includes a walk-through closet. Built-in wardrobes are installed in each bedroom and in the hallway, and the bathrooms feature built-in cabinetry.

The property includes a garage. The total lot size is 185 sqm (approx. 1,991 sq ft), with a 71 sqm (approx. 764 sq ft) garden. The home is connected to all utilities.

Unhošť offers full local amenities, including grocery stores (Penny, Lidl, Coop), post office, restaurants, cafés, kindergarten, elementary school, music school, sports facilities, and more. Nearby Zličín provides access to IKEA, Globus, Tesco, and the Metropole shopping center located directly at the metro station.

Transportation is very convenient — the U Křížku bus stop (line 386 to Zličín metro) is about a 5-minute walk, with a travel time of approximately 28 minutes. By car, Zličín is reachable in about 10 minutes via the D6 highway, with direct access to the Prague Ring Road. The airport is about 15 minutes away, and Kladno is 9 km (approx. 5.6 miles).

The surrounding area offers plenty of green space — a pond approximately 100 meters from the home, a forest within a 5-minute walk, and great opportunities for outdoor activities such as cycling and walking. An aquapark is available in nearby Kladno, and a golf course is located in Botanica.


Exterior photos were taken during a different season.

Price negotiable. In the event of multiple interested parties, the seller reserves the right to select the most favorable offer.
Last updated18.03.2026
Price13 900 000 CZK
Heating costs2 200 CZK
Size4 rooms
House typeWith floors
ConditionVery good condition
Construction typeBrick
FurnishedPartially
Usable area125m2
Floor area152m2
Land area185m2
Garden area71m2
Move-in date01.04.2026
Viewing available from2026-03-21 12:00:00
GarageYes
ParkingYes
CellarNo
BalconyNo
TerraceYes
LoggiaYes
ElevatorNo
PoolNo
Water sourceRemote source
HeatingCentral gas
GasEnergy company
TelecomInternet
Year of construction2010
Building typeTerraced
Building surroundingsResidential
Number of garages1
Garrets (attic spaces)No
TransportPublic transport
Road typeAsphalt
Low-energyNo
Energy RatingD - Less economical
Energy Performance Certificatedownload
Send me an offer for a low-rate mortgage
Karel Rychna

Karel Rychna

Reveal phone number
TIP: This is a private offer by a user of Expats.cz. You will be dealing directly with the owner. Please make sure to first see the property in question and remember to never send any payments in advance. If you feel that this advert is suspicious, please let us know here.