Family house for sale, 183m2, 403m2 of land

U Čihadel, Praha 4 - Točná

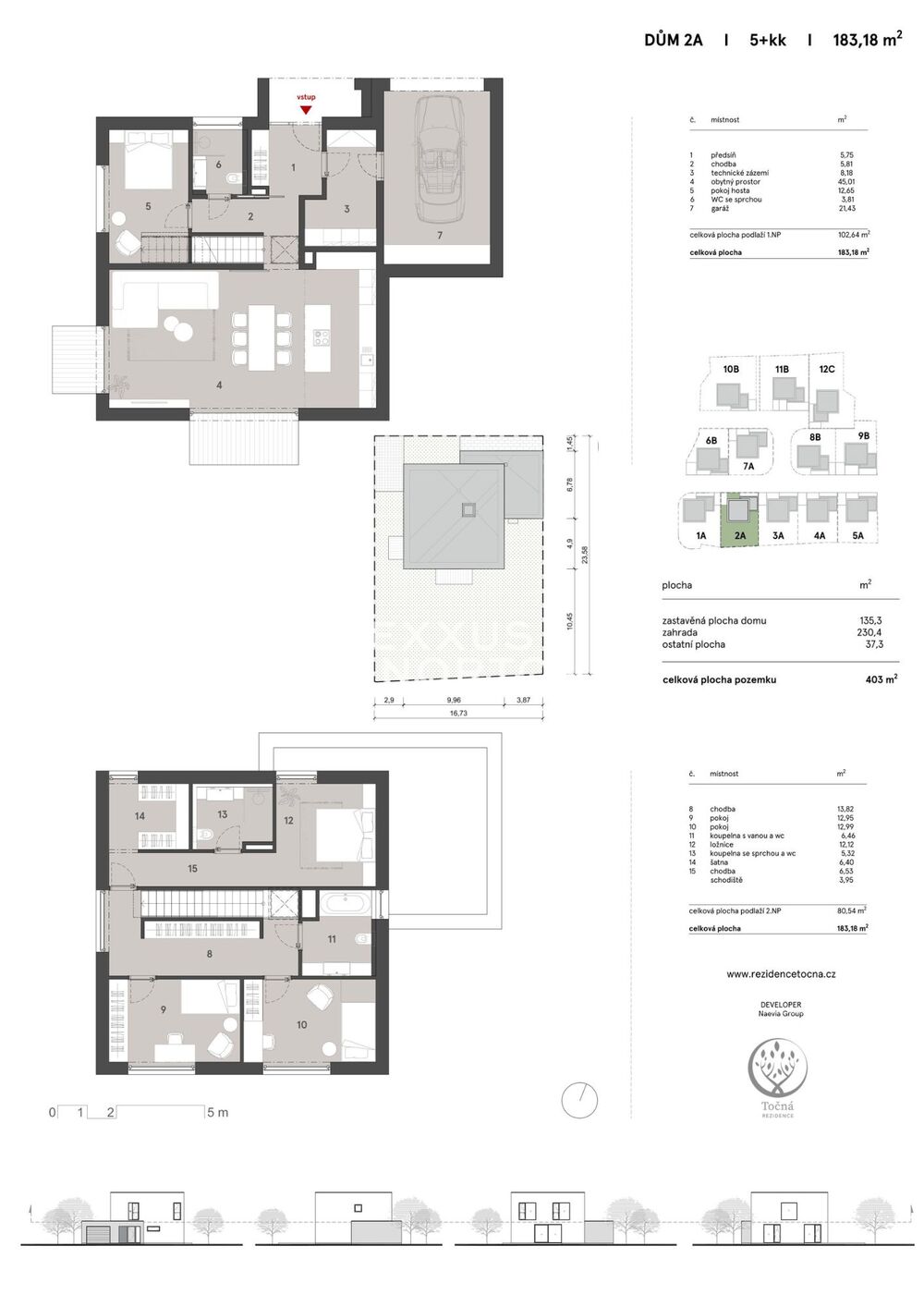
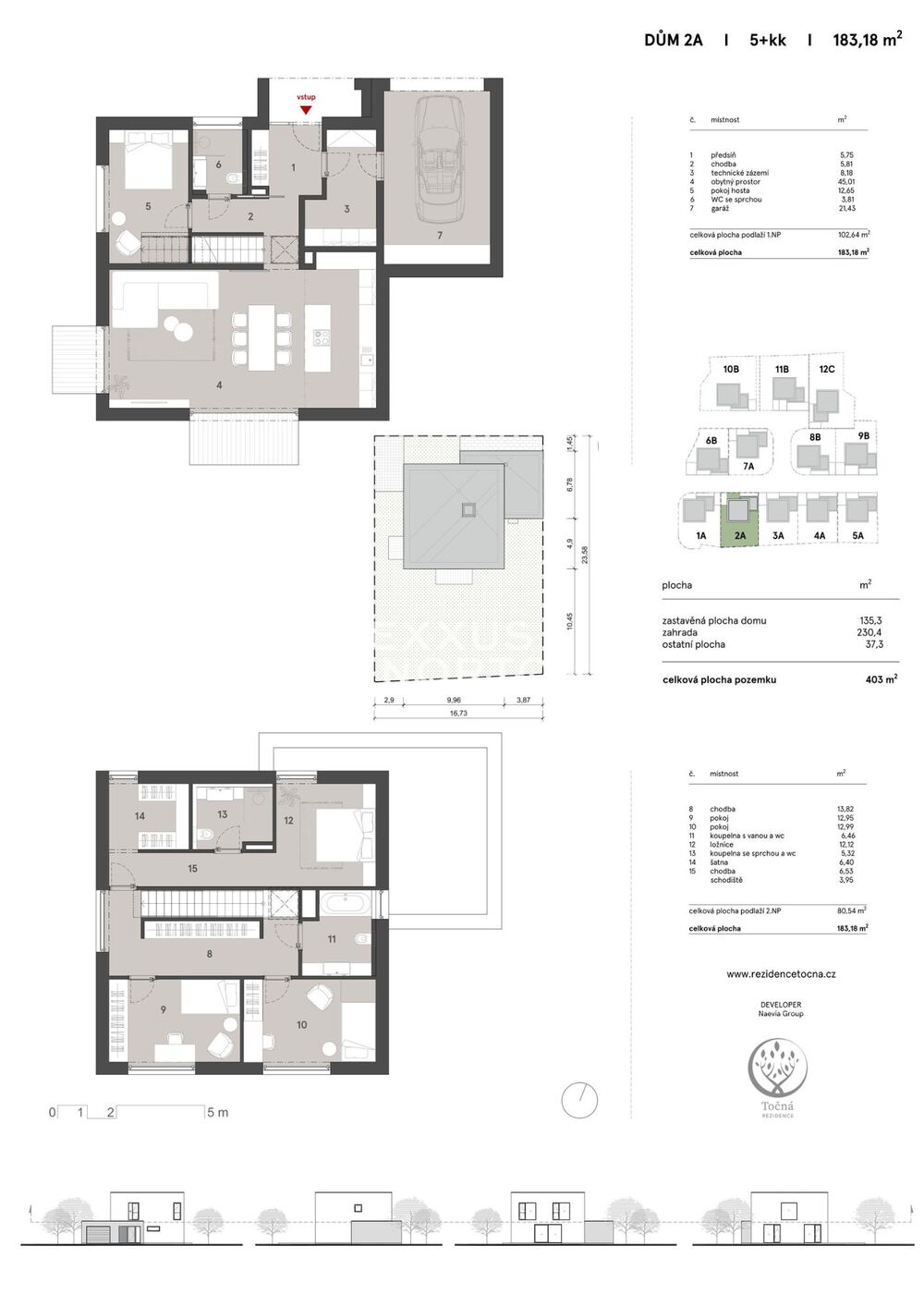
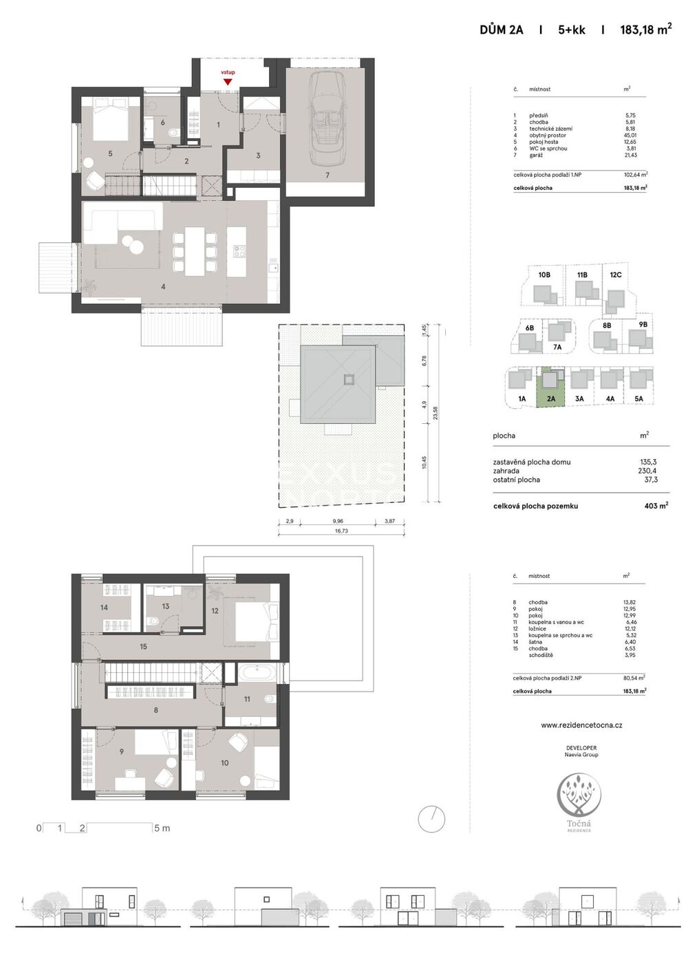
We offer a modern two-storey family home in a newly developed project in the prestigious location of Tocna. The complex features only twelve family houses set in a quiet area surrounded by greenery. The Tocna Residence combines privacy, high-quality architecture, and nature into a harmonious whole, creating an ideal environment for comfortable family living.The total usable floor area of the 4-bedroom house is 183 sqm, thoughtfully distributed across two above-ground floors. At the entrance, there is a spacious hallway with a utility room connected to the garage, followed by an open-plan living room with a dining area and kitchen with a total size of 45 sqm. The living area features large-format aluminum windows facing two directions, seamlessly connecting the interior with the terraces and the south-facing garden. This floor also includes a separate room and a bathroom, which can be used as a study or guest room.The second floor offers a master bedroom with its own walk-in closet and en-suite bathroom, two additional bedrooms, a spacious family bathroom, and ample storage space.Each house is equipped with an air-to-water heat pump, underfloor heating, and a heat recovery ventilation system, ensuring high comfort and low operating costs. Standard features include aluminum windows with triple glazing, wooden floors, high-quality bathroom fittings, external blinds, preparation for photovoltaic panels, and an electric vehicle charging socket in the garage. The property will meet Energy Class A standards.Tocna offers an exceptionally peaceful and green environment with quick access to Prague’s city center, making it an ideal choice for families seeking safe, high-quality living away from the hustle and bustle, without sacrificing big-city convenience. The project also contributes to the development of local infrastructure. A new community center will be built nearby for resident gatherings, social events, and family celebrations, complemented by a self-service grocery store for everyday needs. Close by is one of the most prestigious international schools, Prague British International School.
Last updated14.04.2026
Price26 500 000 CZK
Size5 rooms and more
House typeWith floors
ConditionUnder construction
Construction typeMixed
OwnershipPersonal
FurnishedNo
Number of floors2
Usable area183m2
Land area403m2
Garden area230m2
Move-in date14.04.2026
GarageYes
ParkingYes
CellarNo
BalconyNo
ElevatorNo
PoolNo
Energy RatingA - Exceptionally economical
Send me an offer for a low-rate mortgage
Adéla Bukovská

Adéla Bukovská

Reveal phone number

LEXXUS NORTON

Na Poříčí 2090/2, Praha 1, 11000

view all agency properties