Family house for sale, 183m2, 449m2 of land

U Čihadel, Praha 4 - Točná

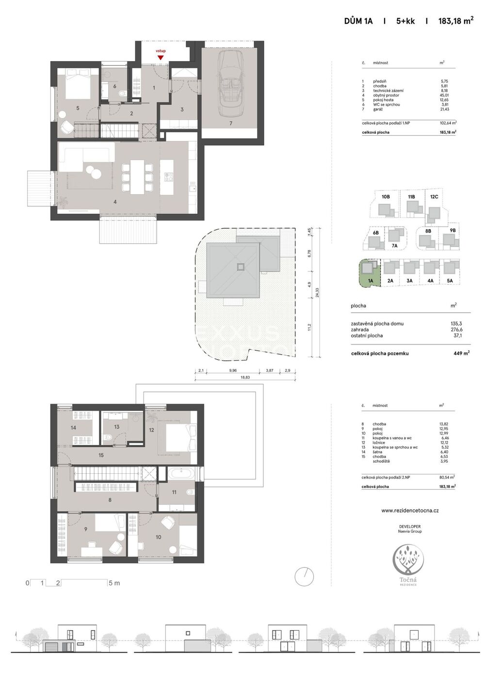
We offer a modern two-storey family home situated within a newly developed residential project in the attractive area of Prague 4 – Tocna. The development consists of just twelve family houses set in a peaceful environment surrounded by greenery. The Tocna Residence combines privacy, high-quality architectural design, and proximity to nature in a harmonious whole, creating ideal conditions for comfortable family living.The total usable floor area of the 4-bedroom layout is 183 sqm and is efficiently arranged across two above-ground floors. Upon entering, there is a spacious hallway with a utility room and direct access to the garage, followed by an open-plan living area with a kitchen and dining space measuring 45 sqm. Large-format aluminum windows facing two directions naturally connect the interior with the terraces and the south-facing garden. This floor also includes a separate room and bathroom, suitable as a study or guest room.Upstairs, you will find the master bedroom with its own walk-in closet and en-suite bathroom, two additional bedrooms, a spacious family bathroom, and ample storage space.Each house is equipped with an air-to-water heat pump, underfloor heating, and a heat recovery ventilation system, ensuring high comfort and low operating costs. Standard features include aluminum triple-glazed windows, wooden floors, quality bathroom fittings, external blinds, preparation for photovoltaic panels, and an electric vehicle charging socket in the garage. The property meets Energy Class A standards.Tocna offers an exceptionally quiet and green setting with fast access to the city center and is an ideal choice for families seeking safe, high-quality living away from the bustle of the metropolis. The project also supports the development of local infrastructure. A community center for residents’ gatherings, social events, and family celebrations is planned nearby, along with a self-service grocery store. The prestigious Prague British International School is also close by.
Last updated17.02.2026
Price27 557 222 CZK
Size5 rooms and more
House typeWith floors
ConditionUnder construction
Construction typeMixed
OwnershipPersonal
FurnishedNo
Number of floors2
Usable area183m2
Land area449m2
Garden area276m2
Move-in date17.02.2026
GarageYes
ParkingYes
CellarNo
BalconyNo
ElevatorNo
PoolNo
Energy RatingA - Exceptionally economical
Send me an offer for a low-rate mortgage
Adéla Bukovská

Adéla Bukovská

Reveal phone number

LEXXUS NORTON

Na Poříčí 2090/2, Praha 1, 11000

view all agency properties