Family house for sale, 100m2, 1709m2 of land

Stará Zvonice, Zdice

9 980 000 CZK, with agency fees, with legal services Get a low-rate mortgage
Make Enquiry
Family House with Garden and Scenic Views – Stará Zvonice, Zdice

Are you looking for a place where history, peace, space, and beautiful greenery come together?
Then in Stará Zvonice Street you will find a house with soul – a home full of potential, whether for renovation, extension, or a completely new beginning tailored to your vision.

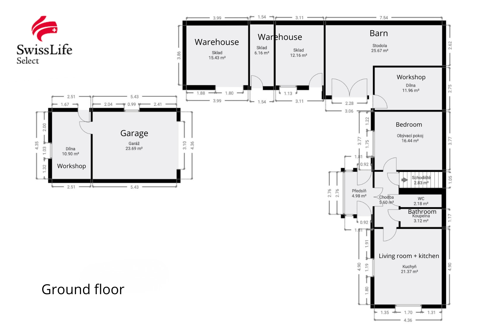
On a plot with a total area of 1,709 m² (parcels 1323 and 1324) stands the original family house with a 3+kk layout, partially basemented.
The ground floor includes a living room with kitchen, bedroom, bathroom, toilet with storage space, and an entrance hall.
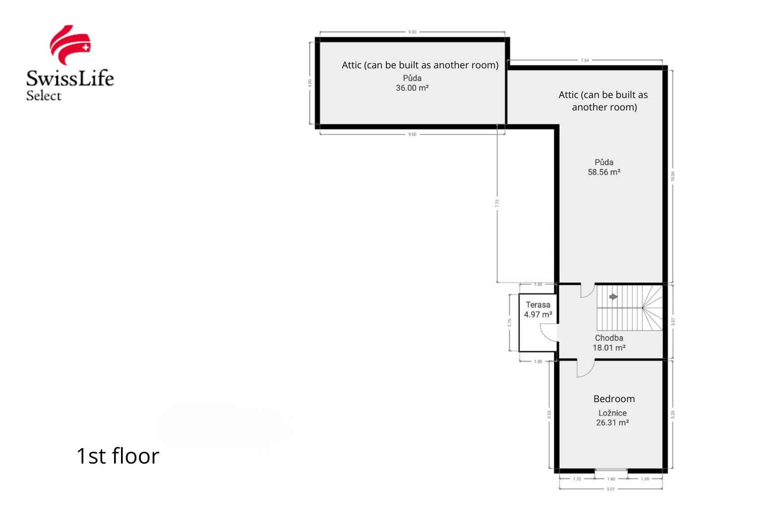
A staircase leads to a smaller open area – perfect for a piano, reading nook, or home library – and further into a second bedroom.
From this level, you can also access a large attic, which easily allows the creation of one or two additional rooms.

A small part of the house is basemented (the original coal storage).
From the outside, there is a separate entrance to a workshop, which can be converted into additional living space if connected to the main house.
Attached to the house are a shed (second workshop), storage space, and a former stable – ideal for storage, reconstruction, or as potential extension of the living area.

The property also includes a standalone garage with an adjoining storage/workshop (approx. 43 m² built-up area), offering stunning views of the greenery and the Beroun region landscape.
In the garden, you’ll find a functioning well used for watering, fruit trees, and in the lower section former beehives that reflect a family tradition of honey production.
The garden is terraced, spacious, and full of privacy – perfect for relaxation or gardening.

The house has a shoemaking history – the family once operated a small footwear workshop here.
Included in the sale is also a prepared modern architectural project (for reconstruction or commercial use) that can still be carried out.

Stará Zvonice is one of the quietest areas of Zdice, yet only a few minutes’ walk from the town centre.
Nearby you will find an 18th-century Baroque church, a train station, and bus connections.
Beroun is just 10 minutes away by car, and Prague – Zličín is reachable in 25 minutes.
The area offers full civic amenities – schools, kindergartens, shops, medical care, and the large Zdice outdoor swimming complex.
Popular attractions are also close by – Koněprusy Caves (15 min), Karlštejn Castle (25 min), and the Knihov forest park (10 minutes on foot).

The house qualifies for the “Oprav dům po babičce” grant programme (State Environmental Fund), allowing you to obtain a government subsidy for renovation of up to CZK 1.3 million, along with a favourable loan for insulation, new windows, roofing, or heating upgrades.
For the new owners, this represents a significant reduction in renovation costs.

This house is not about numbers – it is about space, atmosphere, and possibilities. It combines tranquillity, history, and potential that is rarely found in the Beroun region today.

It truly needs to be seen in person – neither photos nor text can capture the views, the charm of the garden, or the unique energy of this place.
Offer ID24723
Last updated19.01.2026
Price for discussionYes
Agency feeWith agency fees
Legal servicesWith legal services
Size3 rooms
House typeWith floors
ConditionFor renovation
Construction typeBrick
FurnishedNo
Usable area100m2
Land area1709m2
GarageYes
ParkingYes
CellarYes
TerraceYes
ElevatorNo
PoolNo
Water sourceLocal source
HeatingLocal solid fuels, Local gas
GasEnergy company
Electricity400V, 230V, 120V
Waste managementPublic sewage
Barrier-free accessNo
Building typeDetached
Building surroundingsResidential
TransportBus, Public transport, Road, Highway, Train
Road typeAsphalt
Low-energyNo
Energy RatingG - Exceptionally uneconomical
Send me an offer for a low-rate mortgage
Zuzana Michalová

Zuzana Michalová

Reveal phone number

Swiss Life Select a.s.

Pobřežní 620/3, Praha 8, 18600

view all agency properties