Restaurant for sale, 145m2

Pitterova, Praha 3 - Žižkov

21 700 000 CZK, with agency fees, with legal services Get a low-rate mortgage
Make Enquiry
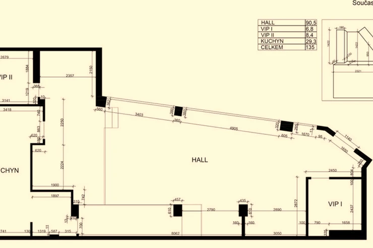
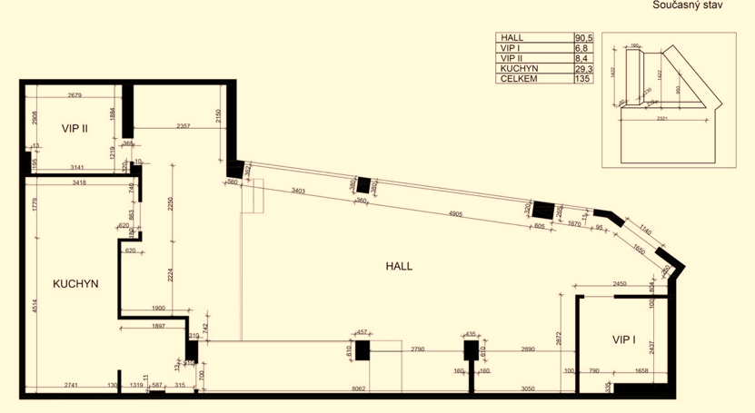
We offer for sale a commercial space with a total area of 142 m, located on the ground floor of the luxury residential complex Central Park Prague in Žižkov. The property underwent a complete renovation in 2020. The usable area of 135 m is situated at the main entrance of the residence, close to the reception desk.

Currently, the unit operates as a well-established restaurant. It can also be used as an office, medical clinic, or retail space.

Included with the property are an underground parking space and a 7 m cellar (registered separately on the title deed).

The asking price includes all built-in equipment (HVAC system, heating, fireplaces, projector, etc.). It is possible to purchase either the property itself or the company that owns it. The property is subject to a mortgage loan that can be repaid from the purchase price or transferred to the new owner. The interest rate is 6.8% p.a. for 14 years.

The space is currently leased for a 5-year term with a solid return. Our company is the official tenant; the restaurant operator is a subtenant. We are able to guarantee the current rental yield to the buyer for a period of 3 to 5 years. Property management can also be arranged during this guaranteed period we would handle all administration and ensure rent payments are made, covering any missed payments ourselves if necessary.

The subtenant currently pays rent quarterly in advance. They have invested approximately CZK 1.3 million into custom-made furniture and additional equipment, clearly intending to stay long-term. The subtenant is a well-known athlete and uses the restaurant as a meeting space for business partners. The restaurant is not their primary source of income; they own several companies, including a construction firm in Germany.

The Central Park Prague project was completed in 2009 and offers a maintained, fenced residential complex with a private park of 15,000 m featuring a multi-purpose sports field, childrens playground, creek, and the restaurant in question. There is 24/7 reception, security, and camera surveillance. Entry is secured by access chips.

Amenities in the area include: a kindergarten, restaurants, post office, clinic with pharmacy, fitness center with sauna, and Parukářka park.
Offer IDID:SaleCPRestaurant
Last updated21.04.2026
Price21 700 000 CZK, with agency fees, with legal services
Price for discussionNo
Agency feeWith agency fees
Legal servicesWith legal services
House typeWith floors
ConditionNew construction
Construction typeFrame
FurnishedYes
Usable area145m2
Land area142m2
GarageYes
ParkingYes
CellarYes
BalconyNo
TerraceNo
LoggiaNo
ElevatorYes
PoolNo
Electricity230V
TelecomOther, Cable, Cable TV, Satellite, Internet, Telephone
Barrier-free accessNo
Building surroundingsResidential
Energy RatingC - Economical
DecreeNo. 264/2020 Coll.
Send me an offer for a low-rate mortgage
Bc. Igor  Chotinskij

Bc. Igor Chotinskij

Reveal phone number