Warehouse for sale, 37m2

Pod Drinopolem, Praha 6 - Břevnov

Non-residential unit with a studio layout is part of the Pod Drinopolem residential project, which is being created by a complete reconstruction of an apartment building in one of the quietest parts of Prague 6. The location in the middle of a residential area offers a combination of greenery, privacy, and excellent accessibility to the center. The building includes a private sauna and a gym.

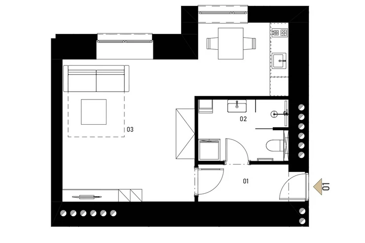
The commercial unit with a floor area of 37 m² is situated on the 1st basement floor and includes a room with preparation for a kitchen, a bathroom with a shower and a toilet, and an entrance hall with plenty of space for built-in wardrobes. The unit will be finished in a fit-out design - including a finished bathroom, floors, doors, and complete wiring.

The building is undergoing a complete renovation, which includes a new elevator, entrance portals with security doors, and stylish common areas with ceramic tiles and wooden elements. Residents will have access to a wellness area with a sauna and a gym, a bicycle storage room, a laundry room, and a landscaped courtyard with seating – perfect for a little rest and relaxation.

The residence is located on Pod Drinopolem, a quiet street surrounded by trees and residential buildings. All civic amenities, including shops, cafes, schools and public transport stops, are within walking distance. The location offers a relaxing environment with quick connections to the city center and the airport.
Offer IDDRI01
Last updated10.02.2026
Price4 057 000 CZK
Price for discussionNo
House typeWith floors
ConditionRenovated
Construction typeBrick
OwnershipPersonal
FurnishedNo
Floor-1
Number of floors7
Usable area37m2
Floor area37m2
Non-residential premises area37m2
GarageNo
ParkingNo
CellarNo
BalconyNo
TerraceNo
LoggiaNo
ElevatorYes
Year of reconstruction2026
Garrets (attic spaces)No
TransportBus, Public transport, Road, Highway, Train
Low-energyNo
Energy RatingG - Exceptionally uneconomical
DecreeNo. 78/2013 Coll.
Send me an offer for a low-rate mortgage
Simon Lukavský

Simon Lukavský

Reveal phone number

PSN, s. r. o.

Seifertova 823/9, Praha 3, 13000

view all agency properties