Apartment for sale, 2+kk - 1 bedroom, 60m2

Boženy Vikové-Kunětické, Pardubice - Zelené Předměstí

6 350 000 CZK, with agency fees Get a low-rate mortgage
Make Enquiry
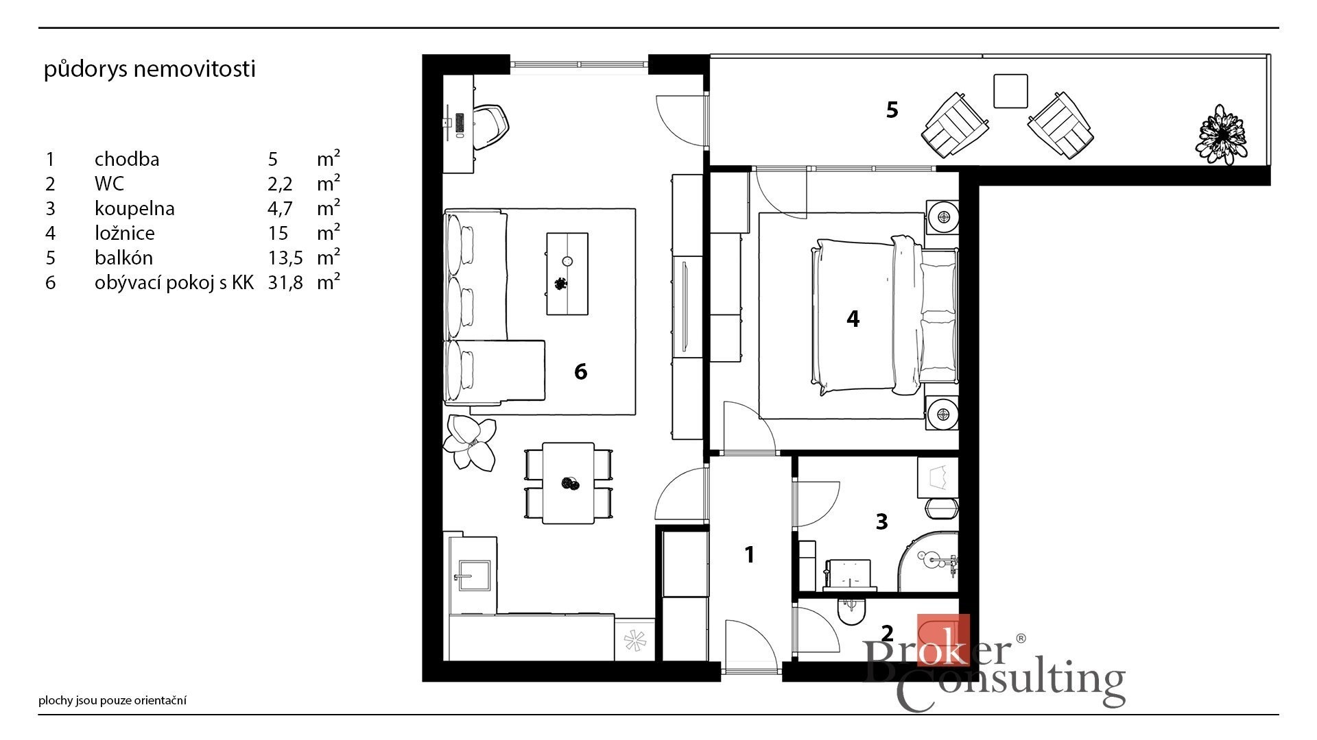
Nabízíme k prodeji nadstandardně řešený a světlý byt o dispozici 2+kk s užitnou plochou 60,5 m², situovaný v atraktivní a vyhledávané lokalitě Pardubic – ulice Na Spravedlnosti.

Byt zaujme na první pohled svým moderním designem, vzdušností a důrazem na detail. Dominantou je prostorný obývací pokoj propojený s kuchyní vyrobenou na míru, která nabízí řadu chytrých a praktických prvků jako filtrace vody, rozkládací stůl, designové LED s možností regulace intenzity či elegantní držáky na víno. Na kuchyň navazuje jednotný nábytek v předsíni, což podtrhuje čistý a nadčasový styl interiéru.

Celý byt je krásně prosvětlený přirozeným světlem a doplněný moderním osvětlením s možností ovládání přes mobilní telefon i dálkové ovladače. Samozřejmostí jsou oddělené světelné okruhy pro maximální komfort užívání. K bytu náleží lodžie pro příjemné posezení.

Velkým benefitem je klimatizace v obou hlavních místnostech s možností ovládání na dálku, díky které si nastavíte ideální teplotu ještě před příchodem domů. Byt je dále vybaven novými dálkově odečitatelnými měřáky energií.

K bytu je možné dokoupit zastřešené parkovací stání za cenu 400.000 Kč.

Lokalita nabízí kompletní občanskou vybavenost. V docházkové vzdálenosti naleznete školy, školky, obchody, restaurace i zdravotnická zařízení. Výborná je také dopravní dostupnost do centra města. Tento byt představuje ideální kombinaci moderního bydlení, komfortu a skvělé lokality.

Pro více informací nebo domluvení prohlídky mě neváhejte kontaktovat.
Offer ID84265
Last updated21.04.2026
Price6 350 000 CZK, with agency fees
Price for discussionNo
Agency feeWith agency fees
Heating costs3 685 CZK
ConditionNew construction
Construction typeBrick
OwnershipPersonal
Floor1
Number of floors6
Usable area60m2
Move-in date31.05.2026
GarageNo
ParkingNo
CellarNo
BalconyNo
TerraceNo
LoggiaNo
PoolNo
Building typePart of block
Garrets (attic spaces)No
Low-energyNo
Energy RatingB - Very economical
Energy Performance Certificatedownload
Send me an offer for a low-rate mortgage
Broker Consulting, a.s.

Broker Consulting, a.s.

Reveal phone number

REALITYSPOLU

Radlická 751/113e, Praha 5, 15800

view all agency properties