Apartment for sale, 2+kk - 1 bedroom, 62m2

Jankovcova, Praha 7 - Holešovice

Exclusively offer for sale of a modern 1-bedroom apartment (2+kk) with a floor area of 53.9 sqm, located in the prestigious residential project Prague Marina in the popular area of Prague 7 – Holešovice, Jankovcova Street.

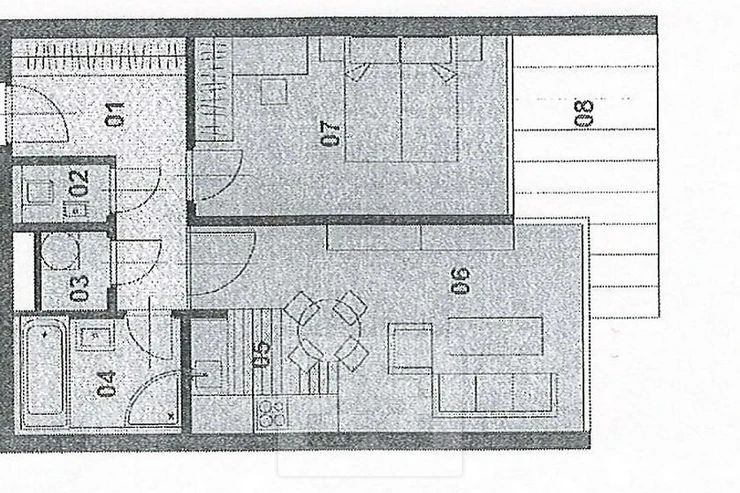
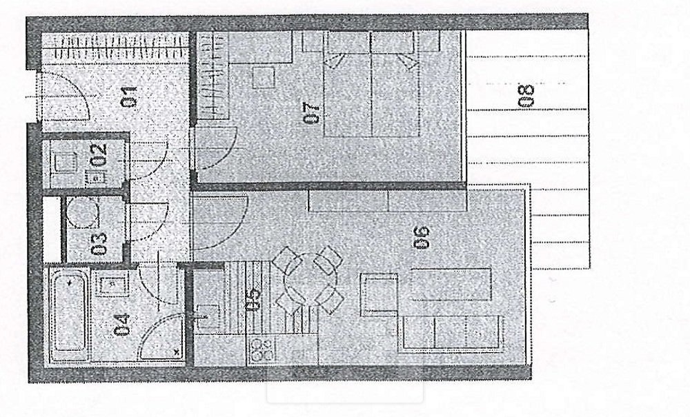
The apartment consists of a bright living room with a kitchenette, a separate bedroom, a bathroom, a separate toilet, a utility room, and an entrance hall. The living area is extended by a balcony of 7.6 sqm, accessible from both rooms, providing a pleasant space for relaxation.

The sale also includes a storage unit of 3.4 sqm and a parking space located on the 3rd underground level, ensuring maximum comfort.

Prague Marina offers modern architecture, high-quality finishes, and a pleasant riverside environment close to the Vltava River. The location provides full civic amenities including restaurants, cafés, shops, sports facilities, and a popular riverside cycling path. Excellent access to the city center is a given.

Layout and areas:
• Apartment: 53.9 sqm
• Balcony: 7.6 sqm
• Storage unit: 3.4 sqm
• Parking space: 3rd underground level

Key features:
• Prestigious residential project
• Balcony accessible from both rooms
• Parking space in the building
• Storage unit
• Prime riverside location
• Full amenities in the vicinity
• Excellent transport accessibility

The apartment is ideal both for private living and as an investment opportunity.
Offer IDN09034
Last updated30.03.2026
Price11 900 000 CZK
Price for discussionNo
ConditionVery good condition
Construction typeFrame
OwnershipPersonal
FurnishedPartially
Floor2
Number of floors8
Underground floors3
Usable area62m2
Balcony area8m2
Cellar area3m2
GarageNo
ParkingYes
CellarYes
BalconyYes
TerraceNo
LoggiaNo
ElevatorYes
PoolNo
Barrier-free accessYes
Number of parking spaces1
Garrets (attic spaces)No
Low-energyNo
Energy RatingC - Economical
DecreeNo. 78/2013 Coll.
Energy Performance Certificatedownload
Send me an offer for a low-rate mortgage
Bc. Robert Poppl

Bc. Robert Poppl

Reveal phone number

Bohemian Estates

V háji 1092/15, Praha 7, 17000

view all agency properties