Apartment for sale, 3+kk - 2 bedrooms, 106m2

Kmochova, Praha 5 - Smíchov

This bright 3+kt apartment is located on the 4th floor of a corner apartment building from 1919. This historic building is equipped with an elevator with access to the mezzanine floor and underwent a complete renovation between 2004 and 2008, including all wiring, the facade, the roof, and a complete replacement of the windows.

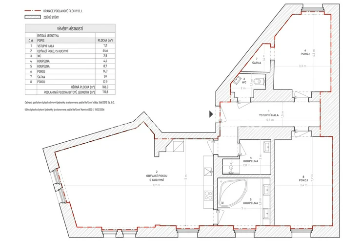
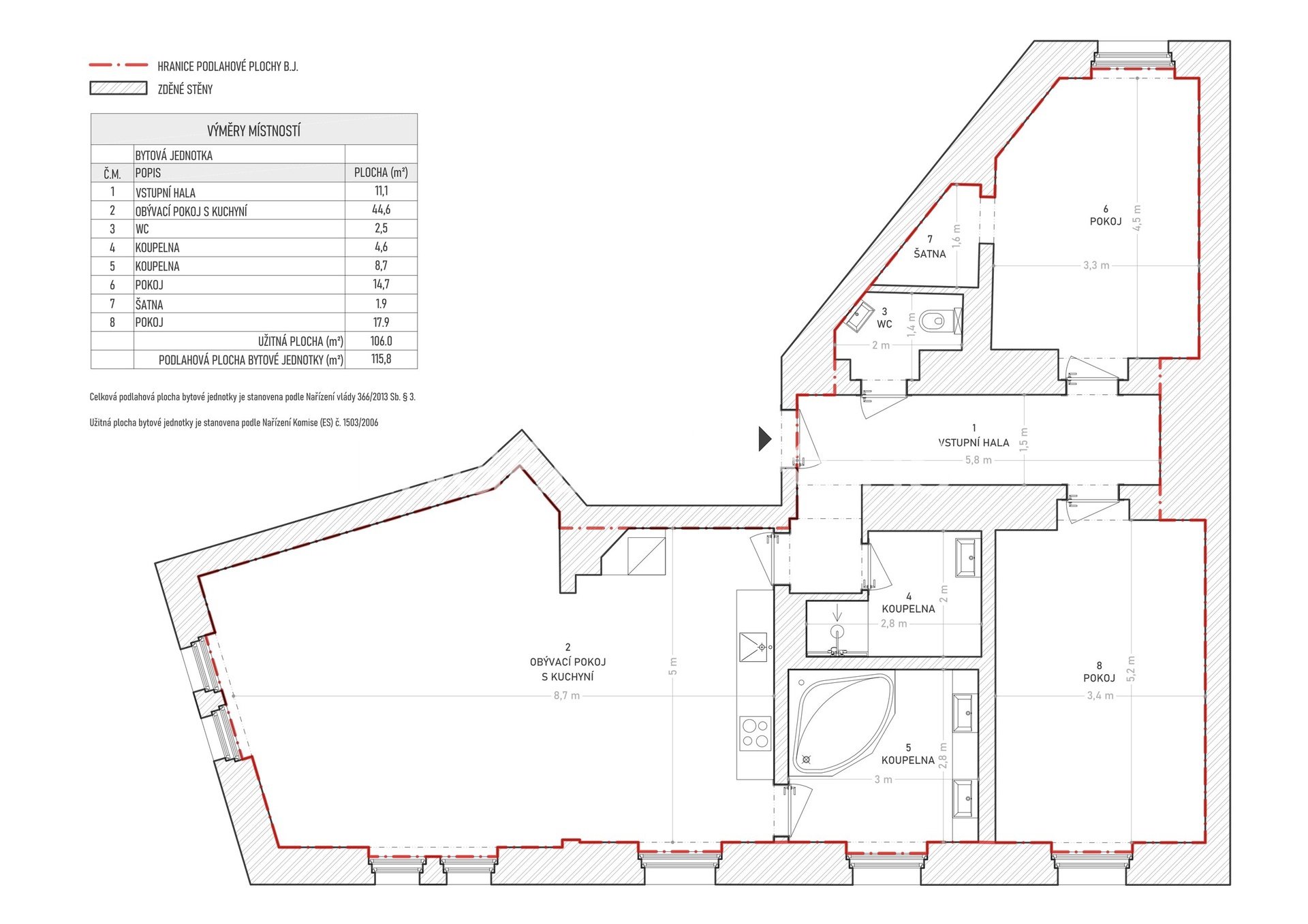
The apartment, with a generous usable area of 106 m² (116 m² of floor space), is currently designed as a 3+kt. Thanks to its spaciousness, it offers the possibility of layout modifications and the creation of comfortable family living with several bedrooms.

The dominant feature of the apartment is a spacious living room with a kitchenette measuring 45 m². Large windows and a south and west orientation ensure exceptional interior lighting and a pleasant atmosphere throughout the day. The layout also includes an entrance hall, two separate bedrooms – one facing a quiet courtyard with its own dressing room and the other overlooking the street – two bathrooms, and a separate toilet with a sink.

The apartment standards include high-quality wooden casement windows with insulating triple glazing, laminate flooring, and ceramic tiles. Heating is provided by an individual gas boiler, with additional underfloor heating in both bathrooms.

A popular residential location in the city center within walking distance of Sacré Coeur Park, Kinský Garden, and Malá Strana. The building's location offers excellent transport accessibility – the Anděl metro station is just a few minutes' walk away, and the area also allows for a quick connection to the city ring road. Naturally, there are complete civic amenities, including schools, international schools, shops, cafes, and a rich cultural background. Furthermore, the Prague 5 urban plan includes the revitalization of Plzeňská Street, which is set to transform into a city boulevard with quiet traffic, a bike lane, widened sidewalks, and an alley of trees.
Offer ID244964-1
Last updated26.03.2026
Price13 690 000 CZK
Price for discussionNo
ConditionVery good condition
Construction typeBrick
OwnershipPersonal
Floor5
Usable area106m2
GarageNo
ParkingNo
CellarYes
BalconyNo
TerraceNo
LoggiaNo
ElevatorYes
PoolNo
Year of construction1919
Garrets (attic spaces)No
Low-energyNo
Send me an offer for a low-rate mortgage
Linh Le, MSc

Linh Le, MSc

Reveal phone number

Engel & Völkers - Prague

Plzeňská 3351/19, Praha 5, 15000

view all agency properties