Apartment for sale, 1+KK - Studio, 64m2

Březenská, Praha 8 - Libeň

8 390 000 CZK, with agency fees Get a low-rate mortgage
Make Enquiry
Prodej nadstandardně velkého bytu 1+kk s podlahovou plochou 64 m² a vlastní předzahrádkou 52 m², situovaného jen 7 minut chůze od stanice metra Střížkov.

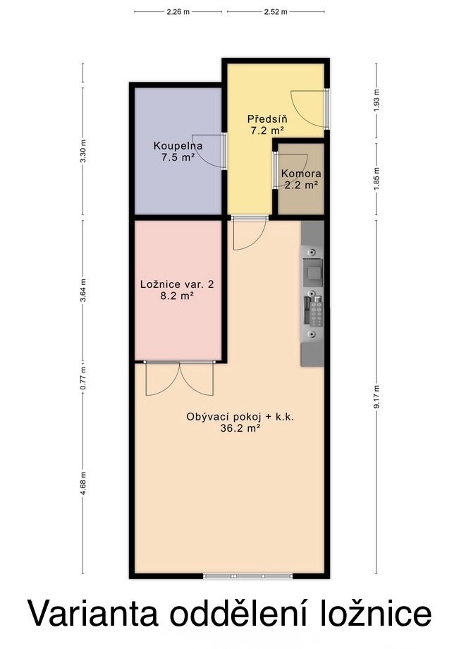
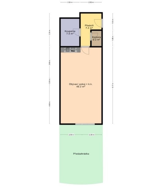
Majitel byt s nadsázkou nazývá svým chrámem. Na pražské poměry výjimečný otevřený prostor obývacího pokoje s kuchyňským koutem o délce 9 m, šířce 4,5 m a výšce stropu 3,2 m působí skutečně monumentálně. Hlavní místnost nabízí různé možnosti členění a prostorového uspořádání. Velké trojdílné francouzské okno vedoucí na jihozápadně orientovanou předzahrádku zásobuje interiér dostatkem denního světla i v zimních měsících.

Kromě hlavní obytné místnosti byt nabízí prostornou předsíň s vestavěnou skříní, koupelnu s vanou a praktický úložný prostor v podobě komory či šatny. K bytu patří vlastní klidná předzahrádka ve vnitrobloku, která poskytuje maximální soukromí a možnost relaxace na čerstvém vzduchu. Podobné byty se na trhu objevují jen zřídka – většina 1+kk v Praze má zcela jiný charakter i měřítko.

Lokalita nabízí výbornou dopravní dostupnost i kompletní občanskou vybavenost. OC Letňany je vzdálené pouhé 4 minuty jízdy autem.

Byt je ideální jako první samostatné bydlení nebo jako zajímavá investiční příležitost k pronájmu. V případě zájmu lze na této ploše snadno vytvořit dispozici 2+kk; v galerii jsou pro inspiraci znázorněny dvě možnosti oddělení ložnice.

Kuchyň je moderní a plně vybavená spotřebiči (varná deska, trouba, digestoř, lednice). Součástí vybavení je také pračka. Majitel je navíc ochoten přenechat kupujícímu veškerý nábytek zdarma, byt je tedy připraven k okamžitému užívání bez nutnosti dalších investic.

Pro více informací nebo domluvení prohlídky mě neváhejte kontaktovat.
Offer ID00012
Last updated02.03.2026
Price8 390 000 CZK, with agency fees
Price for discussionNo
Agency feeWith agency fees
Heating costs3 930 CZK
ConditionNew construction
Construction typeBrick
OwnershipPersonal
FurnishedYes
Floor1
Usable area64m2
Terrace area52m2
Ceiling height3.20
GarageNo
ParkingNo
CellarNo
BalconyNo
TerraceYes
LoggiaNo
ElevatorYes
PoolNo
Water sourceRemote source
HeatingCentral remote
Electricity400V, 230V
TelecomCable, Internet
Waste managementPublic sewage
Barrier-free accessYes
Year of construction2016
Garrets (attic spaces)No
TransportPublic transport
Low-energyNo
Energy RatingB - Very economical
DecreeNo. 78/2013 Coll.
Energy Performance Certificatedownload
Send me an offer for a low-rate mortgage
Bc. Albina Sala

Bc. Albina Sala

Reveal phone number

GetHome

Sluštická 874/8, Praha 10, 10000

view all agency properties