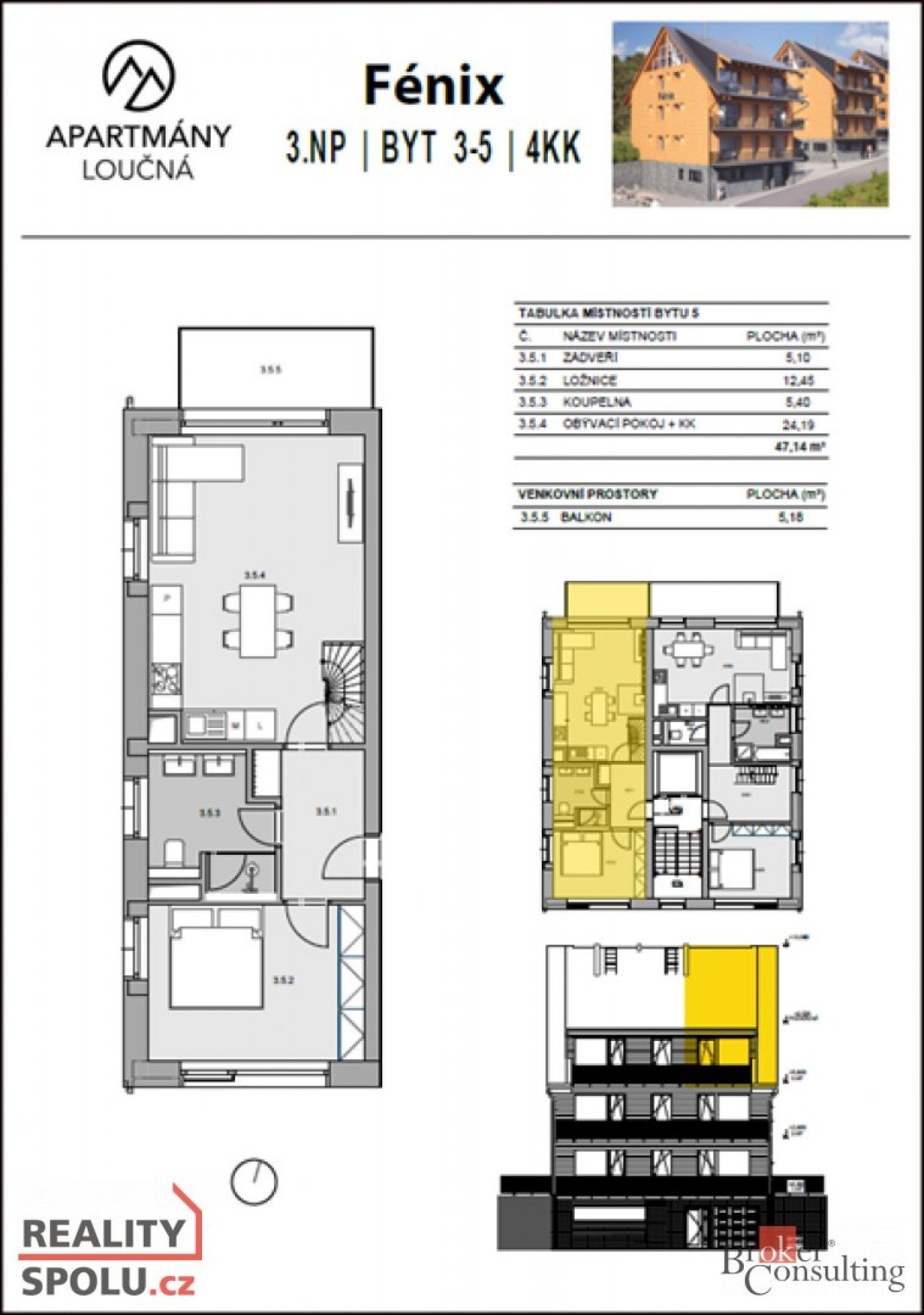
Apartment for sale, 4+kk - 3 bedrooms, 79m2

Loučná pod Klínovcem - Loučná

9 990 000 CZK, with agency fees Get a low-rate mortgage
Make Enquiry
Nabízíme Vám prodej bytové jednotky - apartmánu. Jedná se novostavbu v obci Loučná u Klínovce.
Jedná se o mezonetový apartmán s velikosti 4+kk ve 3-4. patře apartmánového domu. V ceně bytu je využívání prostorné lyžárny/kolárny s možností umístění uzamykatelných skříní. Pokud hledáte druhé bydlení blíže přírodě, je tato exkluzivní nabídka přímo pro Vás nabízíme k prodeji dokončovanou novostavbu horského apartmánu krásným výhledem do okolní krajiny.
Apartmán se nachází ve vyhledávané lokalitě Krušných hor v Loučné pod Klínovcem, v blízkosti dvou moderních lyžařských středisek (Skiareál Klínovec a Skiareál Fichtelberg) a německého lázeňského města Oberwiesenthal s kvalitní občanskou vybaveností. Poloha 1000 - 1244 m n. m. garantuje v zimě dostatek sněhu, v létě naopak velmi příjemné klima. Přímo v místě je bezpočet možností k turistice, cyklovýletům, sjezdům na horských kolech (Trail Park Klínovec), jízdě na běžkách, či houbaření.
Apartmán je součástí nadčasového viladomu o sedmi bytových jednotkách a nachází se v klidné části obce. Dokončení stavby domu je plánováno na 1. čtvrtletí 2026.
U apartmánu určitě oceníte promyšlené dispozice, příjemnou orientaci na tři světové strany a realizaci v nadstandardním provedení. Tepelnou pohodu Vám zajistí podlahové teplovodní vytápění a tepelná čerpadla. Vysoký komfort bydlení doplní výtah a vlastní parkovací stání za domem. V přízemí domu bude možné využívat kolárnu s lyžárnou pro uskladnění letního či zimního sportovního vybavení.
Váš apartmán Vám může sloužit nejen pro vlastní rekreaci, ale i jako výhodná investice. Jeho koupí si můžete zajistit zajímavý pasivní příjem, když se rozhodnete apartmán pronajímat v době, kdy ho sami nebudete využívat. Pro tento případ Vám můžeme zajistit komplexní servis v oblasti krátkodobého pronájmu. Parkovací místo se prodává zvlášť a nabízí se za cenu 260.000 Kč
Všechny jednotky budou v rámci projektu kolaudovány jako bytové, proto bude možné jejich koupi financovat prostřednictvím hypotečního úvěru, a to až do výše 80%-90% hodnoty nemovitosti. Pokud Vás nabídka zaujala neváhejte nás kontaktovat. S financováním Vám rádi pomůžeme.
Offer ID69058
Last updated09.01.2026
Price9 990 000 CZK, with agency fees
Price for discussionNo
Agency feeWith agency fees
ConditionNew construction
Construction typeBrick
OwnershipPersonal
FurnishedNo
Floor3
Number of floors4
Usable area79m2
Move-in date01.02.2026
GarageNo
ParkingYes
CellarNo
BalconyYes
TerraceNo
LoggiaNo
ElevatorYes
PoolNo
Water sourceRemote source
Electricity230V
Waste managementPublic sewage
Building typeDetached
Number of parking spaces1
Garrets (attic spaces)No
TransportBus, Road
Low-energyNo
Energy RatingB - Very economical
Energy Performance Certificatedownload
Send me an offer for a low-rate mortgage
Broker Consulting, a.s.

Broker Consulting, a.s.

Reveal phone number

REALITYSPOLU

Radlická 751/113e, Praha 5, 15800

view all agency properties