Apartment for sale, 2+kk - 1 bedroom, 87m2

Palackého, Poděbrady - Poděbrady III

8 240 000 CZK, with agency fees Get a low-rate mortgage
Make Enquiry
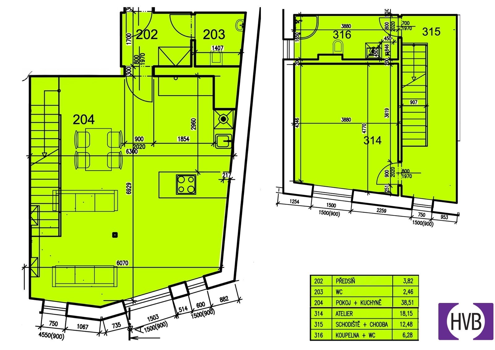
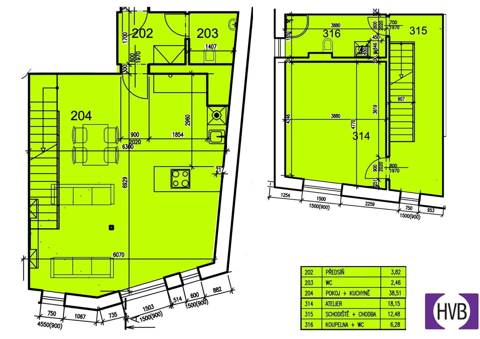
Sale of apartment 2+kk, 87 m²/PS, OV, Poděbrady. This duplex, energy-efficient, air-conditioned apartment with two bathrooms, a covered parking space, and a cellar was approved in 2019 and is located in the heart of the spa town of Poděbrady. The apartment is part of the second and third floors of a brick building with an elevator, and the property is accessible barrier-free, only through a remote-controlled gate for car access or a pedestrian gate. The building comprises four residential units and one non-residential unit.

The layout of the apartment offers a hallway, the first bathroom, and a spacious living room with a fully equipped modern kitchen in the lower floor. From the living room, designer stairs lead to the second floor of the apartment, which features a hallway with space for creating a work or exercise corner, a bedroom with a large built-in mirrored wardrobe, and a second bathroom with a shower, toilet, washing machine, dryer, and a gas condensing boiler.

The entire apartment is equipped with underfloor heating, with vinyl flooring in the living areas and tiles in the bathrooms and toilet; the bedroom has outdoor blinds to ensure pleasant climate and privacy.

Monthly operating costs are 6,200 CZK, including the repair fund.

The location provides an ideal combination of peaceful living and urban life with excellent civic amenities. Nearby, there is a colonnade, which is a landmark of the town, with many cafes, restaurants, and shops, as well as a square and the Elbe River offering opportunities for walks and sports activities. A supermarket, post office, pharmacy, medical services, and banks are within reach. Families with children have access to kindergarten and elementary schools in the area.

Transport accessibility is at a high level. The apartment is just 50 meters from the bus stop and 750 meters from the train station. It takes only 25 minutes by car to Prague via the D11 highway. Train and bus connections to Prague and surrounding towns offer convenient and quick commutes for daily travel and weekend trips. Overall, this property meets the requirements for modern and comfortable living in an attractive location with complete amenities and excellent transport connections.

More information is available on request or during a personal meeting. Energy performance certificate B. Financing through a mortgage loan is possible. The information provided is indicative and may change during the advertisement.
Offer IDN2516624
Last updated27.01.2026
Price8 240 000 CZK, with agency fees
Price for discussionNo
Agency feeWith agency fees
ConditionNew construction
Construction typeBrick
OwnershipPersonal
Floor2
Number of floors3
Usable area87m2
Cellar area5m2
GarageNo
ParkingYes
CellarYes
BalconyNo
TerraceNo
LoggiaNo
ElevatorYes
PoolNo
Water sourceRemote source
Electricity230V
Waste managementPublic sewage
Barrier-free accessYes
Number of parking spaces1
Garrets (attic spaces)No
TransportBus, Highway, Train
Low-energyNo
Energy RatingB - Very economical
DecreeNo. 264/2020 Coll.
Send me an offer for a low-rate mortgage
Ing. Libor Manda

Ing. Libor Manda

Reveal phone number

HVB Real Estate s.r.o.

Moravská 1050/15, Praha 2, 12000

view all agency properties